Wohnobjekt

Maison d'architecte - à construire - dernière opportunité dans un petit quartier de 5 villas

CHF 799'000

 | 

160 m²

 | 

5.5 Zimmer

Bout dessus 29, 2718 Lajoux JU

Maison d'architecte - à construire - dernière opportunité dans un petit quartier de 5 villas - Karte
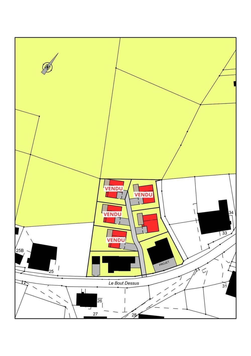
PROJETIl s'agit de la cinquième et dernière maison du projet de construction de cinq maisons familiales à l'entrée ouest du village. Trois maisons sont déjà terminées et occupées, une est actuellement en cours de construction.La parcelle se trouve en zone de construction Centre Village et est entourée d'une très grande zone agricole. Au vu des nouvelles normes en matière de construction, cette zone agricole devrait garantir un espace vert à long terme.QUARTIER D'HABITATIONLes bâtiments sont disposés de part et d'autre d'un chemin privé : trois à l'Ouest, deux à l'Est. Leur silhouette mêle modernité et tradition, en harmonie avec le Centre Village. Conçues pour offrir intimité et calme, les maisons s'intègrent parfaitement à leur environnement.CONCEPT ARCHITECTURALLes volumes intérieurs sont spacieux et baignés de lumière. Un espace central en bois, éclairé par une fenêtre de toit, diffuse la lumière sur toute la hauteur via un plancher ajouré. Cette transparence crée une continuité harmonieuse entre les espaces.PROGRAMME DES LOCAUXREZ-DE-CHAUSSEE Entrée avec couvertGarage double avec abri de jardin et espace pour création d'une galerie de rangementChambre / bureauLocal sanitaire (douche, wc, lavabo)Cuisine agencéeEconomatSalle à manger - séjourTerrasse1ER ETAGEHall - passerelle de distributionSuite parentale et salle de bainDeux chambresSalle de bains commune avec buanderie MODIFICATIONS DU PROJETLe projet est constitué de bâtiments semblables formant un concept unitaire dans la zone Centre Village. Ainsi, des modifications de la forme et de l'aspect extérieur ne sont pas envisageables. Il y a cependant plus de flexibilité pour le plan intérieur du rez-de-chaussée et de l'étage. La création d'un niveau supplémentaire en sous-sol est possible, en option.Pour les équipements sanitaires, l'agencement de cuisine et les revêtements des sols, les prix définis pour la fourniture et la pose sont mentionnés dans la rubrique budgets.Le coût final est défini en fonction des options choisies et d'entente entre l'architecte et l'acheteur avant exécution.LAJOUX, UN VILLAGE AU COEUR DU JURANiché au coeur des Franches-Montagnes, dans le canton du Jura, Lajoux est un charmant village offrant un cadre de vie paisible et authentique. Situé à environ 1'000 mètres d'altitude, il séduit par ses paysages verdoyants, ses vastes pâturages et son atmosphère sereine, idéale pour les amoureux de nature et de tranquillité.Entouré de forêts et de prairies typiques du plateau jurassien, Lajoux offre un environnement propice aux activités en plein air : randonnée, VTT, ski de fond et balades équestres y sont accessibles toute l'année.Malgré sa taille modeste, Lajoux bénéficie d'une vie locale dynamique et d'une situation privilégiée, à proximité de Delémont et Saignelégier. Accessible en voiture et en transports publics, il allie tranquillité et connexion aux services régionaux.Son patrimoine préservé et son environnement naturel en font un lieu idéal pour ceux qui recherchent une qualité de vie privilégiée, entre authenticité et modernité.

Kosten

Kaufpreis:
CHF 799'000

Angaben

Objektkategorie
Eigentum
Objektreferenz
0cdf8ea2-276c-4ab0-8242-57713f7ef5d8
Adresse
Bout dessus 29
PLZ/Ort
2718 Lajoux JU
Region
Franches-Montagnes
Wohnfläche
160 m²
Grundstücksfläche
502 m²
Anzahl Zimmer
5.5
Baujahr
2025

Merkmale und Ausstattung

Garage
Parkplatz
Kinderfreundlich
Rollstuhlgängig

Kontakt

  • Grand Chasseral Immo SA
  • Grand-Rue 169, 2720, Tramelan
  • Nummer Anzeigen

Auch inseriert auf:

homegate.ch