Wohnobjekt

4.5-Zi ERSTWOHNUNG

CHF 1'062'000

 | 

122 m²

 | 

4.5 Zimmer

Pütvia 246, 7550 Scuol

4.5-Zi ERSTWOHNUNG - Karte
4.5 Zimmer Erstwohnung
Gesamtsanierung ab 2025
Das frühere Hotel Crusch Alba wurde schon im 15.Jahrhundert als Pferdewechselsation und Herberge für Reisende erwähnt
Das Objekt wurde 1987 um den Osttrakt erweitert
Bis 2023 wurden Hotelgäste und Restaurantgäste bewirtet.
Auf der Westseite gegen die Strasse das urtümliche Engadinerhaus, mit einer urtümlichen Steinfassade und markanten Engadiner Sgraffitti. Daran der Mitteltrakt wo seinerzeit der Heustall lag und auf der Ostseite der Anbau.
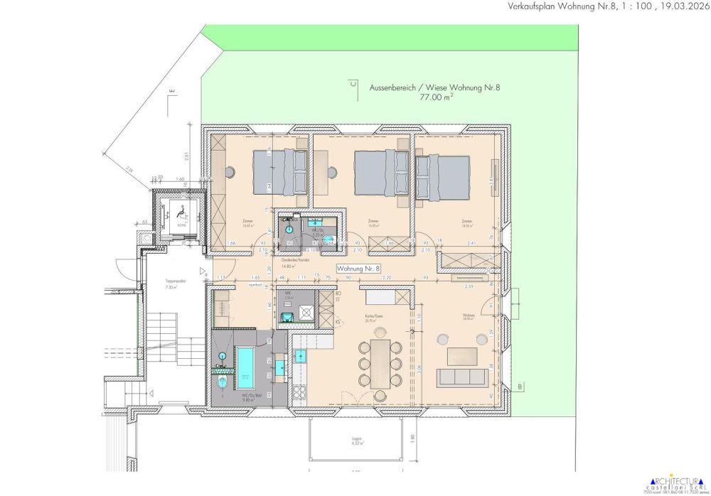
Hier entsteht nun die 4.5 Zimmer Erstwohnung
Nettowohnfläche 121.9 m² mit einem Südbalkon und einem 77.2 m² Sitzplatz auf der Ost- und Nordwestseite der Direkt über 3 Stufen vom Wohnzimmer aus zugänglich ist.
Ausbau
Pelletheizung Neu
Bodenbeläge in Parkett und Feinsteinzeug
3-fach IV-Fenster
Doppelschalenmauerwerk
Dach neu mit Prefa-Abdeckung (Aluminium)
Personenlift zu den Wohneinheiten
Garage mit Autoeinstellplätzen
Skiraum
Veloraum
Kellerraum
Beim Gesamtumbau entstehen 11 neue Wohneinheiten
Das Gebäude liegt am östlichen Ende des Dorfzentrums
Die Bushaltestelle direkt vor dem Haus
Facts
-121.9 m² Wohnfläche
Etage 1. OG
Nasszellen
-Bad/DU/WC + DU/WC
Keller
-1 Kellerabteil
Parking
-Autoeinstellplätze + Aussenplätze
Typ/Status
-Erstwohnung, (Steuerdomizil Scuol)
Kaufpreis
Wohnung CHF 1'062'000.00
Einstellplatz CHF 42’000.00
Besonderes
Bis ende Mai
Küche kann noch in Farbe, Apparaten und Design frei gewählt werden
in den Badzimmern können noch Sanitärapparate gewählt werden

Verfügbarkeit

Verfügbar ab:
1. Oktober 2026

Kosten

Kaufpreis:
CHF 1'062'000

Angaben

Objektkategorie
Kauf
Objektreferenz
ae2e07af-bcf1-4526-ada9-5a51a54b0bcf
Adresse
Pütvia 246
PLZ/Ort
7550 Scuol
Region
Inn
Wohnfläche
122 m²
Anzahl Zimmer
4.5
Etage
1
Baujahr
2026

Merkmale und Ausstattung

Balkon
Lift
Garage
Schöne Aussicht
Parkplatz
Kinderfreundlich

Kontakt

Martin Lauber
  • Martin Lauber
  • Lauber Barbüda Treuhand AG
  • gibt Ihnen gerne Auskunft.
  • Nummer Anzeigen

Auch inseriert auf:

homegate.ch