Wohnobjekt

4.5-Zimmer Neubau-Gartenwohnung in der Ferienregion Lenzerheide

CHF 1'795'000

 | 

4.5 Zimmer

Davos Larisch 6, 7083 Lantsch/Lenz

4.5-Zimmer Neubau-Gartenwohnung in der Ferienregion Lenzerheide - Karte
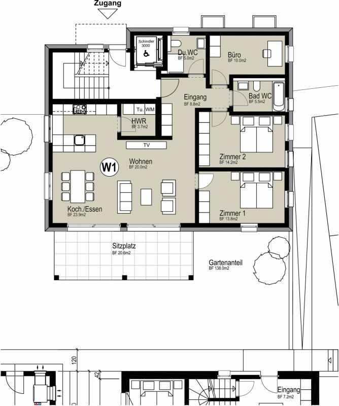
Neubau-Gartenwohnung mit 138?m² Aussenfläche in Lantsch/Lenz Im Herzen des charmanten Bergdorfs Lantsch/Lenz entsteht ein exklusives Neubauprojekt mit nur drei Wohneinheiten - ideal für alle, die modernes, naturnahes Wohnen mit Privatsphäre und hoher Lebensqualität verbinden möchten. Die sonnige Lage auf einer weitläufigen Parzelle von insgesamt 1'742 Quadratmetern sowie die unmittelbare Nähe zur bekannten Ferienregion Lenzerheide machen dieses Projekt besonders attraktiv.
Zum Verkauf steht die grosszügige Gartenwohnung im Erdgeschoss, die mit 138 Quadratmetern privater Gartenfläche und einer 21 Quadratmeter grossen Terrasse ein einzigartiges Wohnerlebnis bietet. Der grosszügig bemessene Aussenbereich schafft vielfältige Nutzungsmöglichkeiten und lädt zum Verweilen, Gärtnern oder geselligen Beisammensein unter freiem Himmel ein. Die grüne Umgebung lässt sich ganz nach eigenen Vorstellungen gestalten - sei es mit Rasen, Sträuchern oder einem persönlichen Sitzplatz im Grünen. Von hier aus geniessen Sie einen herrlichen Blick auf die imposante Bündner Bergwelt, die zu jeder Jahreszeit mit ihrer Schönheit beeindruckt.
Im Innern überzeugt die Wohnung durch eine durchdachte Raumaufteilung, moderne Wohnqualität und einen hochwertigen Ausbaustandard. Der helle Wohn- und Essbereich mit offener Küche bildet das Zentrum des täglichen Lebens und wird durch grosse Fensterfronten mit viel Tageslicht versorgt. Die nahtlose Verbindung zum Aussenbereich sorgt für ein offenes, wohnliches Ambiente. Edle Materialien, zeitgemässe Ausstattung und ein angenehmes Raumgefühl stehen im Vordergrund.
Die Wohnung verfügt über zwei stilvoll ausgestattete Badezimmer. Das grössere Bad ist mit einer Badewanne und einem eleganten Waschtisch eingerichtet, während das separate Gäste-Badezimmer eine komfortable Dusche mit moderner Regendusche bietet. Beide Nasszellen verbinden Funktionalität mit einem klaren, zeitgemässen Design.
Ein weiterer Vorteil ist das grosszügige Kellerabteil mit 11 Quadratmetern, das zusätzlichen Stauraum schafft und die Wohnqualität weiter erhöht. Die komfortable Erschliessung des Hauses erfolgt über ein zentrales Treppenhaus mit Liftzugang. Jede Wohnung kann bis zu zwei Tiefgaragenplätze à CHF 45'000.- erwerben, zusätzlich stehen bis zu zwei Aussenabstellplätze zum Preis von je CHF 15'000.- zur Verfügung.
Das Haus wird in moderner Bauweise mit Fokus auf Energieeffizienz realisiert. Eine Luft-Wasser-Wärmepumpe in Kombination mit einer angenehm temperierten Bodenheizung sorgt für nachhaltige Wärme und zeitgemässen Wohnkomfort.
Die privilegierte Lage im Dorfkern von Lantsch/Lenz verbindet Ruhe, Sonne und Natur mit einer hervorragenden Erreichbarkeit der beliebten Ferienregion Lenzerheide.
Der Baustart ist bereits erfolgt, der Bezug der Wohnung ist per Juni 2026 vorgesehen.

Verfügbarkeit

Bezugstermin:
1. Juni 2026

Kosten

Kaufpreis:
CHF 1'795'000

Angaben

Objektkategorie
Eigentum
Objektreferenz
834afa03-ab6f-4ea4-9885-2d1878d90bd2
Adresse
Davos Larisch 6
PLZ/Ort
7083 Lantsch/Lenz
Region
Albula
Anzahl Zimmer
4.5
Etage
EG
Baujahr
2025

Merkmale und Ausstattung

Balkon
Lift
Garage
Kinderfreundlich

Kontakt

Manfred Fiegl
  • Manfred Fiegl
  • Curvér Immobilien AG
  • gibt Ihnen gerne Auskunft.
  • Nummer Anzeigen

Auch inseriert auf:

homegate.ch