Wohnobjekt

LETZTE CHANCE! IHRE BEWIRTSCHAFTETE WOHNUNG DIREKT BEI DEN BERGBAHNEN FLIMS!

CHF 1'260'000

 | 

83 m²

 | 

3.5 Zimmer

Via Nova 72, 7017 Flims Dorf

LETZTE CHANCE! IHRE BEWIRTSCHAFTETE WOHNUNG DIREKT BEI DEN BERGBAHNEN FLIMS! - Karte
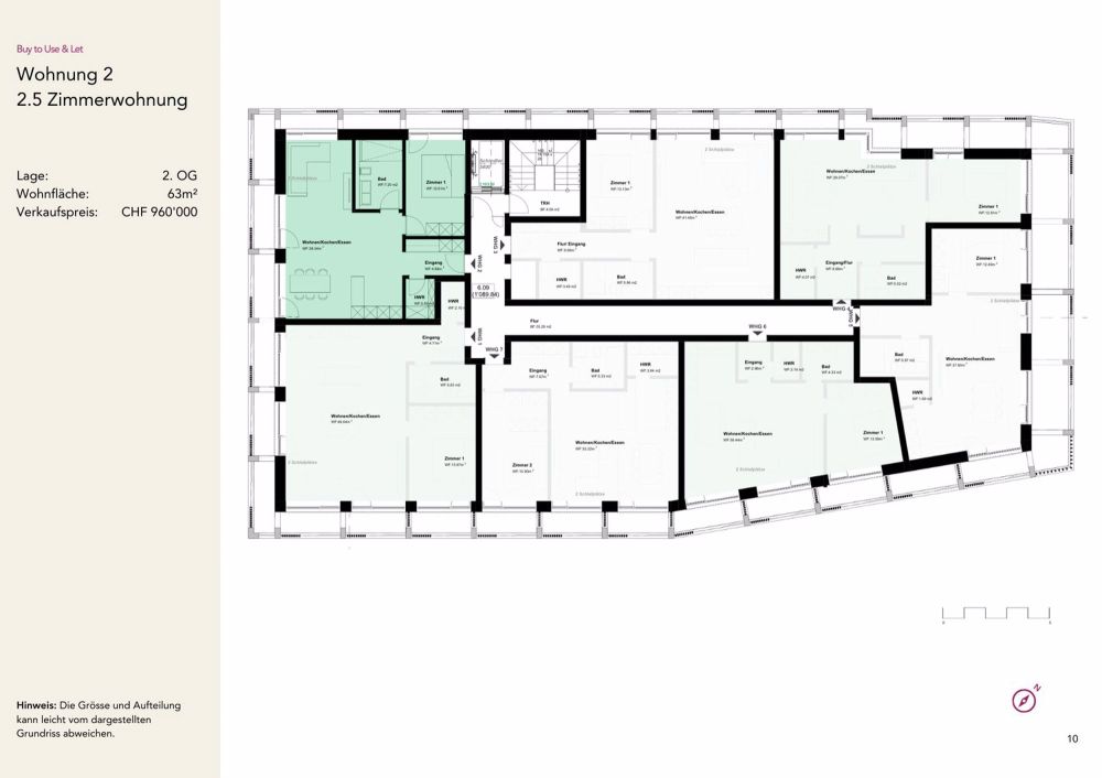
Laden Sie die Dokumentation herunter! Im Herzen von Flims, an der besten Lage direkt an der Talstation, entsteht das Sulai Flims – ein einzigartiges Wohn- und Hotelprojekt, das alpinen Lifestyle mit höchstem Komfort verbindet. Zum Verkauf stehen: 7x 2.5-Zimmerwohnungen: Buy to Use & Let 5x 3.5-Zimmer-Maisonette: Buy to Use & Let 1x luxuriöse 4.5-Zimmer-Maisonette-Zweitwohnung 1x moderne 2.5-Zimmer-Maisonette-Erstwohnung 26x Tiefgaragenparkplätze Zusätzlich entstehen: 16 exklusive Hotelzimmer 255 m² Sportgeschäft für Ski, Snowboard & Bike Wellnessbereich Café im Erdgeschoss Ski-in/Ski-out: direkt an der Talstation Flims Buy to Use & Let – Wohnen mit Aussicht auf Rendite! Eigennutzung & Ertrag: Bis zu 10 Wochen Eigennutzung pro Jahr, die restliche Zeit sorgt das Hotelmanagement für Einnahmen. Rundum-Service: Vermietung, Gästebetreuung, Reinigung und Vermarktung werden professionell übernommen – ohne Aufwand für Sie. Pooling-System: Einnahmen aller Wohnungen werden gebündelt und fair verteilt – für stabile, planbare Cashflows. Attraktive Aufteilung: 45 % der Nettoerträge fliessen an die Eigentümer, 55 % an den Betreiber für Betrieb und Marketing. Wertsicherheit: Ferienwohnungen in Flims sind rar, die Nachfrage hoch – das schafft nachhaltige Wertsteigerung Laden Sie die Dokumentation herunter! Die Kombination aus alpiner Ruhe, moderner Infrastruktur und dem einzigartigen Standort macht Sulai Flims zu einem Ort, der Wohnen, Erleben und Investieren perfekt vereint. Alle Angaben sind unverbindlich und sind Fehler und Änderungen vorbehalten. Laden Sie die Dokumentation herunter!

Verfügbarkeit

Verfügbar ab:
1. Dezember 2027

Kosten

Kaufpreis:
CHF 1'260'000

Angaben

Objektkategorie
Eigentum
Objektreferenz
b9d237b8-9ec3-4150-a027-f55d1782e319
Adresse
Via Nova 72
PLZ/Ort
7017 Flims Dorf
Region
Imboden
Wohnfläche
83 m²
Anzahl Zimmer
3.5
Etage
3
Baujahr
2027

Merkmale und Ausstattung

Balkon
Kabelfernsehen
Lift
Garage
Schöne Aussicht
Kinderfreundlich
Rollstuhlgängig
Minergie

Kontakt

  • Swiss Property Management AG
  • Neuhofstrasse 5A, 6340, Baar

Auch inseriert auf:

homegate.ch