Wohnobjekt

Hochwertige Dachwohnung, Erstwohnsitz

CHF 975'000

 | 

87 m²

 | 

3.5 Zimmer

Lindawäg, 7075 Churwalden

Hochwertige Dachwohnung, Erstwohnsitz - Karte
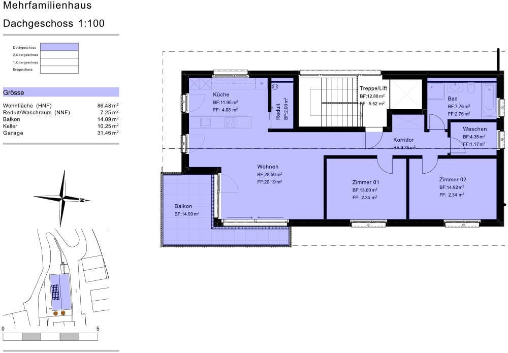
Entdecken Sie diese exklusive 3.5-Zimmer-Dachwohnung. Mit 87 m² Wohnfläche im 3. Stock bietet diese Minergie Neubauwohnung höchste Wohnqualität und Energieeffizienz. Der Baustart erfolgt im Frühling 2026.
Die Wohnung überzeugt mit:
Grosszügige Raumaufteilung: 3.5 helle Zimmer mit optimaler Nutzung der Dachgeschoss-Architektur
Schöner Ausblick: Geniessen Sie die herrliche Sicht auf die umliegende Berglandschaft
Privater Balkon: Perfekt zum Entspannen mit Blick auf die idyllische Dorflandschaft
Komfortable Ausstattung: Lift im Gebäude für bequemen Zugang zur Dachwohnung
Doppelgarage und Keller im Erdgeschoss kann für CHF 80'000 dazu erworben werden
Lage und Umgebung: Das moderne rosa Mehrfamilienhaus liegt etwas erhöht Anfang Dorf. Die Bushaltestelle ist in nur 4 Gehminuten erreichbar, während sich die Schule 6 Minuten zu Fuss entfernt befindet. In 14 Gehminuten ist man beim Einstieg zu den Liftanlagen Lenzerheide-Arosa und allen Sportlichen Tätigkeiten von Churwalden.
Die Wohnung eignet sich perfekt für Familien oder Paare, die das Leben in den Bergen schätzen und dabei nicht auf modernen Komfort verzichten möchten. Die Minergie-Bauweise garantiert nachhaltiges Wohnen mit niedrigen Nebenkosten. Wenn Sie sich jetzt zum Kauf entscheiden, können Sie die Wohnung noch selber gestalten und Materialien nach Ihrem Geschmack aussuchen.
Das Haus wird im Baurecht erstellt.
Gerne beraten wir Sie und freuen uns auf Ihre Kontaktaufnahme

Kosten

Kaufpreis:
CHF 975'000

Angaben

Objektkategorie
Eigentum
Objektreferenz
d805421c-062a-4f51-b8ab-cee4bb9ed64a
Adresse
Lindawäg
PLZ/Ort
7075 Churwalden
Region
Plessur
Wohnfläche
87 m²
Anzahl Zimmer
3.5
Etage
3
Baujahr
2026

Merkmale und Ausstattung

Balkon
Lift
Garage
Schöne Aussicht
Kinderfreundlich
Minergie

Kontakt

Ingrid Petersen
  • Ingrid Petersen
  • Hemmi Immobilien
  • gibt Ihnen gerne Auskunft.
  • Nummer Anzeigen

Auch inseriert auf:

homegate.ch