Wohnobjekt

Moderne 3.5-Zimmer-Dachwohnung Erstwohnsitz

CHF 810'000

 | 

87 m²

 | 

3.5 Zimmer

Lindawäg, 7075 Churwalden

Moderne 3.5-Zimmer-Dachwohnung Erstwohnsitz - Karte
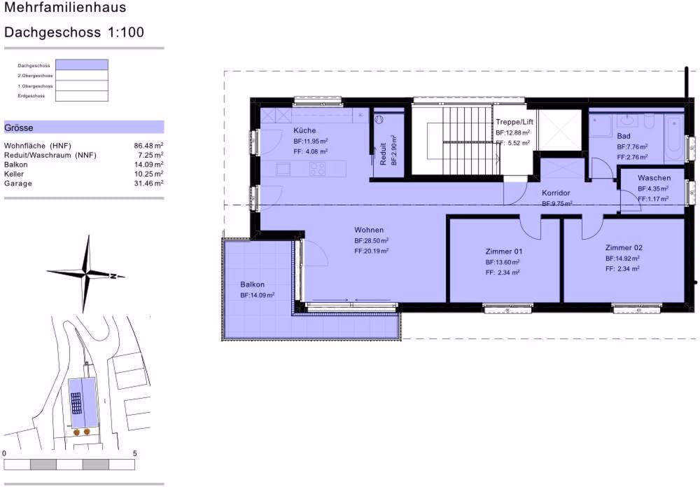
Entdecken Sie diese exklusive 3.5-Zimmer-Dachwohnung. Mit 87 m² Wohnfläche im 3. Stock bietet diese Minergie Neubauwohnung höchste Wohnqualität und Energieeffizienz. Der Baustart erfolgt im Frühling 2026. Die Wohnung überzeugt mit: Grosszügige Raumaufteilung: 3.5 helle Zimmer mit optimaler Nutzung der Dachgeschoss-Architektur Schöner Ausblick: Geniessen Sie die herrliche Sicht auf die umliegende Berglandschaft Privater Balkon: Perfekt zum Entspannen mit Blick auf die idyllische Dorflandschaft Komfortable Ausstattung: Lift im Gebäude für bequemen Zugang zur Dachwohnung Doppelgarage und Keller im Erdgeschoss Lage und Umgebung: Das moderne rosa Mehrfamilienhaus liegt etwas erhöht Anfang Dorf. Die Bushaltestelle ist in nur 4 Gehminuten erreichbar, während sich die Schule 6 Minuten zu Fuss entfernt befindet. In 14 Gehminuten ist man beim Einstieg zu den Liftanlagen Lenzerheide-Arosa und allen Sportlichen Tätigkeiten von Churwalden. Die Wohnung eignet sich perfekt für Familien oder Paare, die das Leben in den Bergen schätzen und dabei nicht auf modernen Komfort verzichten möchten. Die Minergie-Bauweise garantiert nachhaltiges Wohnen mit niedrigen Nebenkosten. Wenn Sie sich jetzt zum Kauf entscheiden, können Sie die Wohnung noch selber gestalten und Materialien nach Ihrem Geschmack aussuchen. Das Haus wird im Baurecht erstellt. Gerne beraten wir Sie und freuen uns auf Ihre Kontaktaufnahme

Kosten

Kaufpreis:
CHF 810'000

Angaben

Objektkategorie
Eigentum
Objektreferenz
cc498491-adcf-417c-9fb2-6aa33c888727
Adresse
Lindawäg
PLZ/Ort
7075 Churwalden
Region
Plessur
Wohnfläche
87 m²
Anzahl Zimmer
3.5
Etage
3
Baujahr
2026

Merkmale und Ausstattung

Balkon
Lift
Garage
Schöne Aussicht
Kinderfreundlich
Minergie

Kontakt

  • Hauptstrasse 135, 7075, Churwalden
  • Nummer Anzeigen

Auch inseriert auf:

homegate.ch