Wohnobjekt

Ultimo 4.5 in vendita, anche a reddito, nuova costruzione!

CHF 680'000

 | 

120 m²

 | 

4.5 Zimmer

Via al Foss 35, 6557 Cama

Ultimo 4.5 in vendita, anche a reddito, nuova costruzione! - Karte
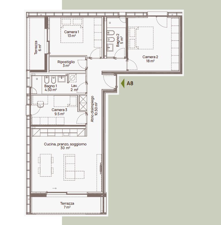
Scopri la Residenza Leaa a Cama: un'opportunità unica per la tua nuova abitazione o per un investimento a reddito.
Questa nuova costruzione in Minergie P offre appartamenti di 1,5 - 3,5 e 4,5 locali, pensati per soddisfare ogni esigenza abitativa, dalle giovani coppie alle famiglie.
Al piano terreno troviamo due spazi commerciali per aziende artigianali.
Abbiamo ancora a disposizione ancora un appartamento da 4,5 locali in vendita.
Gli appartamenti della Residenza Leaa sono anche ideali per un investimento sicuro con una redditività lorda del 4,2% annuo. Una soluzione perfetta per chi cerca un guadagno stabile e interessante nel tempo.
Sono inoltre disponibili:
Parcheggi coperti a CHF 20'000.- cad.
Parcheggi scoperti a CHF 15'000.- cad.
Perché scegliere la Residenza Leaa?
- Finiture di pregio e cura dei dettagli;
- Materiali eleganti e moderni;
- Parcheggi coperti e scoperti;
- Ampie terrazze esposte al sole;
- Zona tranquilla e lontana dal caos, ma ben collegata (fermata al bus a un minuto);
- cucina moderna e accessoriata, fibra ottica;
- lavanderia privata;
Non perdere l'opportunità di acquistare un appartamento in una zona verde e tranquilla, con una qualità costruttiva senza pari e una posizione strategica per godere della tranquillità senza rinunciare ai comfort moderni.
Contattaci per maggiori informazioni.

Kosten

Kaufpreis:
CHF 680'000

Angaben

Objektkategorie
Eigentum
Objektreferenz
f0185d62-6de3-4778-befc-590d502ee9d1
Adresse
Via al Foss 35
PLZ/Ort
6557 Cama
Region
Distretto di Moesa
Wohnfläche
120 m²
Anzahl Zimmer
4.5
Etage
2
Baujahr
2024

Merkmale und Ausstattung

Balkon
Lift
Schöne Aussicht
Parkplatz
Kinderfreundlich
Rollstuhlgängig
Minergie

Kontakt

Karin Colombini
  • Karin Colombini
  • MIA Immobiliare Sagl
  • gibt Ihnen gerne Auskunft.
  • Nummer Anzeigen

Auch inseriert auf:

homegate.ch