Wohnobjekt

Upcycling im Glarnerland – seltene Gelegenheit – Liebhaber*in-Objekt

CHF 118'000

 | 

61 m²

 | 

2 Zimmer

Bödeli 14, 8775 Luchsingen

Upcycling im Glarnerland – seltene Gelegenheit – Liebhaber*in-Objekt - Karte
Verschaffen Sie diesem charmanten, alten Stall in Luchsingen (Glarus Süd) einen neuen Lebenszyklus.
Der Stall wurde um 1900 erbaut. Die Mauern sind aus massiven Bruchsteinen, mit Mörtel zusammengefügt. Der Aufbau ist ein Strickbau aus Rundhölzern, nur grob behauen. Das Objekt befindet sich in der Dorfkernzone und unterliegt dem Ortsbildschutz.
Alle Bewilligungen zur Umnutzung sowie zum Um- und Anbau sind erteilt. Erfahrene, motivierte sowie erprobte Handwerker und Bauleitung aus dem Tal stehen bereit. Offerierte Bausumme CHF 550'000. Ein Referenzobjekt – Umbau vom Kuhstall zum Wohnstall 2017 – in unmittelbarer Nachbarschaft kann besichtigt werden.
Das zukünftige Bijou kann nur als Erstwohnung genutzt werden. Es liegt leicht erhöht auf dem Bödeli und hat keine direkte Zufahrt. Gehdistanz 4 Min. vom öffentlichen Parkplatz/Bushaltestelle, 10 Min. vom Bahnhof Luchsingen/Hätzingen (S25).
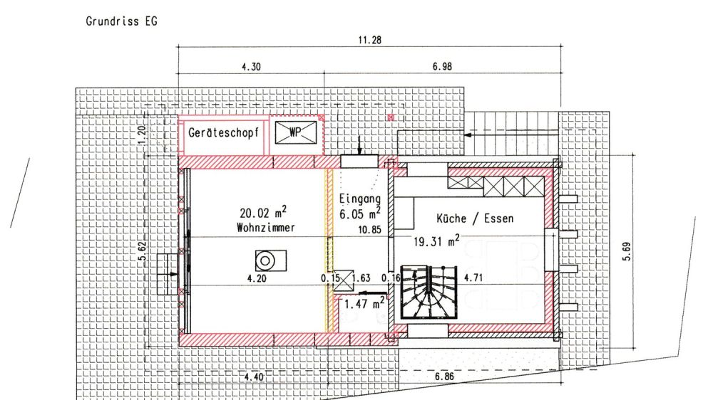
Der Eingang – über eine Aussentreppe erreichbar – wird sich im Erdgeschoss befinden, wo im alten Teil eine grosse Wohnküche sowie ein Gäste-WC entstehen sollen. Das Wohnzimmer ist im neuen, lichtdurchfluteten Anbau mit Sicht ins Grüne und Ausgang zum Sitzplatz geplant. Im Untergeschoss ist ein Schlafzimmer, Dusche/WC und der Technikraum mit WM/WT vorgesehen.Für behagliche Wärme wird eine Luft-Wasser-Wärme-Pumpe mit Bodenheizung sowie ein zusätzlicher Stückholzofen im Wohnzimmer sorgen.
Wenn Sie Liebhaber*in von natürlich-rustikalem Wohnen sind und Sie die Kombination von alt und modern lieben, stelle ich Ihnen dieses aussergewöhnliche Projekt gerne persönlich vor. Oder fordern Sie die Dokumentation an. Zögern Sie nicht, mich zu kontaktieren. Ich freue mich auf Sie.

Verfügbarkeit

Bezugstermin:
5. Dezember 2024

Kosten

Kaufpreis:
CHF 118'000

Angaben

Objektkategorie
Eigentum
Objektreferenz
15446ca8-3e70-4f87-800a-8f24e4ae7acc
Adresse
Bödeli 14
PLZ/Ort
8775 Luchsingen
Region
Glarus
Wohnfläche
61 m²
Grundstücksfläche
243 m²
Anzahl Zimmer
2

Merkmale und Ausstattung

Balkon
Feuerstelle
Kinderfreundlich

Kontakt

Ingrid Bühler
  • Ingrid Bühler
  • gibt Ihnen gerne Auskunft.

Auch inseriert auf:

homegate.ch