Wohnobjekt

Appartements in Perly

CHF 1'196'800

 | 

104 m²

 | 

4 Zimmer

1258 Perly

Appartements in Perly - Karte
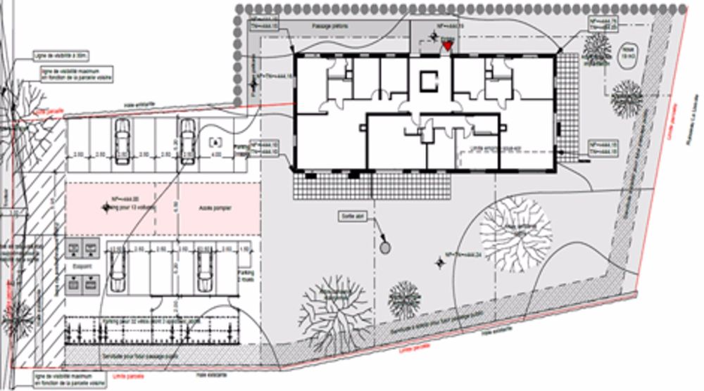
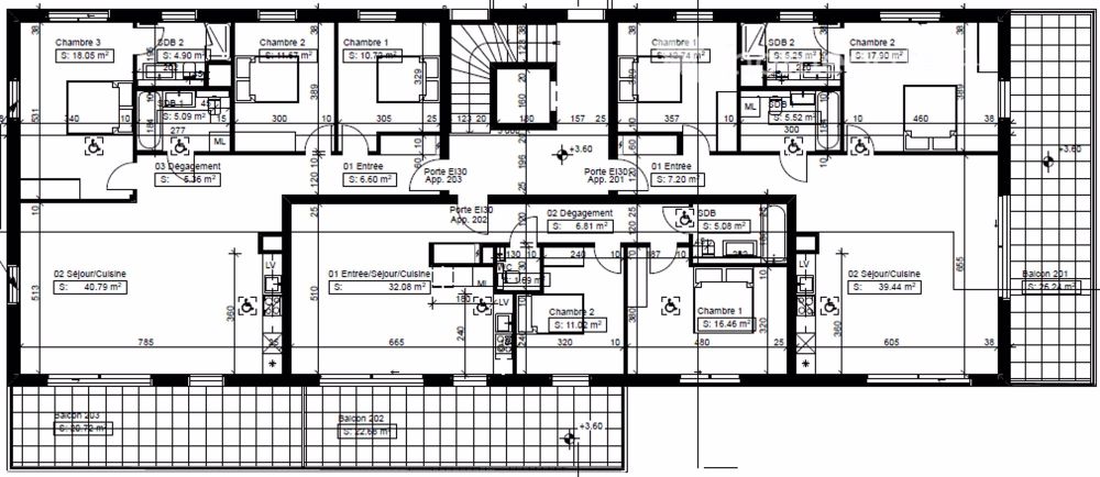
Kleines Architektenhaus in Perly, direkt an der Grenze zu einer landwirtschaftlichen Zone, bestehend aus neun Wohnungen mit vier bis fünf Zimmern in einer Entwicklungszone mit 85 bis 122m2 PPE-Fläche. Preis ab 1'196'800.- für die drei verbleibenden Wohnungen zum Verkauf Die Wohnungen sind für CASATAX berechtigt

Verfügbarkeit

Verfügbar ab:
1. November 2027

Kosten

Kaufpreis:
CHF 1'196'800

Angaben

Objektkategorie
Eigentum
Objektreferenz
2e224446-fd43-4d7f-b09c-0a0c9d911091
PLZ/Ort
1258 Perly
Region
Canton de Genève
Wohnfläche
104 m²
Anzahl Zimmer
4
Baujahr
2027

Merkmale und Ausstattung

Balkon
Lift
Schöne Aussicht
Rollstuhlgängig
Minergie

Kontakt

  • Nummer Anzeigen

Auch inseriert auf:

homegate.ch