Wohnobjekt

Nouvelle promotion à Thierrens - Villas familiales 5.5p avec jardin

CHF 1'190'000

 | 

150 m²

 | 

5.5 Zimmer

Route de Saint-Cierges 5, 1410 Thierrens

Nouvelle promotion à Thierrens - Villas familiales 5.5p avec jardin - Karte
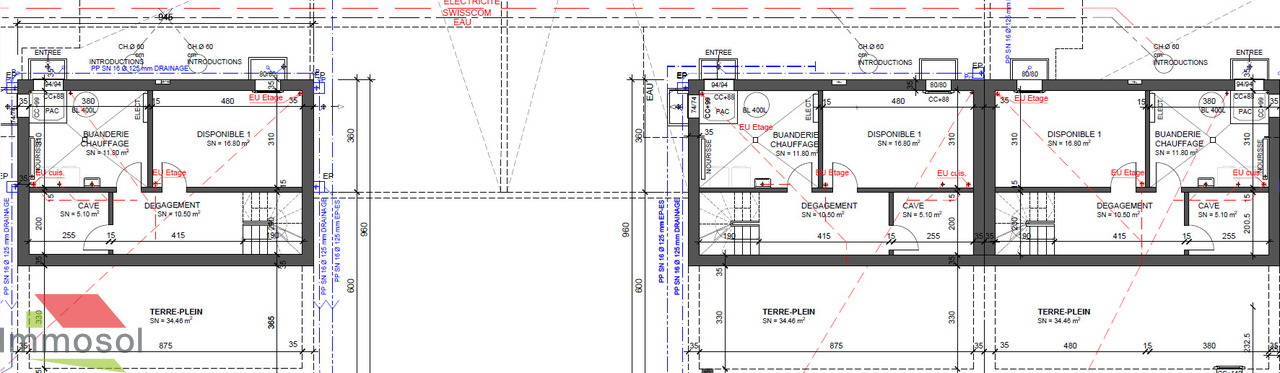
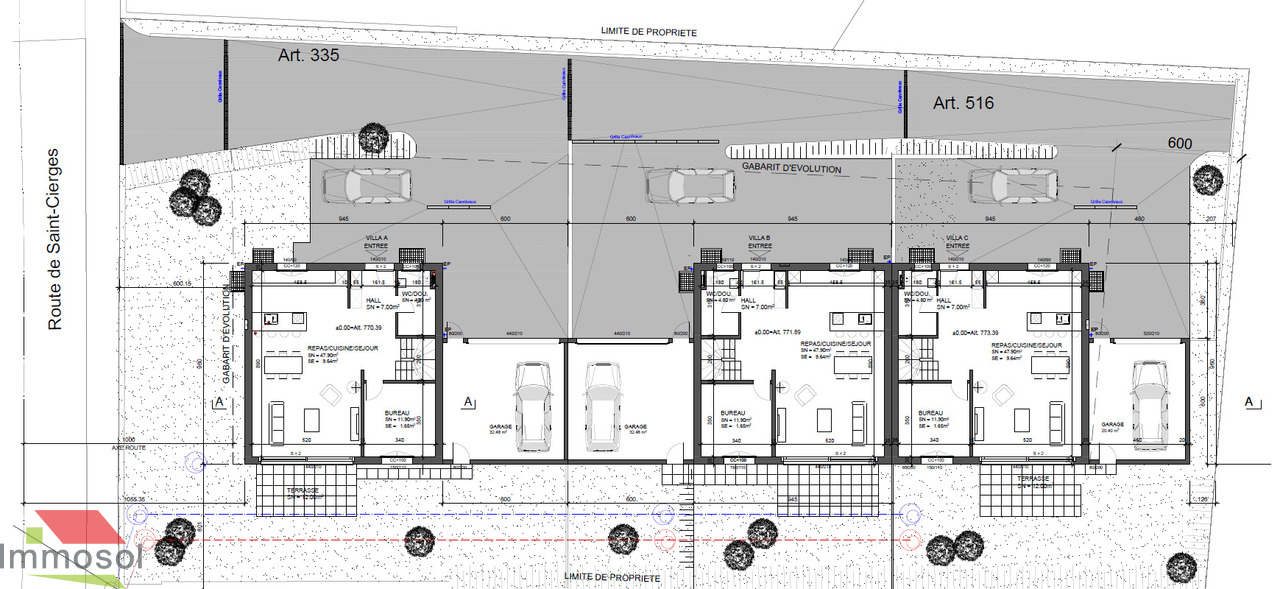
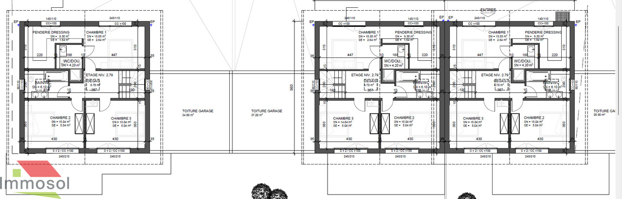
Nouvelle promotion à Thierrens - Villas familiales 5.5 pièces avec jardin - Villa BSituées dans un quartier calme et résidentiel, ces 3 villas neuves de 5.5 pièces offrent de beaux volumes, une excellente luminosité et un cadre de vie idéal pour une famille.Vous profiterez d'une orientation plein sud, d'un jardin privatif et d'une suite parentale spacieuse d'environ 30 m².Les atouts de la propriété : Villas neuves de 5.5 pièces Quartier calme et résidentiel Orientation plein sud Suite parentale d'environ 30 m² avec dressing Terrasse et jardin privatif Garage (en sus) + place extérieure Construction traditionnelle de qualité Pompe à chaleur air-eau individuelle Commerces et transports publics à piedDistribution :Rez-de-chausséeHall d'entrée avec armoires muralesSéjour lumineuxCuisine ouverte équipéeChambre / bureauWC visiteursÉtage2 chambresSalle de bains / WCSuite parentale d'environ 30 m² avec dressing et salle de douche / WCComblesGrande pièce disponible accessible par trappeSous-solLocal technique / buanderiePièce disponibleCaveSituationLes villas bénéficient d'une situation pratique avec toutes les commodités accessibles à pied :CoopMigrosCentre médicalArrêt de bus (lignes 428, 430, 435, 562 et 660)Contact et visitesMark Besserer - Régie Immosol079 157 35 35(Images non contractuelles)

Kosten

Kaufpreis:
CHF 1'190'000

Angaben

Objektkategorie
Eigentum
Objektreferenz
f0b1bd6a-7952-499f-8468-4aab4311a934
Adresse
Route de Saint-Cierges 5
PLZ/Ort
1410 Thierrens
Region
Gros-de-Vaud
Wohnfläche
150 m²
Grundstücksfläche
445 m²
Anzahl Zimmer
5.5
Baujahr
2026

Merkmale und Ausstattung

Balkon
Garage
Parkplatz
Kinderfreundlich

Kontakt

  • Régie Immosol SA
  • En Budron H 11, 1052, Le Mont-sur-Lausanne
  • Nummer Anzeigen

Auch inseriert auf:

homegate.ch