Wohnobjekt

St-Aubin, zu verkaufen, Einzelvilla mit 140 m2, Grundstück von 288 m2

CHF 975'000

 | 

140 m²

 | 

5 Zimmer

Route de Domdidier, 1566 St-Aubin FR

St-Aubin, zu verkaufen, Einzelvilla mit 140 m2, Grundstück von 288 m2 - Karte
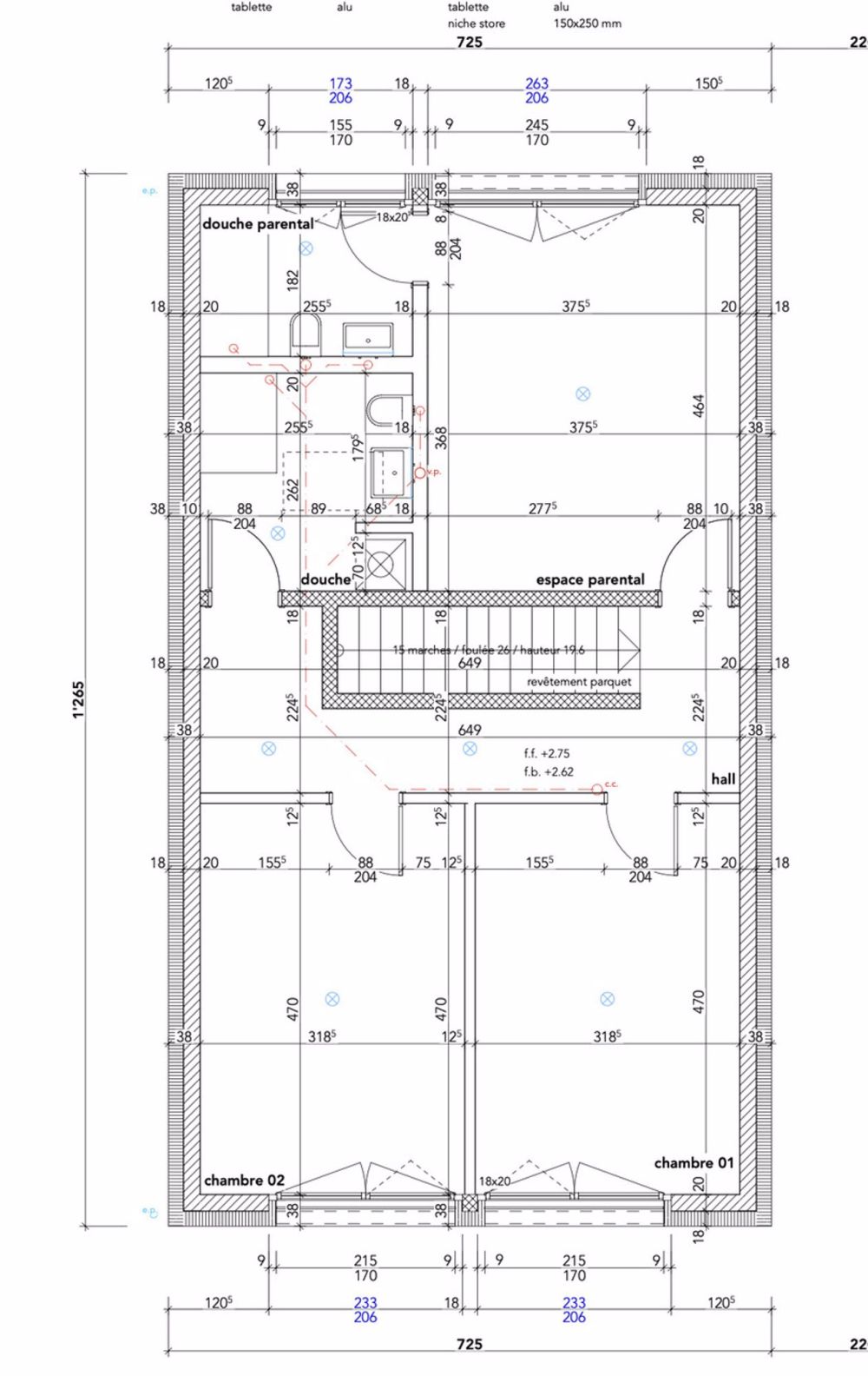
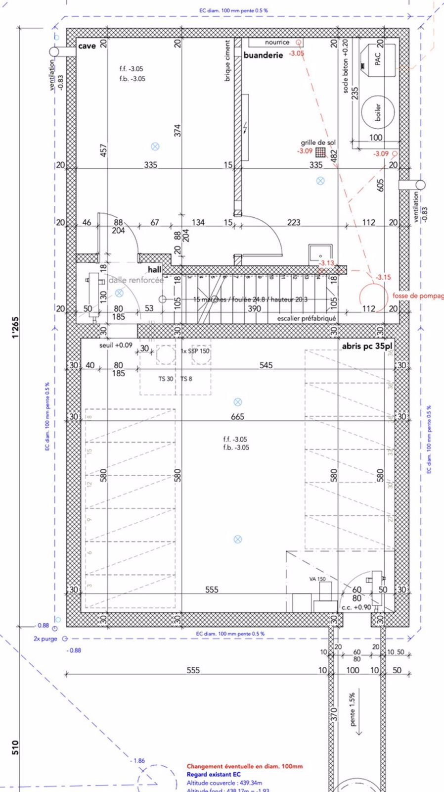
St-Aubin, zu verkaufen, Einzelvilla mit 140 m2 mit einer Nutzfläche von 214 m2 und einem Grundstück von 288 m2. Es handelt sich um die Villa D. Diese Villa besteht aus: Im Erdgeschoss: - einem Eingangsbereich - einem Wohnzimmer - einer offenen Küche und einem Esszimmer mit Zugang zu einer Terrasse - einem Gästetoilette Im Obergeschoss: - einem Schlafzimmer von 15 m2 - einem Schlafzimmer von 15 m2 - einem Elternschlafzimmer mit eigenem Bad (Dusche, WC und Waschbecken) - einem Flur - einem Badezimmer mit Dusche, WC, Waschbecken und Badewanne Im Untergeschoss: - einem Keller - einem Technikraum mit Waschküche - einem PC-Unterstand Wahl nach Belieben. Dieses Haus wird mit zwei überdachten Parkplätzen verkauft. Die Promotion umfasst 6 identische Villen mit unterschiedlichen Grundstücken: - Die Villa A mit 352 m2 Grundstück, zum Preis von: Fr. 1'095'000.- - Die Villa B mit 285 m2 Grundstück, zum Preis von: Fr. 975'000.-, verkauft - Die Villa C mit 286 m2 Grundstück, zum Preis von: Fr. 975'000.- - Die Villa D mit 288 m2 Grundstück, zum Preis von: Fr. 975'000.- - Die Villa E mit 289 m2 Grundstück, zum Preis von: Fr. 970'000.- - Die Villa F mit 539 m2 Grundstück, zum Preis von: Fr. 1'045'000.-, verkauft Die Option "free-cooling" ist mit diesem Heizsystem vorhanden und garantiert eine angenehme Kühlung während der Sommerhitze. St-Aubin ist ein hübsches Dorf, gelegen im Kanton Freiburg. Diese Siedlung mit 6 Villen ist nahe dem Dorfzentrum und allen Annehmlichkeiten. Der Autobahnanschluss und der Neuenburgersee sind 5 Minuten entfernt. Payerne ist 10 Minuten und Freiburg 20 Minuten entfernt. Mehr Informationen auf: www.montoit.ch oder unter 079 238 99 44

Kosten

Kaufpreis:
CHF 975'000

Angaben

Objektkategorie
Eigentum
Objektreferenz
50e90e8c-3746-41e9-89fc-cad97f28abde
Adresse
Route de Domdidier
PLZ/Ort
1566 St-Aubin FR
Region
District de la Broye
Wohnfläche
140 m²
Grundstücksfläche
288 m²
Anzahl Zimmer
5
Baujahr
2025

Merkmale und Ausstattung

Balkon
Kinderfreundlich

Kontakt

  • La Guérite 1, 1541, Sévaz
  • Nummer Anzeigen

Auch inseriert auf:

homegate.ch