Wohnobjekt

Geräumige 5,5-Zimmer-Neuwohnung in einer grünen Umgebung

CHF 770'000

 | 

127 m²

 | 

5.5 Zimmer

Route de l'Eglise 83, 1678 Siviriez

Geräumige 5,5-Zimmer-Neuwohnung in einer grünen Umgebung - Karte
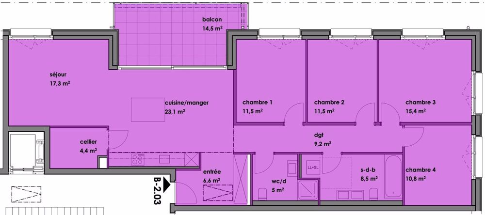
Entdecken Sie diese wunderschöne Wohnung, die in einem Dorf in der Nähe von Romont in einer ruhigen und grünen Umgebung geplant ist. Mit moderner Architektur kann es Sie ab Frühjahr 2026 begrüßen. Mit einer großzügigen Wohnfläche von 127,3 m² und 4 Schlafzimmern bietet dieses schöne 5,5-Zimmer-Apartment eine warme und einladende Atmosphäre. Es ist im contemporary-Stil gestaltet und mit hochwertigen Materialien ausgestattet. Ideal, um Ihren Morgenkaffee zu genießen oder sich am Ende des Tages zu entspannen, vervollständigt eine große Terrasse von 14,5 m² dieses Objekt. Link zur Website der Promotion: https://fo-bechon.maillardimmo.ch/de

Kosten

Kaufpreis:
CHF 770'000

Angaben

Objektkategorie
Eigentum
Objektreferenz
a16b3b61-e8bb-411d-a2e6-135d16e1c7c5
Adresse
Route de l'Eglise 83
PLZ/Ort
1678 Siviriez
Region
District de la Glâne
Wohnfläche
127 m²
Anzahl Zimmer
5.5
Etage
2
Baujahr
2026

Merkmale und Ausstattung

Balkon
Lift
Schöne Aussicht
Kinderfreundlich
Rollstuhlgängig

Kontakt

  • Maillard ImmoServices SA
  • Place Saint-Jacques 50, 1680, Romont FR
  • Nummer Anzeigen

Auch inseriert auf:

homegate.ch