Wohnobjekt

Das letzte schöne Attikapartment im Stil von 2 ½ Zimmern!

CHF 485'000

 | 

77 m²

 | 

2.5 Zimmer

1680 Romont FR

Das letzte schöne Attikapartment im Stil von 2 ½ Zimmern! - Karte
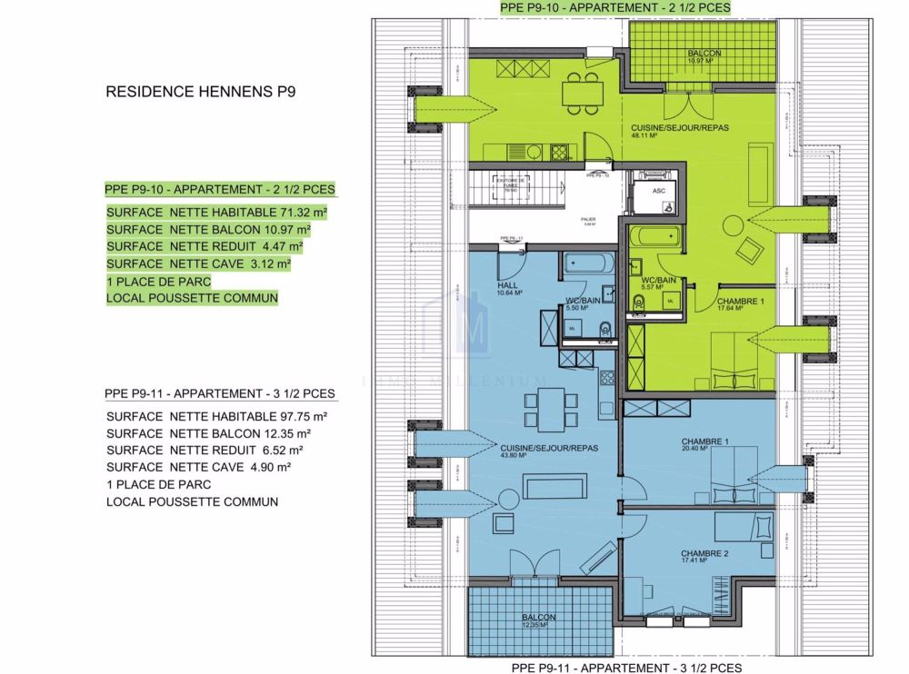
Das letzte Attikapartment zu ergreifen! Willkommen im charmanten Dorf Billens-Hennens, einem ruhigen und angenehmen Ort zum Leben mit einer atemberaubenden Aussicht auf die Alpen sowie auf die historische Stadt Romont. Geräumig und hell, profitiert dieses schöne Attikapartment mit 2,5 Zimmern von einer erhaltenen Intimität, ohne vis-à-vis. Es verbindet eine offene Küche mit dem Wohnbereich und einer schönen Terrasse, die eine angenehme Aussicht auf die Felder bietet. Die intelligente Anordnung dieser Wohnung bietet ein Gefühl von Raum und ein einzigartiges Komforterlebnis. Sobald Sie die Tür betreten, werden Sie von einer Fülle von natürlichen Licht, das jeden Winkel dieser Wohnung durchflutet, begrüßt. Elegante und gut durchdachte Räume Die Qualität der Ausführung ist ein wesentlicher Aspekt dieser Apartments. Jedes Detail wurde sorgfältig berücksichtigt, von hochwertigen Materialien bis hin zu modernen Einrichtungen, um eine Wohnumgebung von hohem Standard zu schaffen. Die Planung eines optimalen Raums, einer natürlichen Helligkeit, einer guten Wärme- und Schalldämmung sowie die Verwendung von hochwertigen Materialien sind das Ergebnis einer modernen Architektur in Verbindung mit einer sorgfältigen Ausführung. Eine hochwertige Wohnqualität In diesen drei Wohngebäuden entwickelt sich eine ruhige, hochwertige Wohnumgebung dank einladender Gemeinschaftsräume. Moderne Einrichtungen wie ein Spielplatz für Kinder und die Nähe zu einer Schule fördern das Wohlbefinden und soziale Interaktionen. Ein Aufzug, ein privater Keller sowie eine Tiefgaragenplatz "CHF +30'000" komplettieren die Ausstattung dieser Wohnung. Lage und öffentliche Verkehrsmittel Die Lage entlang der Kantonsstraße Romont-Lucens ist ideal. Die Gebäude liegen nur wenige Schritte von der Schule und der Bushaltestelle sowie etwa 900 Meter von dem Bahnhof Romont entfernt, was die Fahrt zu anderen Regionen erleichtert. Darüber hinaus ist die Gemeinde gut mit den umliegenden Städten verbunden, nur 15 Minuten von der Autobahn A12, 25 Minuten von Bulle, 25 Minuten von Freiburg, 20 Minuten von Payerne und der Autobahn A1 sowie 35 Minuten von Lausanne entfernt. Nutzen Sie diese Gelegenheit und zögern Sie nicht, uns zu kontaktieren, um ein Treffen zu organisieren.

Verfügbarkeit

Verfügbar ab:
1. November 2025

Kosten

Kaufpreis:
CHF 485'000

Angaben

Objektkategorie
Eigentum
Objektreferenz
e9a6ca3f-f10a-4bd0-98ff-cfc73d56c854
PLZ/Ort
1680 Romont FR
Region
District de la Glâne
Wohnfläche
77 m²
Anzahl Zimmer
2.5
Etage
3
Baujahr
2025

Merkmale und Ausstattung

Balkon
Garage
Schöne Aussicht
Rollstuhlgängig

Kontakt

  • IMMO MILLÉNIUM SÀRL
  • Route de la Grangette 57, 1723, Marly
  • Nummer Anzeigen

Auch inseriert auf:

homegate.ch