Wohnobjekt

Neue 4.5-Zimmer-Wohnung im 1. Stock

CHF 725'000

 | 

125 m²

 | 

4.5 Zimmer

1773 Léchelles

Neue 4.5-Zimmer-Wohnung im 1. Stock - Karte
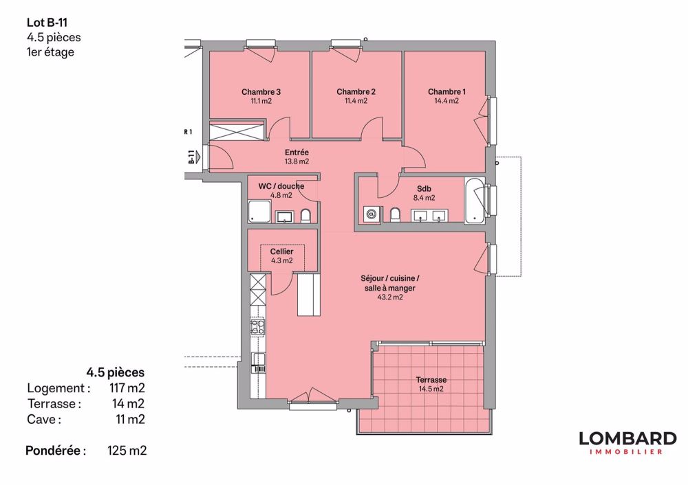
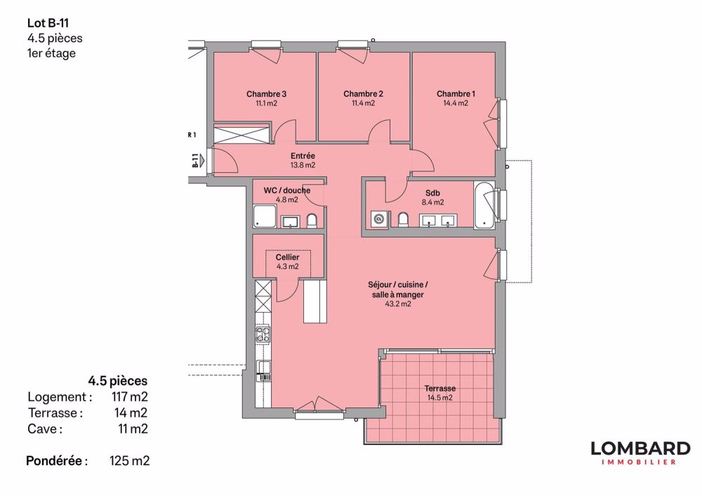
Zu verkaufen in Léchelles: wunderschöne neue 4.5-Zimmer-Wohnung im 1. Stock (Gebäude B) in einem kleinen Wohnhaus mit 9 Einheiten und Aufzug. Entdecken Sie die neue Werbekampagne « Résidences des Hirondelles » in Léchelles. Die Bauarbeiten haben begonnen und die Fertigstellung der Wohnungen ist für Ende 2025 geplant. Große 4.5-Zimmer-Wohnung mit 125 m2 Wohnfläche Komplett eingerichtete Küche (Miele) 2 Badezimmer Einbauschränke am Eingang der Wohnung Materialien und Ausstattung von hoher Qualität (motorisierte Jalousien, Dreifachverglasung, Mückenschutz, Thermostate usw.) Terrasse von 14 m2 Unterirdischer Parkplatz (zusätzlich zum Preis), privater Keller und Fahrradraum Photovoltaik-Anlagen Sie profitieren von einer Reduzierung eines Teils der Übertragungsrechte im Falle eines ersten Kaufs. Zögern Sie nicht, kontaktieren Sie uns für eine Besichtigung unter 026 663 1470 oder per E-Mail: [email protected] ----------------------------------------------------------------- Léchelles ist ein charmantes Dorf, das in die Gemeinde Belmont-Broye integriert ist, im Kanton Freiburg gelegen. Diese Ortschaft bietet ein ruhiges Leben, ist aber gut an die umliegenden Infrastrukturen angeschlossen. Léchelles verfügt über einen CFF-Bahnhof, der von der Linie S30 bedient wird und regelmäßige Bahnverbindungen zu Zielen wie Freiburg und Yverdon-les-Bains bietet. Mit dem Auto erreichen Sie Payerne in 10 Minuten, Murten, Estavayer-le-Lac und Freiburg in 20 Minuten und Lausanne und Bern in 45 Minuten. Der Schulbezirk Domdidier-Dompierre-Léchelles-Russy nimmt Schüler aus den vier Dörfern auf, die auf mehrere Standorte verteilt sind, darunter Domdidier, Dompierre und Léchelles, und gewährleistet so eine Nähe und Qualität der Ausbildung für die Kinder der Region. Zusammenfassend bietet Léchelles den Charme eines ruhigen Dorfes mit effizienten Verkehrsanbindungen und qualitativ hochwertigen Bildungseinrichtungen, was es zu einem idealen Wohnort für Familien macht.

Kosten

Kaufpreis:
CHF 725'000

Angaben

Objektkategorie
Eigentum
Objektreferenz
a4a8947c-82c1-4ef5-8add-66960a4b462f
PLZ/Ort
1773 Léchelles
Region
District de la Broye
Wohnfläche
125 m²
Anzahl Zimmer
4.5
Baujahr
2025

Merkmale und Ausstattung

Balkon
Lift
Garage

Kontakt

  • Lombard Immobilier SA
  • Champ-de-Lune 11, 1470, Estavayer-le-Lac
  • Nummer Anzeigen

Auch inseriert auf:

homegate.ch