Wohnobjekt

Appartement neuf de 4.5 pièces au 1er étage

CHF 725'000

 | 

125 m²

 | 

4.5 Zimmer

À Léchelles, 1773 Léchelles

Appartement neuf de 4.5 pièces au 1er étage - Karte
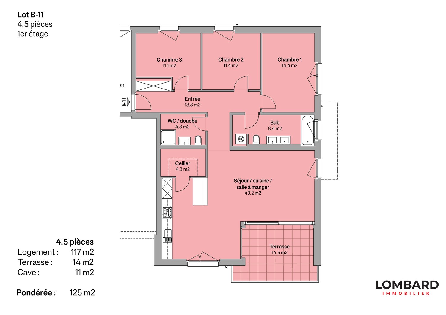
À vendre à Léchelles : magnifique appartement neuf de 4.5 pièces au 1er étage (Bâtiment B) situé dans un petit immeuble de 9 lots avec ascenseur.
Découvrez la nouvelle promotion « Résidences des Hirondelles » située à Léchelles. Cet appartement est neuf est disponible immédiatement.
Grand appartement de 4.5 pièces de 125 m2 de surface
Cuisine entièrement équipée (Miele)
2 salles de bains
Armoires de rangement à l'entrée de l'appartement
Matériaux et équipements de qualité (stores motorisés, triple vitrage, moustiquaires thermostats, etc.)
Terrasse de 14 m2
Parking souterrain (en sus du prix), cave privative et local à vélos
Panneaux photovoltaïques
Vous bénéficiez d'une réduction d'une partie des droits de mutation en cas de 1er achat.
N'attendez-plus, contactez-nous pour une visite au 026 663 1470 ou par email : [email protected]
-----------------------------------------------------------------
Léchelles est un charmant village intégré à la commune de Belmont-Broye, située dans le canton de Fribourg. Cette localité offre un cadre de vie paisible tout en étant bien connectée aux infrastructures environnantes.
Léchelles possède une gare CFF qui est desservie par la ligne S30, offrant des connexions ferroviaires régulières vers des destinations telles que Fribourg et Yverdon-les-Bains.
En voiture, vous rejoindrez Payerne en 10 minutes, Morat, Estavayer-le-Lac et Fribourg en 20 minutes et Lausanne et Bern en 45 minutes.
Le cercle scolaire de Domdidier-Dompierre-Léchelles-Russy accueille les élèves des quatre villages, répartis sur plusieurs sites notamment à Domdidier, Dompierre et Léchelles, garantissant une proximité et une qualité d'enseignement pour les enfants de la région.
En résumé, Léchelles combine le charme d'un village paisible avec des infrastructures de transport efficaces et des établissements scolaires de qualité, offrant un cadre de vie idéal pour les familles.

Verfügbarkeit

Bezugstermin:
30. Januar 2026

Kosten

Kaufpreis:
CHF 725'000

Angaben

Objektkategorie
Eigentum
Objektreferenz
4d94858b-bd03-4ba2-b7c0-854cc7d8a125
Adresse
À Léchelles
PLZ/Ort
1773 Léchelles
Region
District de la Broye
Wohnfläche
125 m²
Anzahl Zimmer
4.5
Baujahr
2025

Merkmale und Ausstattung

Balkon
Lift
Garage
Parkplatz

Kontakt

Maxime Maffre
  • Maxime Maffre
  • Lombard Immobilier SA
  • gibt Ihnen gerne Auskunft.
  • Nummer Anzeigen

Auch inseriert auf:

homegate.ch