Wohnobjekt

3.5 de standing, au pied du Moléson, proche du centre de Bulle

CHF 720'000

 | 

99 m²

 | 

3.5 Zimmer

Chemin des Groseilles 4, 1635 La Tour-de-Trême

3.5 de standing, au pied du Moléson, proche du centre de Bulle - Karte
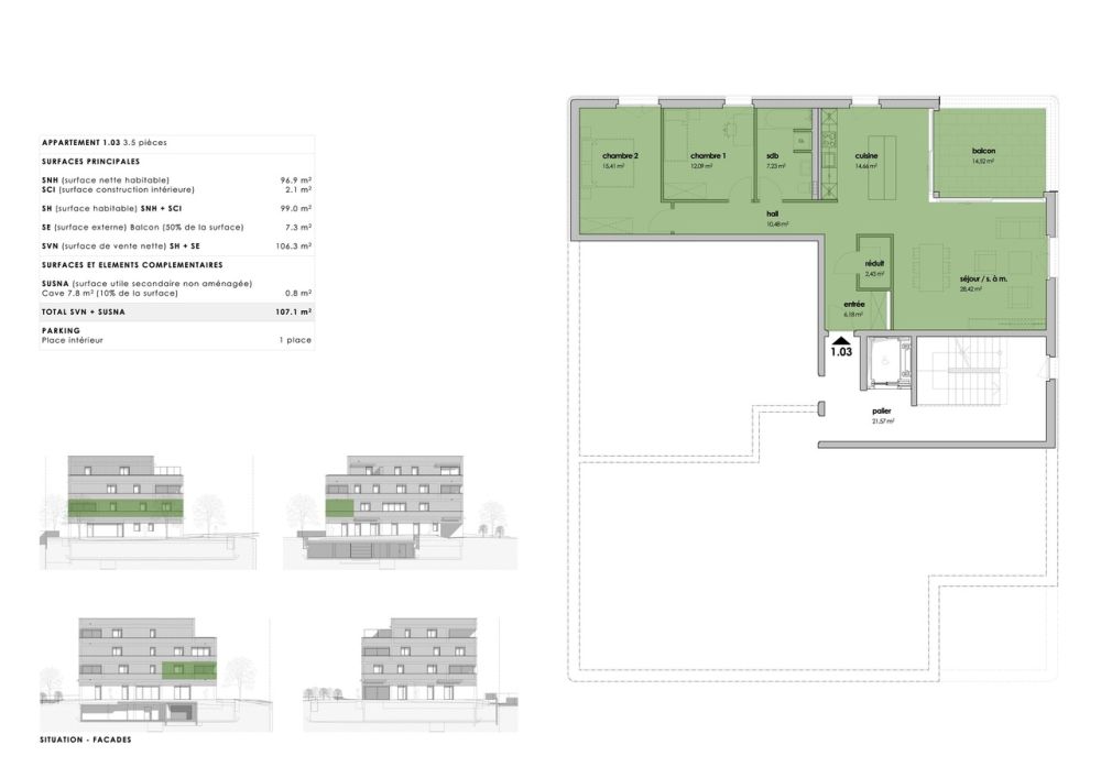
Situé au 1er étage d'un nouvel immeuble en PPE, ce très grand appartement 3.5 pièces de standing supérieur aux portes de Bulle saura vous séduire par son emplacement idéal, son cadre bucolique et sa vue imprenable sur la Gruyère, le Moléson et ses collines.Entrée avec armoires murales et réduitEspace à vivre de plus de 42m2 avec accès à une loggiaCuisine agencée avec îlot, de qualité supérieure, Meubles KollyDeux chambres de 15m2 et 12m2Salles de bain baignoire, avec pré-équipement pour LL et SLLoggia de plus de 14m2 avec store en toile motorisé CaveLocal vélos, poussettesPlaces de parc dans le parking souterrain Location de quelques places de parc extérieures envisageable Carrelages grand formatParquet massif vitrifié dans les chambresPAC géothermique avec free-cooling Panneaux solaires photovoltaïquesPré-équipement pour recharge véhicules dans le parking souterrainEspace extérieur engazonné et arborisé, avec prairie fleurie, revêtement en pavésTerrain de pétanque et jardin communsLien vers le site dédié de la promotion : https://bulle.maillardimmo.ch/fr

Verfügbarkeit

Bezugstermin:
1. Dezember 2026

Kosten

Kaufpreis:
CHF 720'000

Angaben

Objektkategorie
Eigentum
Objektreferenz
46a388e1-2d5d-467a-8c41-b39234812a65
Adresse
Chemin des Groseilles 4
PLZ/Ort
1635 La Tour-de-Trême
Region
Greyerz
Wohnfläche
99 m²
Grundstücksfläche
1883 m²
Anzahl Zimmer
3.5
Etage
1
Baujahr
2026

Merkmale und Ausstattung

Lift
Kinderfreundlich
Rollstuhlgängig

Kontakt

  • Maillard ImmoServices SA
  • Place Saint-Jacques 50, 1680, Romont
  • Nummer Anzeigen

Auch inseriert auf:

homegate.ch