Wohnobjekt

2.5 de standing, au pied du Moléson, proche du centre de Bulle

CHF 460'000

 | 

68 m²

 | 

2.5 Zimmer

Chemin des Groseilles 4, 1635 La Tour-de-Trême

2.5 de standing, au pied du Moléson, proche du centre de Bulle - Karte
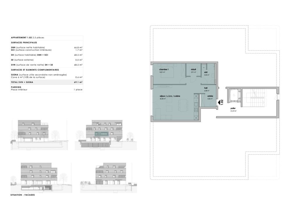
Situé au 1er étage d'un nouvel immeuble en PPE, ce joli appartement 2.5 pièces de standing supérieur aux portes de Bulle saura vous séduire par son emplacement idéal, son cadre bucolique, son ensoleillement optimal et sa vue imprenable sur la Gruyère, le Moléson et ses collines.Entrée avec armoires murales,RéduitEspace à vivre de plus de 32m2 avec grandes fenêtres au sud-ouestCuisine agencée de qualité supérieure, Meubles KollyUne chambre de 14m2Salles de bain douche, avec pré-équipement pour LL et SL CaveLocal vélos, poussettesPlaces de parc dans le parking souterrain Location de quelques places de parc extérieures envisageable Carrelages grand formatParquet massif vitrifié dans les chambresPAC géothermique avec free-cooling Panneaux solaires photovoltaïquesPré-équipement pour recharge véhicules dans le parking souterrainEspace extérieur engazonné et arborisé, avec prairie fleurie, revêtement en pavésTerrain de pétanque et jardin communsLien vers le site dédié de la promotion : https://bulle.maillardimmo.ch/fr

Verfügbarkeit

Bezugstermin:
1. Dezember 2026

Kosten

Kaufpreis:
CHF 460'000

Angaben

Objektkategorie
Eigentum
Objektreferenz
f7996fe1-e672-4c04-8118-0e29486ffca2
Adresse
Chemin des Groseilles 4
PLZ/Ort
1635 La Tour-de-Trême
Region
Greyerz
Wohnfläche
68 m²
Grundstücksfläche
1883 m²
Anzahl Zimmer
2.5
Etage
1
Baujahr
2026

Merkmale und Ausstattung

Lift
Kinderfreundlich
Rollstuhlgängig

Kontakt

  • Maillard ImmoServices SA
  • Place Saint-Jacques 50, 1680, Romont
  • Nummer Anzeigen

Auch inseriert auf:

homegate.ch