Wohnobjekt

Estavayer / Frasses Dernier 2,5 pièces, Rez avec jardin de 83 m2

CHF 425'000

 | 

53 m²

 | 

2.5 Zimmer

Frasses, Route Cantonale 37, 1483 Frasses

Estavayer / Frasses  Dernier 2,5 pièces, Rez avec jardin de 83 m2 - Karte
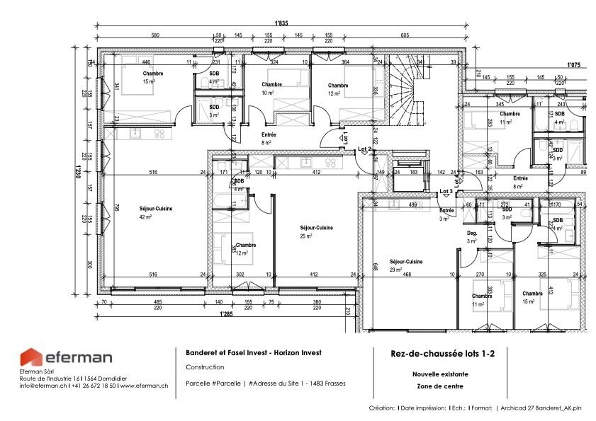
Nous avons le plaisir de vous présenter, en exclusivité, cette nouvelle promotion située dans le village de Frasses (commune Les Montets/FR), à seulement quelques kilomètres d'Estavayer-le-Lac et à 1 min. en voiture de la jonction autoroute.Composée de 10 appartements de 2.5 à 5.5 pces, la promotion " Horizon 20.77 " vous offre un cadre exceptionnel dans une nature à portée de mains en zone de champs avec une belle vue dégagée sur le Jura. La parcelle jouit d'un ensoleillement optimal.Livraison printemps 2027! Profitez des taux hypothécaires historiquement bas. L'immeuble est réparti sur 3 niveaux avec un parking souterrain :rez-de-chaussée avec 4 appartements (4.5 pces, 2 x 3.5 pces, 2.5 pces)1er étage avec 4 appartements (4.5 pces, 2 x 3.5 pces, 2.5 pces)Combles avec 2 appartements (5.5 pces)Voici la répartition du 2.5 pces (lot 2) d'une surface de 53 m2 situé au rez-de-chaussée avec une terrasse de 14 m2 et un jardin de 83 m2 : - Hall d'entrée 4 m2 avec armoires murales- Séjour/cuisine équipée 26 m2 avec accès à la terrasse- Chambre à coucher 14 m2- Salle d'eau avec douche/wc/lavabo 4 m2Cet appartement dispose également d'une cave de 3 m2 ainsi que d'une place de parc dans le garage souterrain non comprise dans le prix de vente.CHAUFFAGE - Pompe à chaleur air/eau avec distribution au sol- Panneaux solairesDIVERS - Les appartements du rez disposent tous de portes-fenêtres avec accès direct à la terrasse ou au jardin. Les appartements du 1er étage disposent tous de portes-fenêtres avec barrières de protection.- Couvert à vélos- Places de parc visiteurs- Choix des finitions au gré de l'acquéreur. LES ENVIRONS- Autoroute et restoroute à proximité immédiate avec divers commerces/restaurants et station essence- Gare CFF à Estavayer-le-Lac et Cugy- Arrêt de bus TPF au villageLe village de Frasses se situe à 5 min. en voiture d'Estavayer-le-Lac, petite cité médiévale pleine de charme se trouvant au bord du lac de Neuchâtel.Par sa position géographique, Frasses se situe proche de grandes villes telles que :- Yverdon-les-Bains en 20 min.- Fribourg en 30 min.- Lausanne en 40 min.- Berne en 40 min.- Neuchâtel en 40 min.PRIX DE VENTELot 2 - 2.5 pces au rez-de-chaussée terrasse + jardin, surface PPE 66 m2 : CHF 425'000.-+ parking CHF 35'000.- = CHF 460'000.-Lot 1 - 4.5 pces au rez-de-chaussée terrasse + jardin, surface PPE 138 m2 : CHF 775'000.-Lot 2 - 2.5 pces au rez-de-chaussée terrasse + jardin, surface PPE 66 m2 : CHF 425'000.-Lot 3 - 3.5 pces au rez-de-chaussée terrasse + jardin, surface PPE 92 m2 : VENDULot 4 - 3.5 pces au rez-de-chaussée terrasse + jardin, surface PPE 105 m2 : CHF 635'000.-Lot 5 - 4.5 pces au 1er étage + balcon, surface PPE 107 m2 : VENDULot 6 - 2.5 pces au 1er étage + balcon, surface PPE 60 m2: VENDULot 7 - 3.5 pces au 1er étage + balcon, surface PPE 85 m2 :RESERVELot 8 3.5 pces au 1er étage + balcon, surface PPE 88 m2 : VENDULot 9 - 5.5 pces dans les combles + balcon, surface PPE 113 m2 : CHF 695'000.-Lot 10 - 5.5 pces dans les combles + balcon, surface PPE 113 m2 : CHF 680'000.-Chaque appartement dispose d'une place de parc dans le parking souterrain, CHF 35'000.- en sus du prix de vente.N'hésitez pas à me contacter pour tout renseignement complémentaire ou visite locale au 079 899 72 38 ainsi qu'à consulter mon site web www.nc-invest.immoJo Nesci

Kosten

Kaufpreis:
CHF 425'000

Angaben

Objektkategorie
Kauf
Objektreferenz
3f6413d1-2ffe-4860-bb97-3881bd7fd122
Adresse
Frasses, Route Cantonale 37
PLZ/Ort
1483 Frasses
Region
District de la Broye
Wohnfläche
53 m²
Anzahl Zimmer
2.5
Etage
EG
Baujahr
2026

Merkmale und Ausstattung

Balkon
Kabelfernsehen
Lift
Kinderfreundlich
Rollstuhlgängig

Kontakt

  • NC Invest Group SA
  • Rue de la Gare 12, 1470 Estavayer-le-lac
  • Nummer Anzeigen

Auch inseriert auf:

homegate.ch