Wohnobjekt

Prächtige Villa 3,5 Zimmer in Domdidier nahe bei Komfort und Natur

CHF 605'000

 | 

88 m²

 | 

3.5 Zimmer

Route des Caudrettes 40, 1564 Domdidier

Prächtige Villa 3,5 Zimmer in Domdidier nahe bei Komfort und Natur - Karte
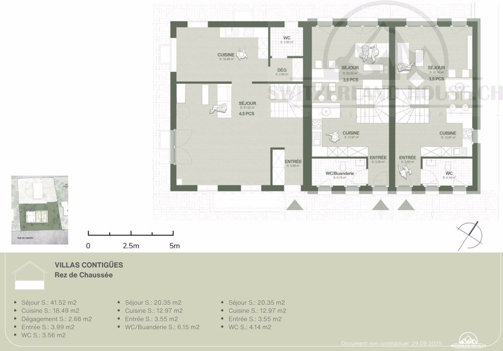
Prächtige und geräumige Reihenvilla mit 3,5 Zimmern mit individueller Heizung, in einem Wohnviertel in Domdidier, das alles bietet, um es sich gut gehen zu lassen. Eine außergewöhnliche Lage in einem Wohnviertel, ruhig und nahe der Natur und aller Annehmlichkeiten, Schulen, Geschäften und Busverbindungen, nur 5 Minuten zu Fuß entfernt. Für Naturliebhaber können Sie die schönen Spaziergänge zu Fuß in aller Ruhe genießen und sind nur 12 Minuten mit dem Auto von der Salavaux-Strand und dem Moratsee entfernt. Diese helle und komfortable Durchgangsvilla bietet Ihnen einen großen Wohnbereich mit einer offenen Küche von 37 m2, die auf einen schön bepflanzten Südwest-Garten hinausgeht, um den Sonnenaufgang und -untergang zu bewundern, sowie ein Schlafzimmer. Im Obergeschoss zwei Elternschlafzimmer von 14 m2 mit eigenem Bad. Im Untergeschoss ein Technikraum mit individueller Heizung. Villa 3,5 Zimmer (Zentrum) 82,4 m2 netto Wohnfläche 88 m2 gewichtete Fläche Terrasse ca. 15 m2 Keller und Technikraum 11,85 m2 Grundstücksfläche ca. 110 m2 Verkaufspreis 605'000 CHF einschließlich 1 Außenparkplatz 10'000 CHF + 1 Besucherparkplatz (für alle Wohnungen) Villa 4,5 Zimmer (links am Grundstücksrand)133,11 m2 netto Wohnfläche 144 m2 gewichtete Fläche Terrasse ca. 15 m2 Keller und Technikraum 67 m2 Grundstücksfläche 292 m2 Verkaufspreis 875'000 CHF Einschließlich 1 Außenparkplatz 10'000 CHF + 1 Besucherparkplatz (für alle Wohnungen) Baugenehmigung erteilt, Baubeginn im Herbst 2025Geplante Fertigstellung im Frühjahr 2026 Mit individueller Wärmepumpe und Photovoltaik-Anlagen ausgestattet. Bitte kontaktieren Sie uns für weitere Informationen und für einen möglichen Besuch der Liegenschaft.

Kosten

Kaufpreis:
CHF 605'000

Angaben

Objektkategorie
Eigentum
Objektreferenz
989636f1-b47e-4d11-8915-6106fef4366e
Adresse
Route des Caudrettes 40
PLZ/Ort
1564 Domdidier
Region
District de la Broye
Wohnfläche
88 m²
Grundstücksfläche
110 m²
Anzahl Zimmer
3.5
Etage
EG
Baujahr
2026

Kontakt

  • Chemin du Verneiron 13, 1726, Farvagny-le-Grand
  • Nummer Anzeigen

Auch inseriert auf:

immoscout24.ch