Wohnobjekt

Neubauprojekt in Cottens

CHF 975'000

 | 

107 m²

 | 

5.5 Zimmer

Route du Centre 36A, 1741 Cottens FR

Neubauprojekt in Cottens - Karte
Beschreibung Hier entstehen zwei Doppelhaushälften!
Im Dorfkern von Cottens entsteht ein modernes Doppelhaus mit hochwertiger Ausstattung, einer durchdachten Raumaufteilung und einem tollen Aussenbereich. Die lichtdurchfluteten Räume bieten ein harmonisches Wohnambiente, das sich perfekt für Familien eignet. Der Innenausbau kann individuell nach Ihren Wünschen gewählt werden, sodass Sie Ihr neues Zuhause ganz nach Ihren Vorstellungen gestalten können.
Highlights:- Energieeffiziente Bauweise für nachhaltiges Wohnen- Zentrale Lage im charmanten Dorfkern von Cottens, in unmittelbarer Nähe zu Schulen, Geschäften und öffentlichen Verkehrsmitteln- Gartenbereich für entspannte Stunden im Freien
Verkaufsobjekt - Haus A Wohnfläche: ca. 112.80 m2 (inkl. 1/3 Terrasse) Parzellengrösse: ca. 150.00 m2 Zimmer: 5.5 Verkaufspreis: CHF 990'000.00 Parkplätze: Zwei Aussenparkplätze sind im Kaufpreis inklusive
Erdgeschoss: - Eingangsbereich - Grosszügige Küche - Offener Wohn- und Essbereich mit Zugang zum Aussenbereich- Tolle Terrasse und Grünfläche
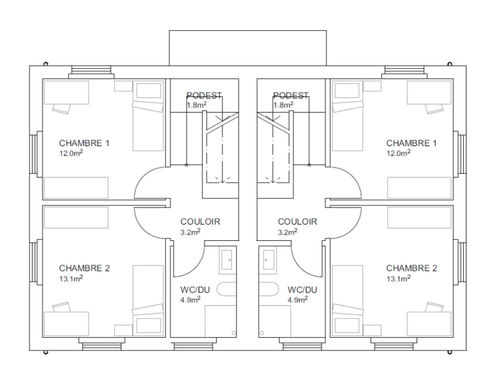
1. Obergeschoss: - Korridor- Zwei schöne Zimmer- Modernes Badezimmer mit Dusche 2. Obergeschoss: - Korridor- Zwei helle Zimmer mit Dachfenster- Schönes Badezimmer mit Badewanne und Dachfenster
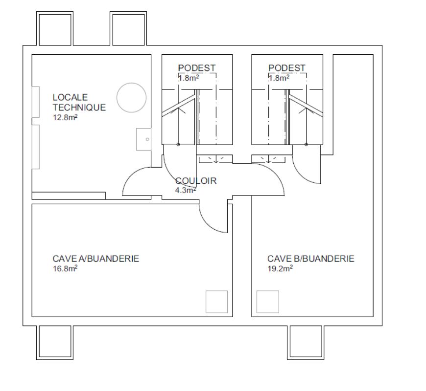
Untergeschoss: - Praktischer Keller - Gemeinschaftliches Techniklokal Dieses Neubauprojekt eignet sich ideal für Familien, die Wert auf eine moderne Bauweise, einen attraktiven Aussenbereich und sowie eine zentrale Lage legen. Verkaufsobjekt - Haus B Wohnfläche: ca. 112.80 m2 (inkl. 1/3 Terrasse) Parzellengrösse: ca. 150.00 m2 Zimmer: 5.5 Verkaufspreis: CHF 975'000.00 Parkplätze: Zwei Aussenparkplätze sind im Kaufpreis inklusive
Erdgeschoss: - Eingangsbereich - Grosszügige Küche - Offener Wohn- und Essbereich mit Zugang zum Aussenbereich- Tolle Terrasse und Grünfläche
1. Obergeschoss: - Korridor- Zwei schöne Zimmer- Modernes Badezimmer mit Dusche 2. Obergeschoss: - Korridor- Zwei helle Zimmer mit Dachfenster- Schönes Badezimmer mit Badewanne und Dachfenster
Untergeschoss: - Praktischer Keller - Gemeinschaftliches Techniklokal Perfekt für Familien, die Wert auf modernes Wohnen, einen schönen Aussenbereich und eine zentrale Lage legen.
Bauliche Angaben Konstruktion: Massive Bauweise mit Wärmedämmung von 22 cm Dach: Holzbauweise mit ZiegelFenster: DreifachverglasungStoren: elektrisch bedienbare RafflamellenstorenHeizung: Luft-Wasser Wärmepumpe, Verteilung mittels Fussbodenheizung
Allgemeine Informationen Die Kosten für Handänderung sind zu Lasten der Käuferschaft.Die Baubewilligung für das Projekt ist bereits vorhanden.
Baustart: Frühling 2026Voraussichtlicher Bezug: Sommer/Herbst 2027

Kosten

Kaufpreis:
CHF 975'000

Angaben

Objektkategorie
Eigentum
Objektreferenz
db195278-2f45-4740-a3f5-8ee28d785cca
Adresse
Route du Centre 36A
PLZ/Ort
1741 Cottens FR
Region
District de la Sarine
Wohnfläche
107 m²
Anzahl Zimmer
5.5
Etage
EG
Baujahr
2027

Kontakt

Nina Gobet
  • Nina Gobet
  • gestina sa
  • gibt Ihnen gerne Auskunft.
  • Nummer Anzeigen

Auch inseriert auf:

homegate.ch