Kaufen
Mieten
Premium-Abo
FAQ
Inserieren
Anbieter
Immobilien Ratgeber
Testimonials & Referenzen
Marketing
Newsletter anmelden
Jetzt Anmelden!
Kontakt
Über uns
AGB
Kaufen
Mieten
Premium-Abo
FAQ
Inserieren
Mehr..
Anbieter
Immobilien Ratgeber
Testimonials & Referenzen
Marketing
Newsletter anmelden
Merkliste
Anmelden
Anmelden
Passwort vergessen?
Benutzername oder E-Mail-Adresse
Passwort
Angemeldet bleiben
Anmelden
Noch nicht registriert?
Kostenlos registrieren und Suchprofil erstellen
Als Immobilien-Anbieter registrieren
Mein Konto
Meine Suchprofile
Einstellungen
Premium Abonnement
Hilfebereich
Logout
Exklusiv Recherchiert
Publiziert am 1.12.2025.
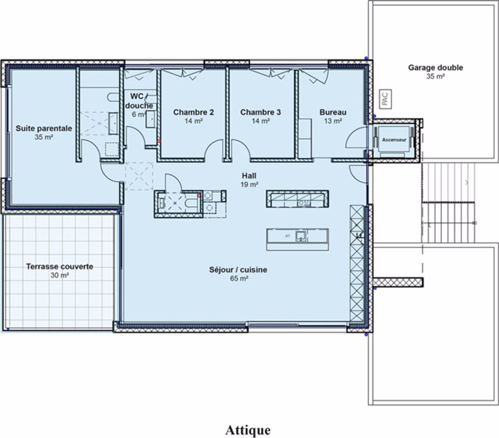
Wohnobjekt
Cheyres, zu verkaufen, herrliches Penthouse von 190 m2 mit Seeblick
CHF
1'520'000
|
5.5
Zimmer
Kontakt
Auch inseriert auf:
urbanhome.ch
Route de Vaularbel, 1468 Cheyres
Karte anzeigen
Karte vergrössern
5.5 Zimmer Attikawohnung
Mehr Text sehen
Kosten
Kaufpreis:
CHF 1'520'000
Angaben
Objektkategorie
Eigentum
Objektreferenz
a6c45e96-6a61-4c4f-b784-0fd45e4f06b9
Adresse
Route de Vaularbel
PLZ/Ort
1468
Cheyres
Region
District de la Broye
Anzahl Zimmer
5.5
Baujahr
2024
Merkmale und Ausstattung
Lift
Kontakt
Auch inseriert auf:
urbanhome.ch
Ihre letzten Ansichten