Wohnobjekt

Grosse 3.5-Zimmer-Eigentumswohnung mit grosszügigem Balkon - an ruhiger und naturnaher Lage!

CHF 490'000

 | 

3.5 Zimmer

Obere Wegmattestrasse 2, 3555 Trubschachen

Grosse 3.5-Zimmer-Eigentumswohnung mit grosszügigem Balkon - an ruhiger und naturnaher Lage! - Karte
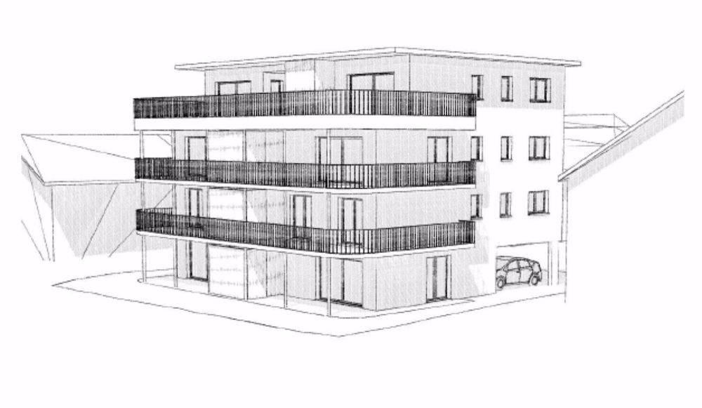
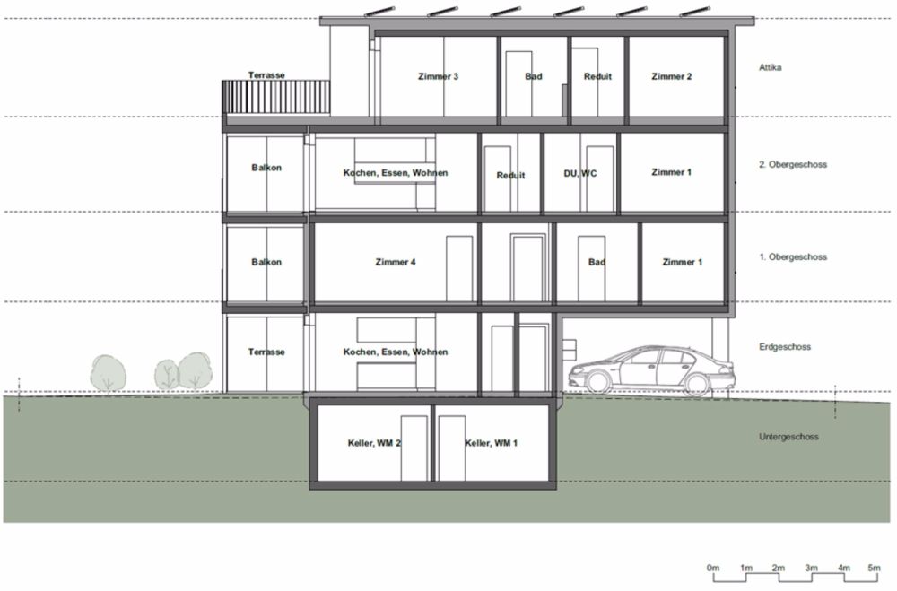
Zu Verkaufen NEUBAU Trubschachen - Eigentumswohnungen an ruhiger, naturnaher Lage! Grosse 3.5-Zimmer-Wohnung Bruttogeschossfläche: 93 m² Verkaufspreis: CHF 490'000.- Ihre Vorteile grosszügiger Balkon mit 23 m² und grossem AussenreduitMitgestaltungswünsche können je nach Möglichkeit berücksichtigt werdenReduit in WohnungCarportparkplätze können separat dazugekauft werdenBahnhof in 8 Minuten Gehdistanz erreichbarDirekte Verbindungen mit dem RegioExpress (Schnellzug) nach Bern und LuzernEinkaufsmöglichkeiten (Volg, Bäckerei, Bahnhofladen) befinden sich 8 Gehminuten entferntNaherholungsgebiete der Flüsse Trub und Ilfis sind in unmittelbarer NäheSchulhaus in 7 Minuten zu Fuss erreichbar In dieser Liegenschaft stehen weitere Wohnungen zum Verkauf - die Eckdaten sind unten aufgeführt. Erdgeschoss & 1. Obergeschoss 5.5-Zimmer-Maisonette-Wohnung, BGF 142 m², CHF 830'000.- (Whg. 2) 3. Obergeschoss Exklusive und grosszügige Attika 4.5-Zimmer-Wohnung, BGF 143 m², CHF 990'000.- (Whg. 5)

Kosten

Kaufpreis:
CHF 490'000

Angaben

Objektkategorie
Eigentum
Objektreferenz
bd533ba3-f605-416b-aa02-59f5b629c0db
Adresse
Obere Wegmattestrasse 2
PLZ/Ort
3555 Trubschachen
Region
Emmental
Grundstücksfläche
634 m²
Anzahl Zimmer
3.5
Etage
2
Baujahr
2026

Kontakt

  • KIPFER & KIPFER AG
  • Kirchgasse 5, 3550, Langnau im Emmental
  • Nummer Anzeigen

Auch inseriert auf:

homegate.ch