Wohnobjekt

Exklusive und grosszügige Attika 4.5-Zimmer-Eigentumswohnung an ruhiger, naturnaher Lage!

CHF 990'000

 | 

4.5 Zimmer

Obere Wegmattestrasse 2, 3555 Trubschachen

Exklusive und grosszügige Attika 4.5-Zimmer-Eigentumswohnung an ruhiger, naturnaher Lage! - Karte
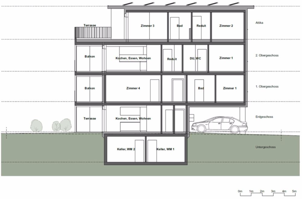
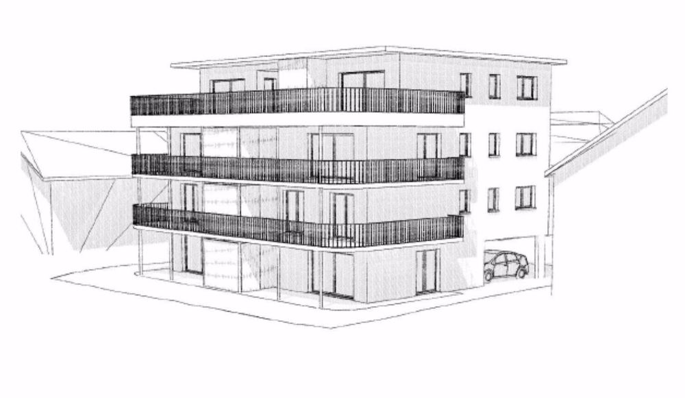
Zu Verkaufen NEUBAU Trubschachen - Eigentumswohnungen an ruhiger, naturnaher Lage! Exklusive und grosszügige Attika 4.5-Zimmer-Wohnung mit 84 m² Terrasse (Whg. 5) Bruttogeschossfläche: 143 m² Verkaufspreis: CHF 990'000.- Ihre Vorteile Terrasse mit riesigen 84 m²Mitgestaltungswünsche können je nach Möglichkeit berücksichtig werdenReduitCarportparkplätze können separat dazugekauft werdenBahnhof in 8 Minuten Gehdistanz erreichbarDirekte Verbindungen mit dem RegioExpress (Schnellzug) nach Bern und LuzernEinkaufsmöglichkeiten (Volg, Bäckerei, Bahnhofladen) befinden sich 8 Gehminuten entferntNaherholungsgebiete der Flüsse Trub und Ilfis sind in unmittelbarer NäheSchulhaus in 7 Minuten zu Fuss erreichbar In dieser Liegenschaft stehen weitere Wohnungen zum Verkauf - die Eckdaten sind unten aufgeführt. Erdgeschoss & 1. Obergeschoss 5.5-Zimmer-Maisonette-Wohnung, BGF 142 m², CHF 830'000.- (Whg. 2) 2. Obergeschoss Grosse 3.5-Zimmer-Wohnung, BGF 93 m², CHF 490'000.- (Whg. 3) Grosse 3.5-Zimmer-Wohnung, BGF 93 m², CHF 490'000.- (Whg. 4)

Kosten

Kaufpreis:
CHF 990'000

Angaben

Objektkategorie
Eigentum
Objektreferenz
73f23bd2-3636-40da-b1ea-6390980298ce
Adresse
Obere Wegmattestrasse 2
PLZ/Ort
3555 Trubschachen
Region
Emmental
Grundstücksfläche
634 m²
Anzahl Zimmer
4.5
Etage
3
Baujahr
2026

Kontakt

  • KIPFER & KIPFER AG
  • Kirchgasse 5, 3550, Langnau im Emmental
  • Nummer Anzeigen

Auch inseriert auf:

homegate.ch