Wohnobjekt

Moderne 5.5-Zimmer-Maisonette-Eigentumswohnung - wie Doppelhaushälfte an ruhiger, naturnaher Lage!

CHF 830'000

 | 

5.5 Zimmer

Obere Wegmattestrasse 2, 3555 Trubschachen

Moderne 5.5-Zimmer-Maisonette-Eigentumswohnung - wie Doppelhaushälfte an ruhiger, naturnaher Lage! - Karte
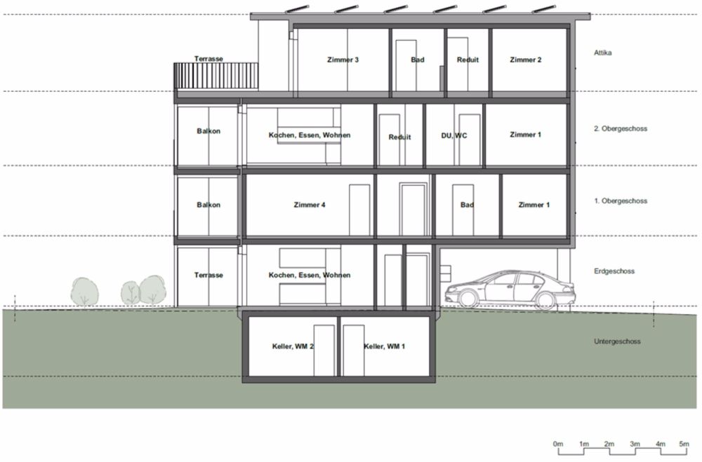
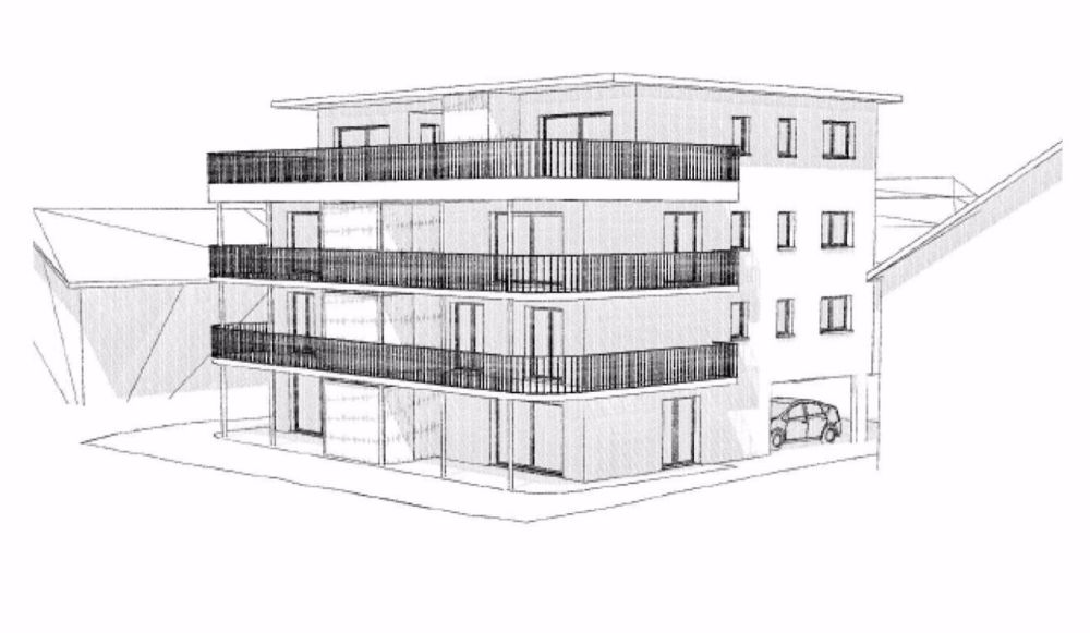
Zu Verkaufen NEUBAU Trubschachen - Eigentumswohnungen an ruhiger, naturnaher Lage! 5.5-Zimmer-Maisonette-Wohnung im Erdgeschoss und 1. Obergeschoss - wie Doppelhaushälfte (Whg. 2) Bruttogeschossfläche: 142 m² Verkaufspreis: CHF 830'000.- Ihre Vorteile Leben wie in DoppelhaushälfteMaisonette-Wohnung über zwei EtagenEingang im Erdgeschoss mit direktem Zugang zum AussenbereichZweiter Eingang im 1. Obergeschoss, über den allgemeinen Lift oder Treppenhaus des Hauses erreichbarErdgeschoss: grosse 23 m² Terrasse mit grosszügigem Rasen zur privaten Nutzung und Aussenreduit1. Obergeschoss: grosser Balkon mit 23 m² und grossem AussenreduitMitgestaltungswünsche können je nach Möglichkeit berücksichtigt werdenCarportparkplätze können separat dazugekauft werdenBahnhof in 8 Minuten Gehdistanz erreichbarDirekte Verbindungen mit dem RegioExpress (Schnellzug) nach Bern und LuzernEinkaufsmöglichkeiten (Volg, Bäckerei, Bahnhofladen) befinden sich 8 Gehminuten entferntNaherholungsgebiete der Flüsse Trub und Ilfis sind in unmittelbarer NäheSchulhaus in 7 Minuten zu Fuss erreichbar In dieser Liegenschaft stehen weitere Wohnungen zum Verkauf - die Eckdaten sind unten aufgeführt. 2. Obergeschoss Grosse 3.5-Zimmer-Wohnung, BGF 93 m², CHF 490'000.- (Whg. 3)Grosse 3.5-Zimmer-Wohnung, BGF 93 m², CHF 490'000.- (Whg. 4)3. Obergeschoss Exklusive und grosszügige Attika 4.5-Zimmer-Wohnung, BGF 143 m², CHF 990'000.- (Whg. 5)

Kosten

Kaufpreis:
CHF 830'000

Angaben

Objektkategorie
Eigentum
Objektreferenz
61ce3f08-6bb7-49c2-b21b-1e30a7393551
Adresse
Obere Wegmattestrasse 2
PLZ/Ort
3555 Trubschachen
Region
Emmental
Grundstücksfläche
634 m²
Anzahl Zimmer
5.5
Etage
EG
Baujahr
2026

Kontakt

  • KIPFER & KIPFER AG
  • Kirchgasse 5, 3550, Langnau im Emmental
  • Nummer Anzeigen

Auch inseriert auf:

homegate.ch