Wohnobjekt

Neues Reiheneinfamilienhaus mit individuellem Raumkonzept

CHF 1'288'000

 | 

121 m²

 | 

5 Zimmer

Britschenmattstrasse 4, 2575 Täuffelen

Neues Reiheneinfamilienhaus mit individuellem Raumkonzept - Karte
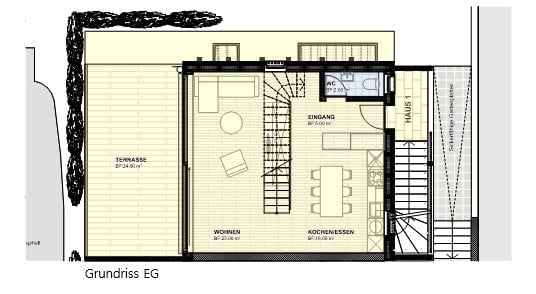
Hinweis:Auf Anfrage detaillierte Verkaufsdokumentation erhältlich.Hauptangaben:Verfügbarkeit: Sommer 2028Objekttyp: ReiheneinfamilienhausAnzahl Zimmer: 5 variabelAnzahl Badezimmer: 2 exkl. Gäste-WCWohnfläche: 121.5 m2Nutzfläche: 161.5 m2Grundstückfläche: 212 m2Baujahr: 2028Beschreibung:Im Rahmen eines hochwertigen Neubauprojekts entstehen drei stilvolle Reiheneinfamilienhäuser, die durch ihre flexibel gestaltbaren Grundrissvarianten überzeugen. Jede Einheit bietet die Möglichkeit, aus mehreren durchdachten Raumaufteilungen zu wählen ideal für Familien, Paare oder Einzelpersonen mit Platzbedarf.Die Grundrisse wurden mit besonderem Fokus auf Wohnqualität, Funktionalität und Gestaltungsfreiheit entwickelt. Ob grosszügiger Wohn- und Essbereich, zusätzliches Arbeitszimmer, offene Küche oder Rückzugsorte im Obergeschoss hier entsteht ein Zuhause, das perfekt zu Ihrem Lebensstil passt.An der ruhigen Britschenmattstrasse 4 profitieren zukünftige Bewohnerinnen und Bewohner von kurzen Wegen. Die Einkaufsmöglichkeiten befinden sich in kurzer Distanz darunter ein ALDI-Supermarkt an der Bernstrasse, der in wenigen Gehminuten erreichbar ist. Schulen und weitere wichtige Dienstleistungen liegen direkt im Dorf und sind bequem zu Fuss erreichbar.Dank der nahegelegenen Bushaltestellen ist Gals gut an den öffentlichen Verkehr angebunden. Der Autobahnanschluss Richtung Bern, Biel und Neuenburg ist über die Hauptachsen Neuenburgstrasse und Bernstrasse schnell zu erreichen.Highlights:Flexible Grundrissvarianten wählbarHolzbauweise für angenehmes, gesundes RaumklimaHelle, offene Wohnbereiche mit hoher WohnqualitätZwei grosse Nasszellen Separates Gäste WCElektrische StorenFussbodenheizungDreifach verglaste FensterNachhaltige Energiegewinnung dank eigener Photovoltaik-AnlageFernwärmeanschluss für effiziente, ökologische WärmeversorgungGrosser Keller und zusätzlicher HobbyraumSeparater WaschraumBalkon, Terrasse und Garten für zusätzlichen AussenraumZwei Autoabstellplätze mit Vorinstallation für E-LadestationRuhige, naturnahe LageZwischen Bieler- und NeuenburgerseeUnd noch vieles mehr...Nachhaltigkeit & Komfort:Der Baustoff Holz sorgt für ein angenehmes und gesundes Raumklima und steigert das Wohlbefinden der Bewohnerinnen und Bewohner. Die Kombination aus Fernwärme und Photovoltaik verbessert zusätzlich den ökologischen Fussabdruck und sorgt für tiefe Betriebskosten.Verwirklichen Sie Ihren Wohntraum: Reservieren Sie jetzt eines der drei Häuser und gestalten Sie Ihren Grundriss sowie den Innenausbau ganz nach Ihren Wünschen für ein Zuhause, das wirklich zu Ihnen passt.Lage:Die Reiheneinfamilienhäuser entstehen an ruhiger und familienfreundlicher Lage in Gals, eingebettet zwischen Bieler- und Neuenburgersee. Die Umgebung bietet naturnahe Erholung und abwechslungsreiche Landschaft. Schule, Gemeindeverwaltung und ÖV befinden sich in wenigen Gehminuten, während die Nähe zu den Hauptverkehrsachsen eine schnelle Verbindung nach Biel, Bern und Neuenburg ermöglicht. So vereint der Standort Ruhe, Natur und gute Erreichbarkeit.Kontakt:Wir freuen uns auf Ihre Kontaktaufnahme. Unsere Ansprechperson Silvia Brovedani steht Ihnenfür weitere Auskünfte, Unterlagen oder zur Vereinbarung eines Besprechungstermins zur Verfügung.

Kosten

Kaufpreis:
CHF 1'288'000

Angaben

Objektkategorie
Eigentum
Objektreferenz
6c88abe4-ca8a-4d37-966a-c9dc641e8be6
Adresse
Britschenmattstrasse 4
PLZ/Ort
2575 Täuffelen
Region
Seeland
Wohnfläche
121 m²
Anzahl Zimmer
5

Kontakt

  • Amy

Auch inseriert auf:

homegate.ch