Wohnobjekt

Leben im beliebten Vorort von Thun !

CHF 1'199'000

 | 

129 m²

 | 

3.5 Zimmer

Flühlistrasse 28, 3612 Steffisburg

Leben im beliebten Vorort von Thun ! - Karte
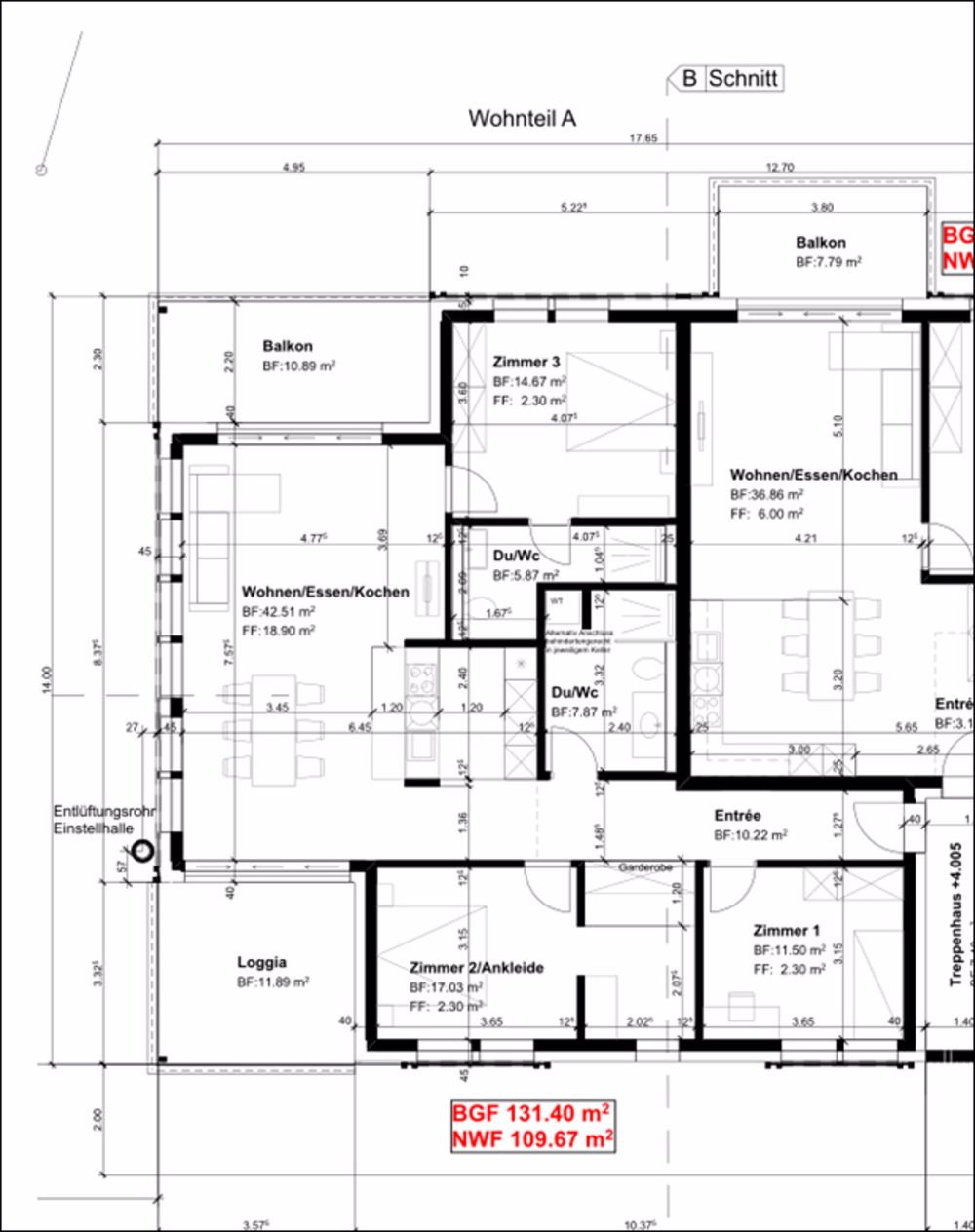
An der Flühlistrasse 28 in 3612 Steffisburg entsteht ein Mehrfamilienhaus mit zehn Eigentumswohnungen (2.5 bis 4.5 Zimmerwohnungen verteilt auf drei Etagen). Finden Sie Ihre passende Wohnung !
Im Dachgeschoss sind je eine 3.5 und 4.5 Zimmerwohnung geplant. Die beiden Dachgeschosswohnungen gehören zu den "Perlen" der Überbauung mit sehr viel Platz, sichtbarer Sparrenlage, hoher Dachkonstruktion und viel Aussicht !
Der Neubau befindet sich in der Nähe von Einkauf, Schule und Bushaltestelle, verfügt über einen Lift sowie über eine grosse Einstellhalle. Der Baustart erfolgt im Jahr 2025. Der Einzug ist somit spätestens ab 2027 möglich.
Haben wir Ihr Interesse geweckt? Gerne können Sie sich bei uns melden und wir senden Ihnen eine Verkaufsdokumentation mit weiterführenden Informationen zum Standort sowie zum Neubauprojekt. Auf Wunsch zeigen wir Ihnen das Baugrundstück sehr gerne auch vor Ort.
Wir würden uns freuen, Ihren Traum vom Eigenheim in Steffisburg zu erfüllen !

Kosten

Kaufpreis:
CHF 1'199'000

Angaben

Objektkategorie
Eigentum
Objektreferenz
4687ba38-863c-48d1-8fb7-79efdd593a5b
Adresse
Flühlistrasse 28
PLZ/Ort
3612 Steffisburg
Region
Thun
Wohnfläche
129 m²
Anzahl Zimmer
3.5
Baujahr
2025

Merkmale und Ausstattung

Balkon
Lift
Schöne Aussicht

Kontakt

Simon Klossner
  • Simon Klossner
  • Lares Domus GmbH
  • gibt Ihnen gerne Auskunft.
  • Nummer Anzeigen

Auch inseriert auf:

homegate.ch