Wohnobjekt

Appartement de 4,5 pièces dans une nouvelle construction à Saint-Imier

CHF 725'000

 | 

113 m²

 | 

4.5 Zimmer

Rue de la Serre 2, 2610 St-Imier

Appartement de 4,5 pièces dans une nouvelle construction à Saint-Imier - Karte
Le chantier a démarré en décembre 2025 et les appartements seront livrés dans le courant du 2ème trimestre 2027. Un projet immobilier unique au cœur de Saint-Imier
Découvrez 5 appartements neufs nichés dans un ancien bâtiment industriel rénové avec soin. Un mélange parfait entre patrimoine et modernité, combinant confort moderne, praticité et qualité de vie dans un cadre paisible. Parfait pour couple ou famille recherchant un logement spacieux et bien situé.
Points forts du projet
✅ Transformation d'un site industriel authentique avec finitions modernes
✅ Structure durable : nouveaux étages en bois, panneaux photovoltaïques, pompe à chaleur
✅ Espaces généreux et lumineux
✅ Ascenseur desservant tous les étages et avec accès direct dans l’attique
✅ Situation calme et dégagée, proche de toutes commodités
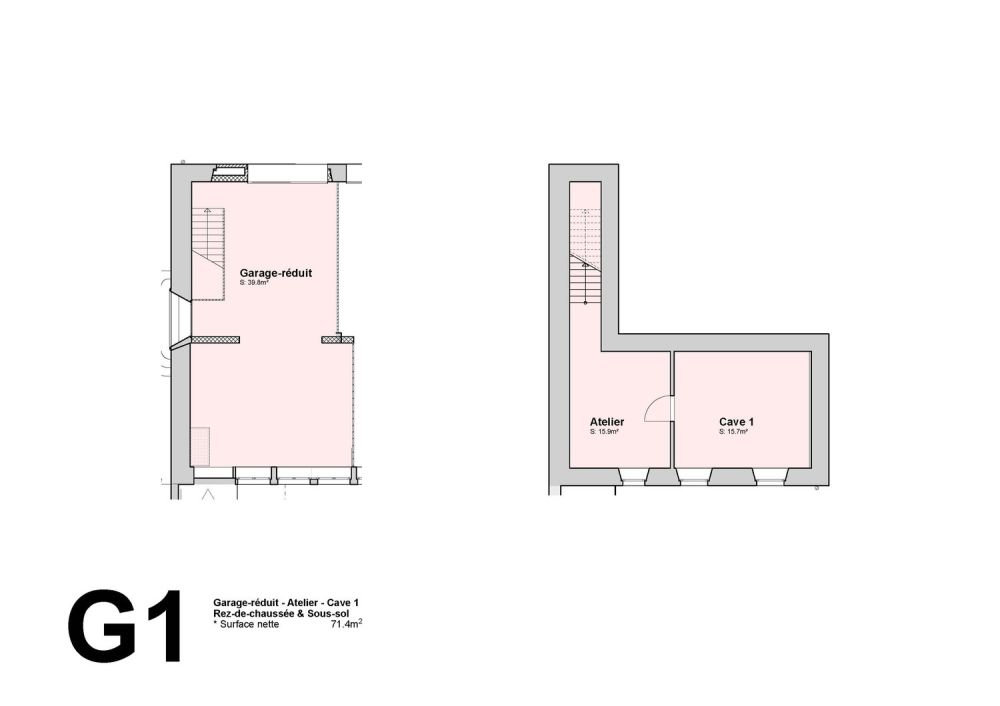
✅ Garages, réduits et locaux à vélo individuels inclus
Détails de l’appartement disponible
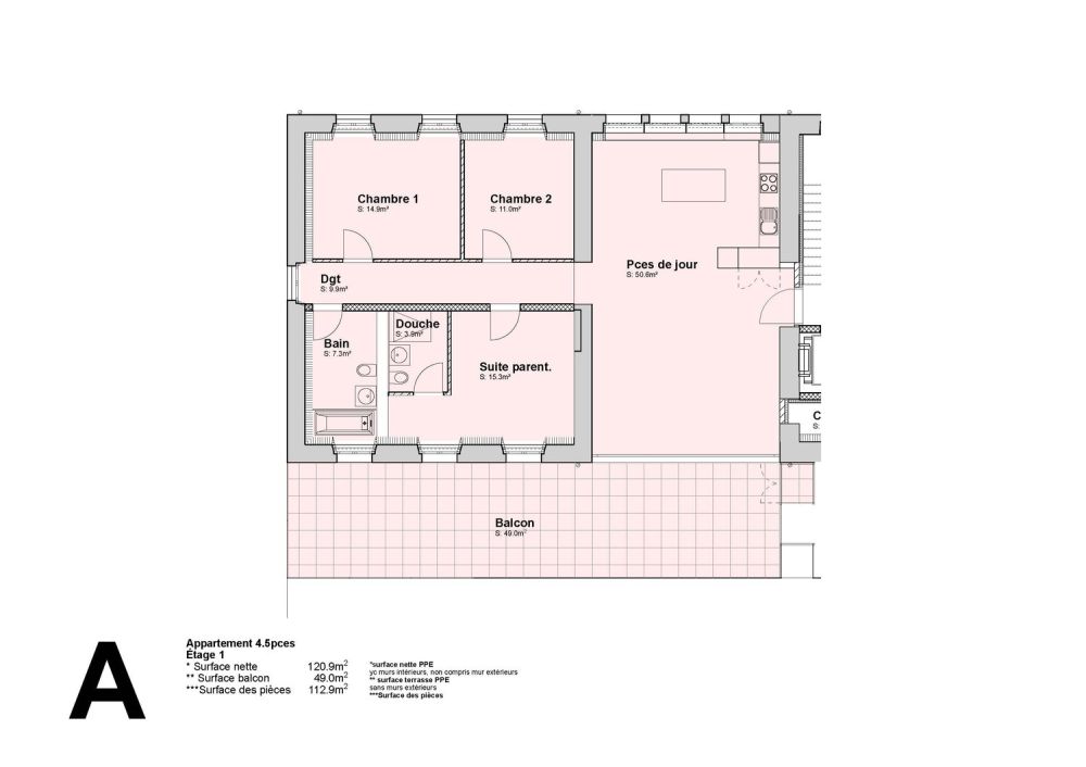
L’appartement « A », situé au premier étage à l’ouest, propose une surface intérieure de 120,9 m2. Il est composé de 3 chambres à coucher, dont la suite parentale de 15.3 m2 qui dispose de sa salle de bains privative de 3.9 m2, d’un séjour et cuisine ouvert et traversant de 50.6 m2 et d’une belle salle de bain de 7.3 m2. Un généreux balcon de 49 m2 permet de profiter de l’extérieur et des beaux jours. L’épaisseur des murs, les nombreuses ouvertures, sa belle hauteur de plus 2.9 mètres transmettent l’atmosphère de l’ancienne usine dans toute sa splendeur. Sa magnifique baie vitrée au sud et les fenêtres en bandes assurent un salon/salle à manger et cuisine bien plus lumineux que la norme.
Un garage individuel + réduit + atelier + cave d'une surface totale de 71.4 m2 est vendu en sus au prix de CHF 55'000.00.
Situation privilégiée : Emplacement idéal avec la gare de Saint-Imier à seulement 5 minutes à pied, un supermarché Coop à 3 minutes, et une école également à 3 minutes. L'arrêt de bus Erguël se trouve à 1 minute de marche, offrant une excellente connectivité. L'environnement est particulièrement calme et l'appartement jouit d'une très belle vue.

Verfügbarkeit

Bezugstermin:
30. Juni 2027

Kosten

Kaufpreis:
CHF 725'000

Angaben

Objektkategorie
Eigentum
Objektreferenz
bf73d278-e9f0-4df6-a54d-f61d539d572f
Adresse
Rue de la Serre 2
PLZ/Ort
2610 St-Imier
Region
La Chaux-de-Fonds
Wohnfläche
113 m²
Anzahl Zimmer
4.5
Etage
1
Baujahr
2025

Merkmale und Ausstattung

Balkon
Kabelfernsehen
Lift
Garage
Schöne Aussicht
Kinderfreundlich
Rollstuhlgängig

Kontakt

Bruno Mori
  • Bruno Mori
  • PrevImm Sàrl
  • gibt Ihnen gerne Auskunft.
  • Nummer Anzeigen

Auch inseriert auf:

homegate.ch