Wohnobjekt

Appartement 3,5 pièces dans nouvelle construction à Saint-Imier

CHF 460'000

 | 

77 m²

 | 

3.5 Zimmer

Rue de la Serre 2, 2610 St-Imier

Appartement 3,5 pièces dans nouvelle construction à Saint-Imier - Karte
Le chantier a démarré en décembre 2025 et les appartements seront livrés dans le courant du 2ème trimestre 2027. Un projet immobilier unique au cœur de Saint-Imier
Découvrez 5 appartements neufs nichés dans un ancien bâtiment industriel rénové avec soin. Un mélange parfait entre patrimoine et modernité, combinant confort moderne, praticité et qualité de vie dans un cadre paisible. Parfait pour une personne seule ou un couple recherchant un logement spacieux et bien situé.
Points forts du projet
✅ Transformation d'un site industriel authentique avec finitions modernes
✅ Structure durable : nouveaux étages en bois, panneaux photovoltaïques, pompe à chaleur
✅ Espaces généreux et lumineux
✅ Ascenseur desservant tous les étages et avec accès direct dans l’attique
✅ Situation calme et dégagée, proche de toutes commodités
✅ Garages, réduits, ateliers, caves et locaux à vélo individuels inclus
Détails de l’appartement disponible
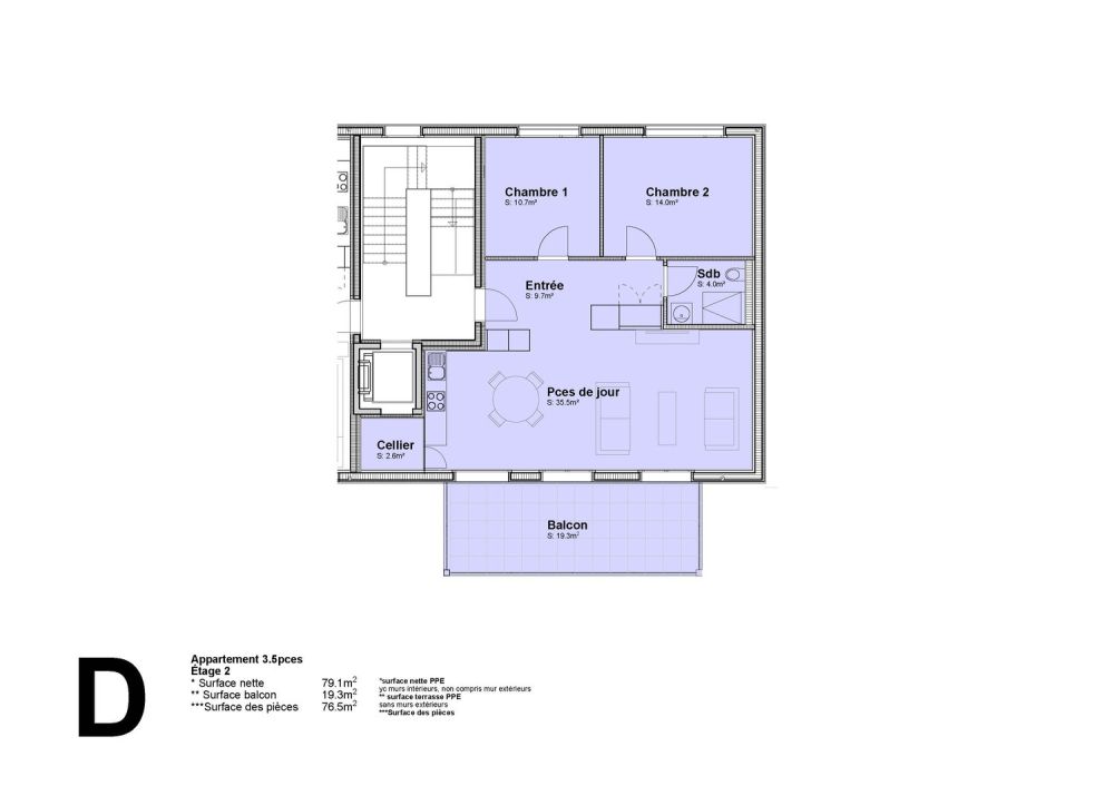
L’appartement « D », situé au deuxième étage à l’est, est une nouvelle construction en ossature bois. Il propose une surface intérieure de 79.1 m2. Il est composé de 2 chambres à coucher rectangulaires de 14 m2 et 10.7 m2, d’un séjour/cuisine ouvert de 35.5 m2, d'un cellier de 2.6 m2 et d’une salle de bain de 4 m2. Situé dans la surélévation, ce 3.5 pièces propose de belles ouvertures pour admirer la Combe-Grède et un espace en longueur pour la cuisine, salle à manger et séjour. Le balcon de 19.3 m2 prolonge les espaces grâce à sa générosité.
Un garage individuel + réduit d'une surface totale de 39.5 m2 est vendu en sus au prix de CHF 40'000.00.
Situation privilégiée : Emplacement idéal avec la gare de Saint-Imier à seulement 5 minutes à pied, un supermarché Coop à 3 minutes, et une école également à 3 minutes. L'arrêt de bus Erguël se trouve à 1 minute de marche, offrant une excellente connectivité. L'environnement est particulièrement calme et l'appartement jouit d'une très belle vue.

Verfügbarkeit

Bezugstermin:
30. Juni 2027

Kosten

Kaufpreis:
CHF 460'000

Angaben

Objektkategorie
Eigentum
Objektreferenz
b681c944-f7a5-458c-8ace-71301e7cf290
Adresse
Rue de la Serre 2
PLZ/Ort
2610 St-Imier
Region
La Chaux-de-Fonds
Wohnfläche
77 m²
Anzahl Zimmer
3.5
Etage
2
Baujahr
2025

Merkmale und Ausstattung

Balkon
Kabelfernsehen
Lift
Garage
Schöne Aussicht
Kinderfreundlich
Rollstuhlgängig

Kontakt

Bruno Mori
  • Bruno Mori
  • PrevImm Sàrl
  • gibt Ihnen gerne Auskunft.
  • Nummer Anzeigen

Auch inseriert auf:

homegate.ch