Wohnobjekt

exklusive Gartenwohnung im *CENTRO II* - die letzte verfügbare Einheit!

CHF 834'000

 | 

139 m²

 | 

4.5 Zimmer

Rüegsaustrasse 50, 3415 Rüegsauschachen

exklusive Gartenwohnung im *CENTRO II* - die letzte verfügbare Einheit! - Karte
An zentralster Lage im Herzen von Rüegsauschachen entsteht das moderne 7-Familienhaus *CENTRO II* ;- ein Wohnprojekt, das zeitgemässe Architektur, hochwertige Bauqualität und Technik vereint.
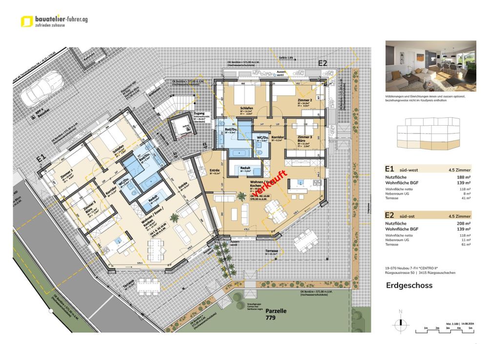
Aktuell ist nur noch eine attraktive 4.5-Zimmer-Gartenwohnung im Erdgeschoss verfügbar;- eine seltene Gelegenheit, sich exklusiven Wohnkomfort in bester Lage zu sichern.
Die Wohnung überzeugt durch grosszügige Raumverhältnisse, eine klare Grundrissgestaltung und eine sorgfältig abgestimmte Materialwahl, die Komfort, Funktionalität und Privatsphäre ideal miteinander verbindet.
Ihre Wohn-Highlights ...
Hochwertige Massivbauweise
Ca. 139 m² Wohnfläche (BGF)
Grosse, gedeckte Terrasse mit ca. 41 m² und viel Privatsphäre
Direkter Zugang zur liebevoll gestalteten Aussenanlage
Privater Nebenraum im Untergeschoss
Bequemer Zugang zur Einstellhalle über Lift und Treppenhaus
Exklusiver Innenausbau mit durchdachtem Materialkonzept
Hochwertige Schreinerküche mit Chromstahlabdeckung, Steamer, Induktionskochfeld, viel Stauraum und V-ZUG-Geräten
Master-Bedroom mit direktem Zugang zum Badezimmer
Separater Hauswirtschaftsraum mit Waschmaschine in der Wohnung
Photovoltaik-Flachdachanlage zur Eigenstromproduktion
Grosszügige Aussenflächen und gepflegte Umgebungsgestaltung
Grosszügiger Einstellhallenplatz optional ab CHF 47’000.– verfügbar.
Der moderne und klar strukturierte Grundriss lässt keine Wünsche offen;- ein Zuhause zum Ankommen, Entspannen und Geniessen.
Baufortschritt & Termine
Baubeginn: Herbst 2024
Bezug: ab Sommer 2026
Das Mehrfamilienhaus befindet sich bereits im Bau. Individuelle Anpassungen sind in einem gewissen Rahmen noch möglich. Gerne prüfen wir Ihre persönlichen Änderungswünsche und setzen diese – soweit technisch und terminlich umsetzbar – für Sie um, damit Ihr neues Zuhause bestmöglich Ihren Vorstellungen und Bedürfnissen entspricht.
Es wunderschöns Daheim a beschter Lag – diräkt im Zentrum
Möchtet Dir meh wüsse? Lütet üs ah – mir schteue Öich s Projekt gärn unverbindlech nächer vor. Mir fröie üs uf Öich.
bauatelier-fuhrer.ag

Kosten

Kaufpreis:
CHF 834'000

Angaben

Objektkategorie
Eigentum
Objektreferenz
81418a04-20ad-4836-a3d6-0aef1e9cc7a0
Adresse
Rüegsaustrasse 50
PLZ/Ort
3415 Rüegsauschachen
Region
Emmental
Wohnfläche
139 m²
Anzahl Zimmer
4.5
Etage
EG
Baujahr
2025

Merkmale und Ausstattung

Haustiere erlaubt
Balkon
Lift
Garage
Schöne Aussicht
Kinderfreundlich
Rollstuhlgängig

Kontakt

Michael Fuhrer
  • Michael Fuhrer
  • bauatelier - fuhrer. ag
  • gibt Ihnen gerne Auskunft.
  • Nummer Anzeigen

Auch inseriert auf:

homegate.ch