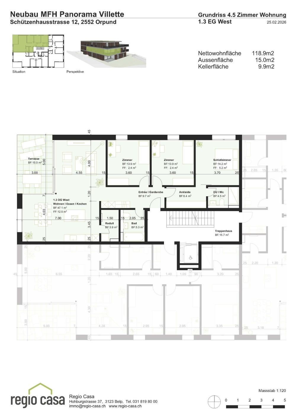
Wohnobjekt

OG1.3 - 4.5-Zimmer Neubau Wohnung im Obergeschoss

CHF 890'000

 | 

119 m²

 | 

4.5 Zimmer

Schützenhausstrasse 12, 2552 Orpund

OG1.3 - 4.5-Zimmer Neubau Wohnung im Obergeschoss - Karte
Am Villetteweg in Orpund entsteht ein hochwertiges Mehrfamilienhaus mit acht Eigentumswohnungen (3.5/4.5 Zimmer) an erhöhter, ruhiger Lage. Grosszügige Grundrisse, viel Tageslicht und Balkone/Terrassen als echte Wohnraumerweiterung schaffen ein Zuhause, das im Alltag überzeugt – mit Privatsphäre und einem klaren Fokus auf Wohnqualität.
Die Wohnungen sind so geplant, dass sie sich gut möblieren lassen und verschiedene Lebenssituationen abdecken: Raum für Homeoffice, Gäste oder Hobby, kombiniert mit einer offenen Küche als Mittelpunkt des Wohn- und Essbereichs. Praktisch und sehr geschätzt: Reduit/Stauraum, zwei Nasszellen sowie Waschmaschine und Tumbler in der Wohnung.
Qualität zeigt sich auch in der Substanz und im Komfort:
Barrierefreier Zugang und Lift bis vor die Wohnungstüre
Elektrische Storen
Glasfaser bis in die Wohnung / Multimediaverteiler
Langlebige Gebäudehülle (u.a. hinterlüftete Fassade) und hochwertige Fenster in Holz-Metall, 3-fach Glas
Wärmepumpe mit Fussbodenheizung
Photovoltaik; gepl. Zusammenschluss zum Eigenverbrauch (ZEV) E-Mobilität vorbereitet (inkl. Lastmanagement)
Einstellhalle mit 14 Parkplätzen (ab CHF 38'000.-)
Erschliessung: Hauseingang via Villetteweg; Zufahrt zur Einstellhalle über die Schützenhausstrasse.
Perfekte Lage: In nur 4 Gehminuten erreichen Sie die Bushaltestelle Byfang, während die Primarschule Orpund nur 5 Minuten entfernt liegt. Ein Denner Satellit Supermarkt befindet sich 6 Gehminuten entfernt, und die Drogerie Kropf ist in 9 Minuten erreichbar. Die Nähe zur Aare und die ruhige Umgebung bieten ideale Bedingungen für Familien und Erholungssuchende.
Diese Neubau-Wohnung bietet die perfekte Kombination aus modernem Wohnkomfort, praktischer Lage und natürlicher Ruhe in einer der schönsten Regionen der Schweiz.
Baustart: Sommer 2026 | Bezug: Spätherbst 2027

Verfügbarkeit

Verfügbar ab:
20. Februar 2026

Kosten

Kaufpreis:
CHF 890'000

Angaben

Objektkategorie
Kauf
Objektreferenz
5b812221-bbcf-4623-88cc-a3030537bcd4
Adresse
Schützenhausstrasse 12
PLZ/Ort
2552 Orpund
Region
Biel/Bienne
Wohnfläche
119 m²
Anzahl Zimmer
4.5
Etage
1
Baujahr
2026

Merkmale und Ausstattung

Balkon
Kabelfernsehen
Lift
Garage
Schöne Aussicht
Kinderfreundlich
Rollstuhlgängig

Kontakt

Bernhard Gasser
  • Bernhard Gasser
  • Regio Casa GmbH
  • gibt Ihnen gerne Auskunft.
  • Nummer Anzeigen

Auch inseriert auf:

homegate.ch