Wohnobjekt

Einzigartiges Wohnen an der Aare – geniessen auf grünem Fuss

CHF 1'400'000

 | 

135 m²

 | 

4.5 Zimmer

Burgerallee 21, 2560 Nidau

Einzigartiges Wohnen an der Aare – geniessen auf grünem Fuss - Karte
Einzigartig in jeder Hinsicht
Im beliebten Burgeralleequartier in Nidau entsteht ein einzigartiger Ort, der Ruhe, Natur und moderne Architektur vereint. Das Projekt steht für bewusstes Wohnen, klar gestaltet, durchdacht geplant und nachhaltig gebaut. Die Nähe zur Aare, die sonnige Lage und das harmonische Zusammenspiel von Architektur und Wohnqualität schaffen ein Zuhause, das mehr als Wohnraum ist. Hier entsteht Lebensqualität auf grünem Fuss.
Einzigartig in der Architektur
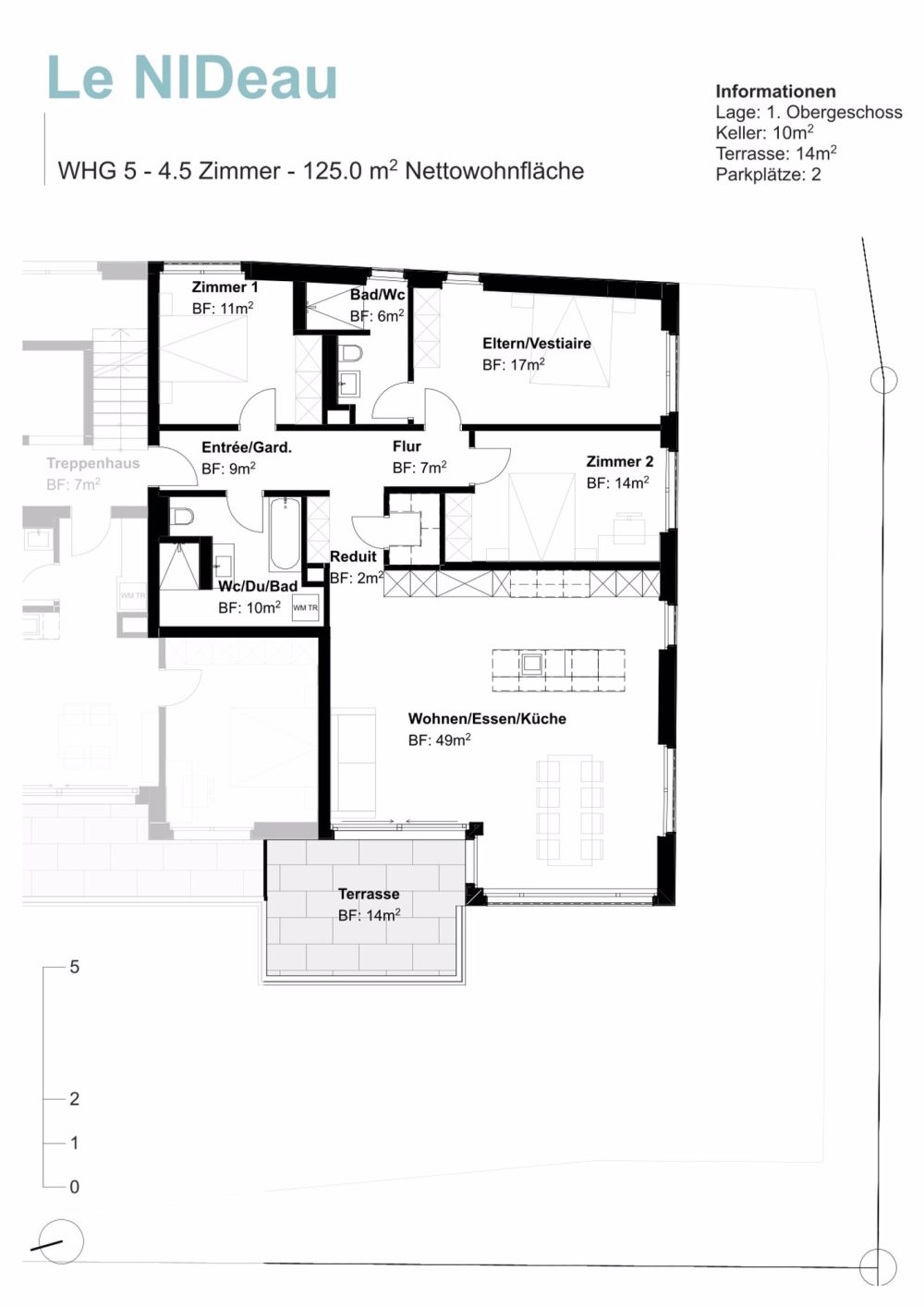
Der Grundriss ist klar durchdacht, die Räume sind optimal genutzt und die Materialien hochwertig. Jeder Bereich ist funktional geplant und harmonisch gestaltet. Die Wohnung überzeugt mit viel Licht, einem offenen Wohn- Essbereich, einem grosszügigen Elternschlafzimmer mit eigenem Bad und mit zwei weiteren gut geschnittenen Zimmern. Ein Gästebad, praktische Einbauschränke sowie ein Reduit unterstreichen den durchdachten Ausbau.
Einzigartig nachhaltig
Das Gebäude übertrifft den Minergie-A-Standard und nutzt Erdsonden mit Energiepfählen sowie eine Photovoltaikanlage mit Batteriespeicher. Im Untergeschoss stehen bei Bedarf zwei Einstellhallenplätze mit Ladestationen für E-Autos zur Verfügung. Nachhaltigkeit wird hier sichtbar und spürbar.
Einzigartige Gelegenheit
Diese Wohnung vereint Lage, Architektur und Nachhaltigkeit auf besondere Weise. Entdecken Sie ein Zuhause, das Anspruch und Weitsicht verbindet. Vereinbaren Sie mit uns einen Besichtigungstermin und erleben Sie das einzigartige Projekt vor Ort.

Kosten

Kaufpreis:
CHF 1'400'000

Angaben

Objektkategorie
Eigentum
Objektreferenz
73e9e823-0d82-4fbf-804e-f22345382626
Adresse
Burgerallee 21
PLZ/Ort
2560 Nidau
Region
Biel/Bienne
Wohnfläche
135 m²
Anzahl Zimmer
4.5
Etage
1
Baujahr
2025

Merkmale und Ausstattung

Minergie

Kontakt

  • BK Immobilien AG
  • Keltenstrasse 5, 2563, Ipsach
  • Nummer Anzeigen

Auch inseriert auf:

immoscout24.ch