Wohnobjekt

NEUBAUPROJEKT Moderne 3.5-Zimmer-Wohnung in ruhiger Lage von Muri bei Bern

CHF 2'080'000

 | 

98 m²

 | 

3.5 Zimmer

Ammannstrasse 15, 3074 Muri b. Bern

NEUBAUPROJEKT Moderne 3.5-Zimmer-Wohnung in ruhiger Lage von Muri bei Bern - Karte
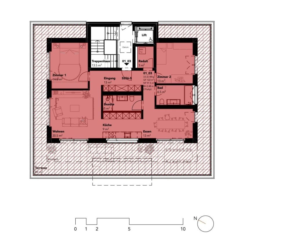
Entdecken Sie diese grosszügige 3.5-Zimmer-Wohnung im Attikageschoss des Neubauprojektes mit total drei Wohneinheiten in Muri bei Bern. Die Wohnung besticht durch ihre grosszügige und durchdachte Aufteilung auf 97.7 m² Wohnfläche und bietet höchsten Wohnkomfort in einer ruhigen Wohnumgebung.
Die Wohnung überzeugt mit:
Grosszügige Raumaufteilung: 3.5 Zimmer bieten vielfältige Nutzungsmöglichkeiten
Zwei moderne Badezimmer: Komfortabel ausgestattet für den täglichen Bedarf
Privater Aussenraum: Über 89m2 Aussenraum mit bereichsweise gedeckter Terrasse
Nebenräume: Reduit und Einbauschränke in der Wohnung. Zwei separate Kellerräume im Untergeschoss
Barrierefreier Zugang: Rollstuhlgängig und mit Lift ausgestattet
Parkierung: Zur Wohnung steht 1 Einstellhallenplatz à 45'000.00 zur Verfügung.
Haustechnik: Erdsonde Wärmepumpe Heizung mit Bodenheizung. Eigenes ZEV mit Photovoltaikanlage auf Dachfläche

Kosten

Kaufpreis:
CHF 2'080'000

Angaben

Objektkategorie
Eigentum
Objektreferenz
6015017c-863e-46cd-9c59-af7ba00ca752
Adresse
Ammannstrasse 15
PLZ/Ort
3074 Muri b. Bern
Region
Bern-Mittelland
Wohnfläche
98 m²
Anzahl Zimmer
3.5
Etage
2
Baujahr
2026

Merkmale und Ausstattung

Balkon
Lift
Parkplatz
Rollstuhlgängig

Kontakt

Stefan Zuercher
  • Stefan Zuercher
  • Atmoshaus AG Niederlassung Schönbühl
  • gibt Ihnen gerne Auskunft.
  • Nummer Anzeigen

Auch inseriert auf:

homegate.ch