Wohnobjekt

Exklusive 4.5-Zimmer-Dachwohnung in Lüscherz am Bielersee

CHF 970'000

 | 

121 m²

 | 

4.5 Zimmer

Baumgarten, 2576 Lüscherz

Exklusive 4.5-Zimmer-Dachwohnung in Lüscherz am Bielersee - Karte
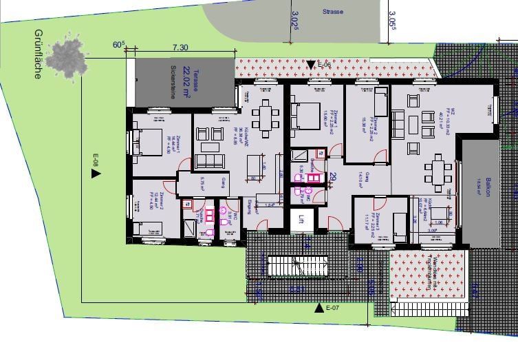
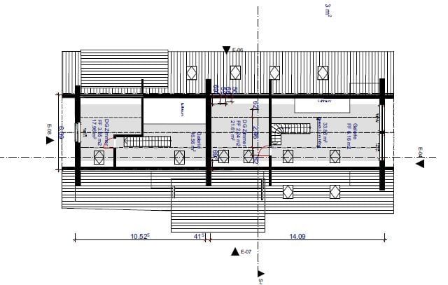
Diese aussergewöhnliche 4.5-Zimmer-Dachwohnung entsteht in einem Neubau von 2026 mit 6 Wohneinheiten im Stockwerkeigentum in der idyllischen Gemeinde Lüscherz. Der Innenausbau resp. die Materialien können nach Ihren Wünschen ausgesucht werden. Jede Wohnung wird individuell ausgebaut.
Traumhafte Lage am Bielersee: Die Wohnung befindet sich in unmittelbarer Nähe zum See an ruhiger, sonniger Lage. Täglich erreichen Sie den Denner-Supermarkt und die Bushaltestelle "Lüscherz Dorf" in nur 2 Gehminuten.
Diese einzigartige Dachwohnung (2-geschossig) bietet modernen Wohnkomfort und besticht durch die nachhaltige Bauweise in Holz, Energieoptimierung und die naturnahe Gestaltung der Umgebung, die Lebensraum für eine vielfältige Biodiversität schafft.
Besonderheiten: Nachhaltige Bauweise in Holz - Einstellhalle - Lift - grosser Balkon –
grosszügige Fensterflächen
Luft-Wasser Wärmepumpe – Photovoltaik-Anlage - hindernisfrei
Autoeinstellhallenplatz Fr. 38'000.00.

Kosten

Kaufpreis:
CHF 970'000

Angaben

Objektkategorie
Eigentum
Objektreferenz
f2ce1101-9266-4b6f-b52c-02961920c1a7
Adresse
Baumgarten
PLZ/Ort
2576 Lüscherz
Region
Seeland
Wohnfläche
121 m²
Anzahl Zimmer
4.5
Etage
2
Baujahr
2026

Merkmale und Ausstattung

Balkon
Kabelfernsehen
Lift
Garage
Schöne Aussicht
Kinderfreundlich
Rollstuhlgängig

Kontakt

Sabine Perner
  • Sabine Perner
  • Sabine Perner Immobilien GmbH
  • gibt Ihnen gerne Auskunft.
  • Nummer Anzeigen

Auch inseriert auf:

homegate.ch