Wohnobjekt

Moderne, energieeffiziente 6.5-Zimmer-Neubauhäuser auf sonniger Höhe, Erst- und Zweitwohnsitz

CHF 1'254'000

 | 

153 m²

 | 

6.5 Zimmer

Dorfstrasse 3, 3704 Krattigen

Moderne, energieeffiziente 6.5-Zimmer-Neubauhäuser auf sonniger Höhe, Erst- und Zweitwohnsitz - Karte
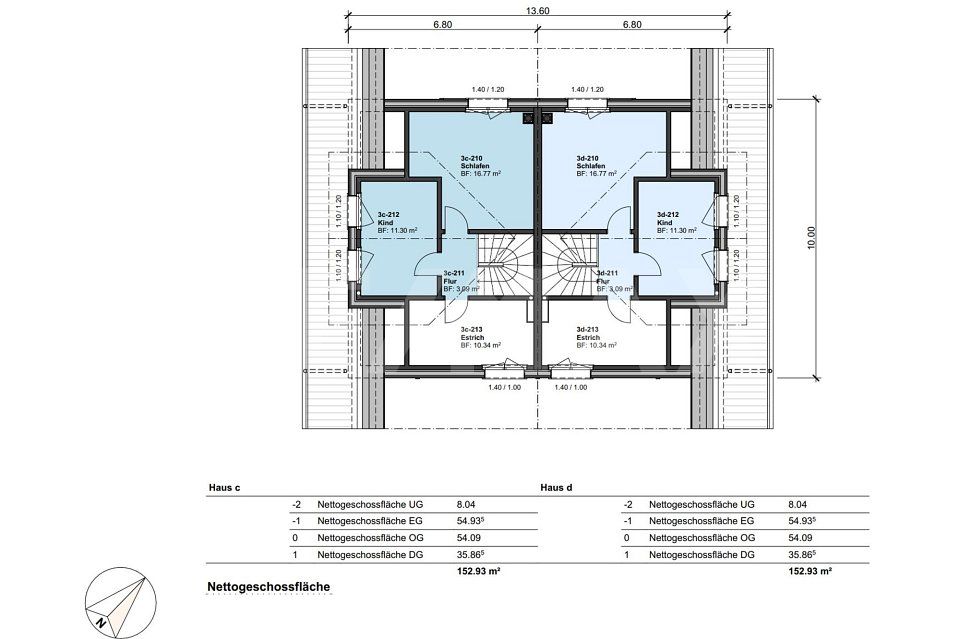
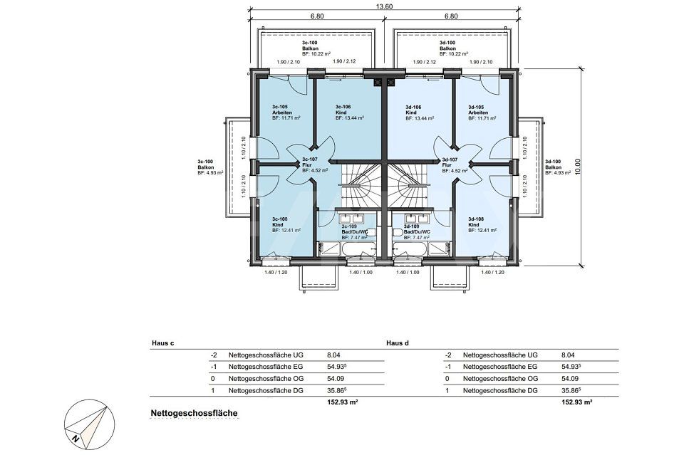
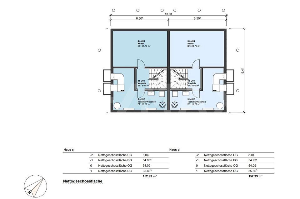
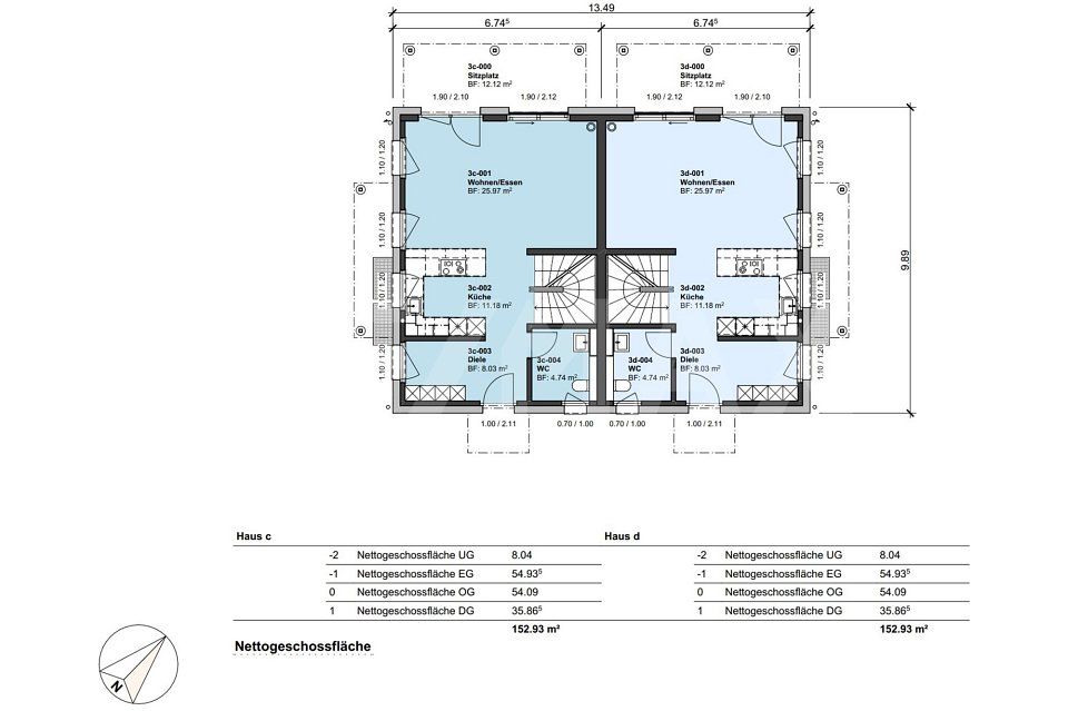
"ERFÜLLEN SIE SICH DEN TRAUM VOM EIGENHEIM"Krattigen ist ein malerisches Dorf über dem Thunersee. Es bietet eine ruhige und naturnahe Umgebung, die ideal für Familien, Paare und Ruhesuchende ist. Die Nähe zum Thunersee und die beeindruckende Berglandschaft sorgen für eine idyllische Kulisse mit zahlreichen Freizeitmöglichkeiten im Sommer wie auch im Winter (Wandern, Radfahren, Biken, Baden, Segeln, Wasserski, Skifahren, Schlitteln usw.).Gebaut werden drei Doppeleinfamilienhäuser und zwei Mehrfamilienhäuser nach neuesten baulichen und energietechnischen Standards. Dabei wird grösster Wert auf Nachhaltigkeit gelegt. So wird unter anderem die benötigte Energie für alle Häuser vollständig, mittels erneuerbarer Energie (Photovoltaikanlage), selber produziert. Zum Verkauf stehen 6 Doppelhaushälften, jeweils mit 2 Einstellhallenplätzen, Unterkellerung, 6-Zimmer, zwei Balkonen und einem schönen Aussenbereich mit Sitzplatz. In den zwei Mehrfamilienhäuser sind 3- und 4 Zimmer-Wohnungen zur Vermietung geplant.Diese durchdacht konzipierten 6-Zimmer-Doppeleinfamilienhäuser überzeugen mit rund 154 m² Nettowohnfläche, zwei Balkonen, einer hochwertigen Gebäudehülle und ausgeklügelter Haustechnik. An sonniger Lage mit viel Grün geniessen Sie modernen Wohnkomfort in naturnaher Umgebung - ideal für Familien, Paare oder Homeoffice.>Baustart 2025>Gebäudehülle >schadstoffarm, hoch wärme- und schallgedämmt>Technik >modernste Haustechnik mit integrierter Komfortlüftung>spannende Grundrisse mit grosszügigen Aussenbereichen>auch Zweitwohnsitz möglich (bei drei Doppel-EFH)>Kaufpreis ab CHF 1'254'000Verkaufsstand:-Haus CL = provisorisch reserviert-Haus CR = reserviert-Haus DL = reserviert-Haus DR = frei-Haus EL = frei-Haus ER = frei INTERESSE GEWECKT?Dann sichern Sie sich jetzt weitere Informationen. Wir freuen uns auf Ihre Kontaktaufnahme!Visualisierungen von:www.dimitrov-visuals.comBesuchen Sie die Baustellenkamera unter: feed.yellow.camera/SHHQP2T0SBaustellenkamera

Kosten

Kaufpreis:
CHF 1'254'000

Angaben

Objektkategorie
Eigentum
Objektreferenz
9f92e786-3b69-491c-92fd-951eb88fabab
Adresse
Dorfstrasse 3
PLZ/Ort
3704 Krattigen
Region
Frutigen-Niedersimmental
Wohnfläche
153 m²
Anzahl Zimmer
6.5
Baujahr
2025

Merkmale und Ausstattung

Balkon
Parkplatz

Kontakt

Lörtscher Roger
  • Lörtscher Roger
  • RE/MAX Immobilien in Spiez
  • gibt Ihnen gerne Auskunft.
  • Nummer Anzeigen

Auch inseriert auf:

homegate.ch