Wohnobjekt

KRATTIGEN PLUS - Neubau 6.5-Zimmer Doppel-Einfamilienhäuser mit 24 Monaten Einstiegsvorteil

CHF 1'254'000

 | 

153 m²

 | 

6.5 Zimmer

Dorfstrasse 3, 3704 Krattigen

KRATTIGEN PLUS - Neubau 6.5-Zimmer Doppel-Einfamilienhäuser mit 24 Monaten Einstiegsvorteil - Karte
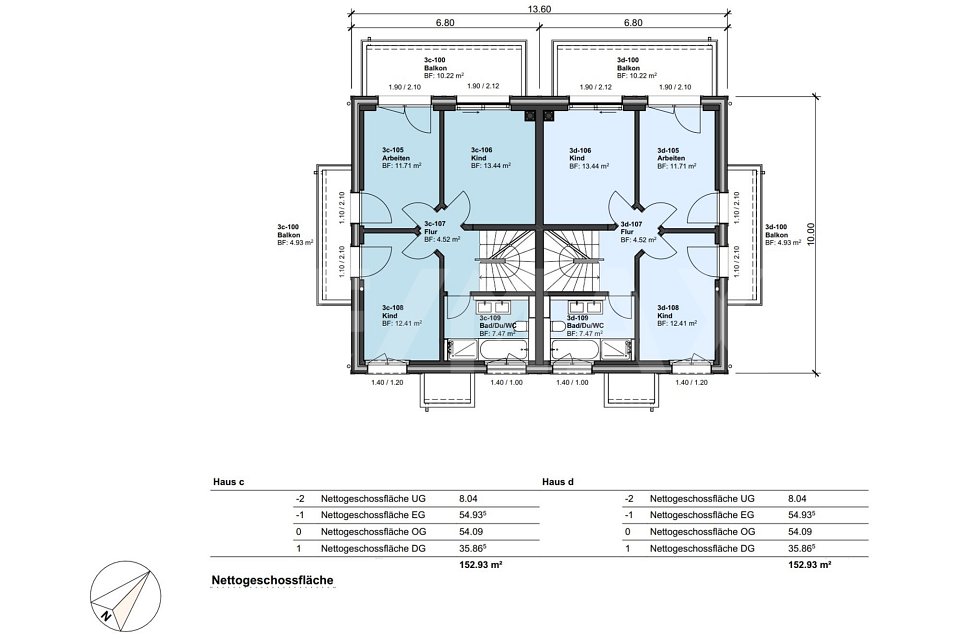
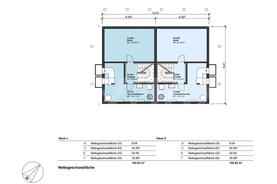
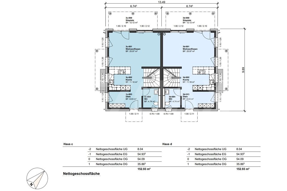
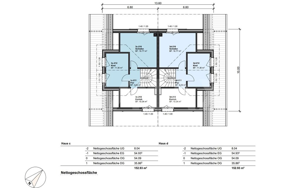
KRATTIGEN PLUS - 6.5-Zimmer Neubau Doppel-EFH für Familien, 24 Monate zinsfrei wohnenFür den Einstieg ins Eigenheim ergibt sich hier eine besonders interessante Möglichkeit: Bei ausgewählten Einheiten übernimmt die Bauherrschaft während 24 Monaten Ihre Hypothekarzinsen sowie, falls erforderlich, die Amortisation der zweiten Hypothek. Ihre monatliche Belastung reduziert sich damit faktisch auf die sehr tiefen Nebenkosten eines Minergie-A Hauses.Bei Interesse zeigen wir Ihnen die Möglichkeiten gerne im persönlichen Gespräch auf und freuen uns auf Ihre Kontaktaufnahme.Zum Projekt:Grosszügige freistehende 6.5-Zimmer-Doppel-Einfamilienhäuser in Krattigen, ideal für Familien aus der Region, die mehr Platz, Privatsphäre und zeitgemässen Wohnkomfort suchen. Moderne, energieeffiziente Haustechnik sorgt dabei für nachhaltig tiefe Betriebskosten.Die Wohnung wird zu eng, der Stauraum knapp und der Wunsch nach mehr Raum immer grösser. Genau hier setzt dieses Wohnkonzept an. In Krattigen entstehen moderne freistehende Doppel-Einfamilienhäuser mit grosszügigen Wohnflächen und durchdachten Grundrissen, ideal für den Alltag mit Familie. Der Fokus liegt bewusst auf hochwertigem Innenraum statt aufwendigen Gartenflächen und richtet sich damit an Käufer, die ein pflegeleichtes Zuhause mit klarer Wohnqualität schätzen.Die Überbauung umfasst drei Doppeleinfamilienhäuser sowie zwei Mehrfamilienhäuser und wird nach aktuellen baulichen und energietechnischen Standards realisiert. Dabei wird grösster Wert auf Nachhaltigkeit gelegt. So wird unter anderem die benötigte Energie für alle Häuser vollständig, mittels erneuerbarer Energie (Photovoltaikanlage), selber produziert.Zum Verkauf stehen sechs Doppelhaushälften mit je zwei Einstellhallenplätzen, vollständiger Unterkellerung, 6½ Zimmern, zwei Balkonen sowie einem attraktiven Aussenbereich mit Sitzplatz. Mit rund 153 m² Nettowohnfläche überzeugen die Häuser durch durchdachte Grundrisse, viel Tageslicht und eine hochwertige Gebäudehülle. Gerade im Vergleich zu älteren Einfamilienhäusern zeigt sich der Vorteil klar. Keine unvorhersehbaren Renovationen, keine energetischen Altlasten, sondern ein Zuhause, das von Anfang an funktioniert.Krattigen ist ein malerisches Dorf oberhalb des Thunersees und bietet eine ruhige, naturnahe Umgebung. Die Gemeinde liegt auf rund 712 m ü. M. auf einer sonnigen Aussichtsterrasse und grenzt an Spiez, Aeschi und Leissigen. Mit rund 1'130 Einwohnern überzeugt Krattigen durch seine Lage zwischen See und Bergen sowie eine hohe Lebensqualität.Die Umgebung bietet vielfältige Freizeitmöglichkeiten das ganze Jahr über, von Wandern und Biken bis hin zu Wassersport und Wintersport. Gleichzeitig ist Krattigen ein idealer Ausgangspunkt für Ausflüge im gesamten Berner Oberland.Im Dorf befinden sich mehrere Postautohaltestellen, ein Volg, Restaurants sowie weitere Angebote für den täglichen Bedarf. Eine Bushaltestelle ist in nur 2 Gehminuten erreichbar. Kindergarten und Primarschule liegen in Gehdistanz, die Oberstufe befindet sich im nahegelegenen Aeschi. Der Bahnhof Spiez mit optimalen Anschlüssen ist in weniger als 15 Minuten erreichbar. Die Autobahnanschlüsse Richtung Thun, Bern und Interlaken sind ebenfalls schnell erreichbar.Die sonnige Lage und das naturnahe Wohnumfeld runden dieses attraktive Gesamtpaket stimmig ab.>Baustart 2025>Gebäudehülle >schadstoffarm, hoch wärme- und schallgedämmt>Technik >modernste Haustechnik mit integrierter Komfortlüftung>grosszügige, spannende Grundrisse >auch Zweitwohnsitz möglich (bei drei Doppel-EFH)>Kaufpreis ab CHF 1'254'000VERKAUFSSTAND:3 von 6 Einheiten = reserviert INTERESSE GEWECKT?Dann sichern Sie sich jetzt weitere

Kosten

Kaufpreis:
CHF 1'254'000

Angaben

Objektkategorie
Eigentum
Objektreferenz
19ca8a25-a4fd-4edb-86b2-6a38691e93a6
Adresse
Dorfstrasse 3
PLZ/Ort
3704 Krattigen
Region
Frutigen-Niedersimmental
Wohnfläche
153 m²
Anzahl Zimmer
6.5
Baujahr
2026

Merkmale und Ausstattung

Balkon
Parkplatz

Kontakt

Lörtscher Roger
  • Lörtscher Roger
  • RE/MAX Immobilien in Spiez
  • gibt Ihnen gerne Auskunft.
  • Nummer Anzeigen

Auch inseriert auf:

homegate.ch