Wohnobjekt

Top-Qualität; - 4.5 Zimmer Gartenwohnung in Huttwil ...

CHF 787'000

 | 

145 m²

 | 

4.5 Zimmer

Tscharandistrasse 16, 4950 Huttwil

Top-Qualität; - 4.5 Zimmer Gartenwohnung  in Huttwil ... - Karte
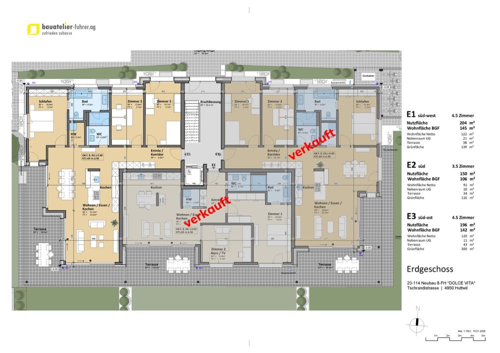
An der Tscharandistrasse in Huttwil verkaufen wir unsere neue, grosszügige Musterwohnung im neuen 8-Familienhaus *DOLCE VITA* ...
Die 4.5-Zimmer Erdgeschosswohnung wurde als Musterwohnung ausgebaut und bietet Ihnen viele Highlights ...
Top-Bauqualität in Massivbauweise
145m2 Wohnfläche BGF plus 38m2 gedeckte Terrasse
139m2 private Aussenflächen
Zusätzlicher Nebenraum im Untergeschoss
elegantes Eichen-Parkett in der gesamten Wohnung
hochwertige, exklusive Schreiner-Küche in höchster Qualität - erfüllt alle Wünsche
modernes Elektrokonzept inkl. Wiser Smart-Home
Master-Bedroom mit direktem Zugang zur Badelandschaft
Hauswirtschaftsraum mit Waschmaschine und Tumbler in der Wohnung
Photovoltaik-Anlage neuester Generation
Doppel- oder Einzel Parkplätze in der Einstellhalle verfügbar
grosszügige Aussenflächen und schöne Umgebungsgestaltung
und vieles mehr ...
Der clevere, moderne Grundriss lässt keine Wünsche offen - überzeugen Sie sich selbst!
Unsere exklusive Musterwohnung ist nach Vereinbarung verfügbar.
Grosszügige, praktische ESH-PPs ab CHF 36'000.00 erhältlich.
Es wunderschöns Daheim a schönschter-Lag - möchtet Dir meh wüsse? - lütet üs ah; - mir schteue Öich z Projekt gärn unverbindlech nächer vor ...
Mir fröie üs uf Öich. bauatelier-fuhrer.ag

Kosten

Kaufpreis:
CHF 787'000

Angaben

Objektkategorie
Eigentum
Objektreferenz
234b482d-1461-48fd-aa53-d23c2b1d9322
Adresse
Tscharandistrasse 16
PLZ/Ort
4950 Huttwil
Region
Oberaargau
Wohnfläche
145 m²
Anzahl Zimmer
4.5
Etage
EG
Baujahr
2025

Merkmale und Ausstattung

Haustiere erlaubt
Balkon
Lift
Garage
Rollstuhlgängig

Kontakt

Michael Fuhrer
  • Michael Fuhrer
  • bauatelier - fuhrer. ag
  • gibt Ihnen gerne Auskunft.
  • Nummer Anzeigen

Auch inseriert auf:

homegate.ch