Wohnobjekt

Neubau Reiheneinfamilienhaus priv. Garten (Bezug ab 2026)

CHF 842'000

 | 

153 m²

 | 

5.5 Zimmer

Allmenhagstrasse, 2577 Finsterhennen

Neubau Reiheneinfamilienhaus priv. Garten (Bezug ab 2026) - Karte
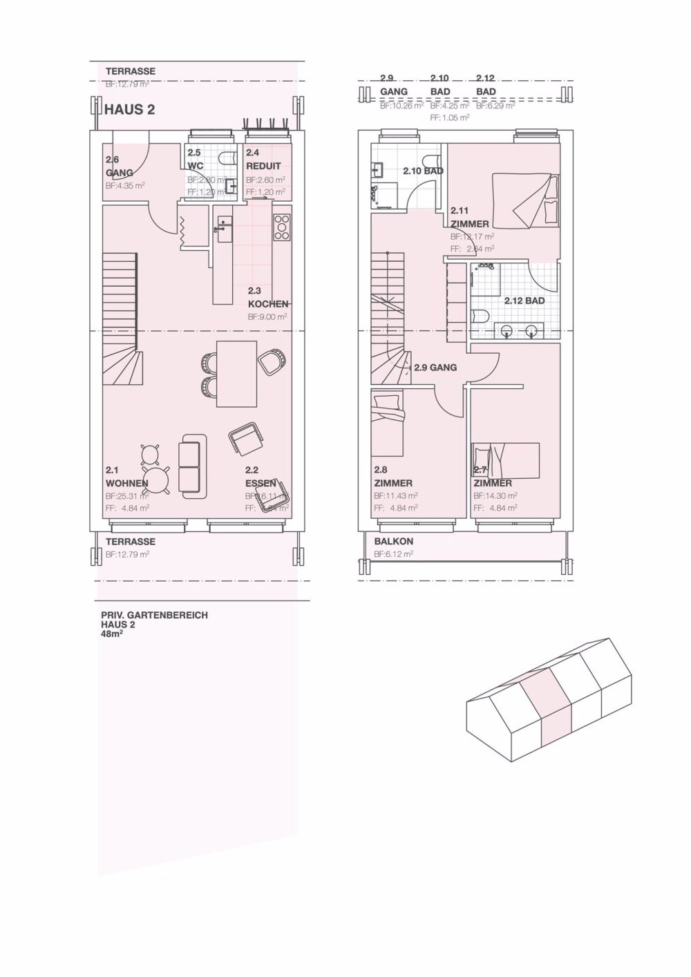
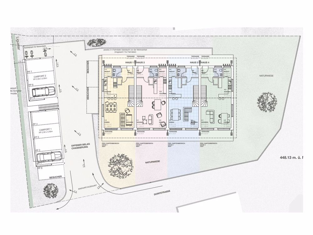
Das Reiheneinfamilienhaus besteht aus 4-Wohneinheiten. Das Gebäude befindet sich momentan in der Projektfassung und wird 2026 bezugsbereit sein. Beim Kauf einer Eigentumswohnung vor Baubeginn haben Sie den wesentlichen Vorteil, dass Sie Ihre Wünsche und Anregungen bezüglich Bodenbeläge, Platten und Küchen in aller Ruhe studieren und entsprechend dem vorhandenen Budget verwirklichen können.

Kosten

Kaufpreis:
CHF 842'000

Angaben

Objektkategorie
Eigentum
Objektreferenz
02890594-0688-4956-a029-7782b1346161
Adresse
Allmenhagstrasse
PLZ/Ort
2577 Finsterhennen
Region
Seeland
Wohnfläche
153 m²
Anzahl Zimmer
5.5
Baujahr
2025

Merkmale und Ausstattung

Balkon
Kabelfernsehen
Garage
Schöne Aussicht
Kinderfreundlich

Kontakt

  • Hermann Meyer AG
  • Hinterdorf 18, 2577, Siselen BE
  • Nummer Anzeigen

Auch inseriert auf:

homegate.ch