Wohnobjekt

Grosszüge 4.5-Zimmerwohnungen in modernem Neubau

CHF 615'000

 | 

106 m²

 | 

4.5 Zimmer

Langenthalstrasse, 3368 Bleienbach

Grosszüge 4.5-Zimmerwohnungen in modernem Neubau - Karte
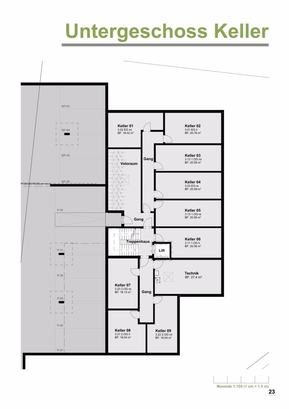
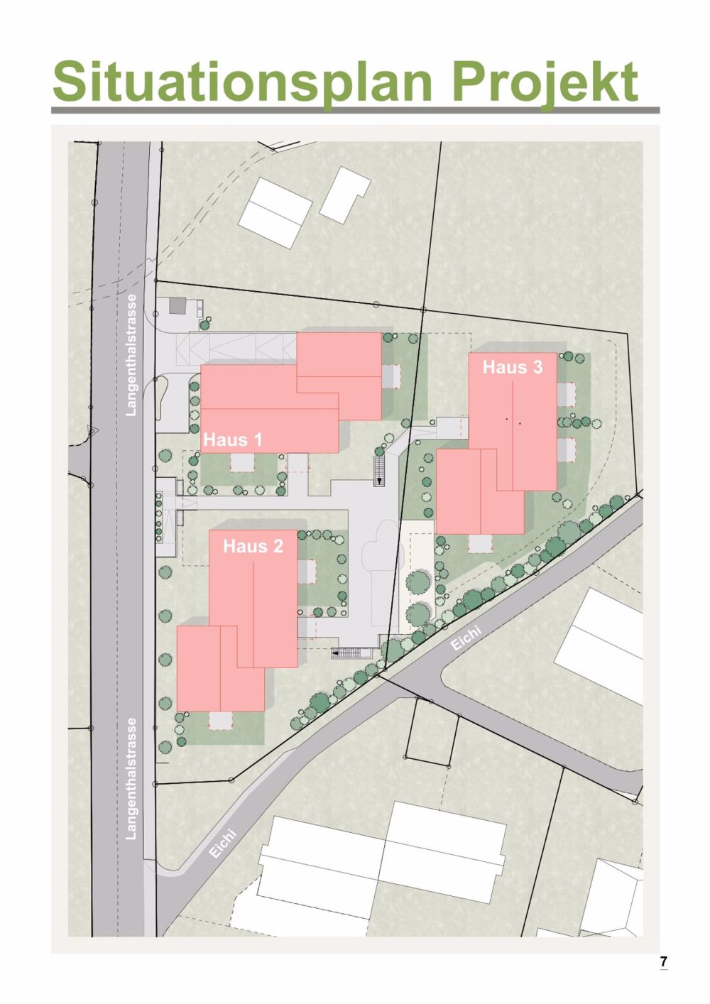
Folgende 4.5-Zimmer-Eigentumswohnungen sind im Haus 3 noch verfügbar – ab CHF 615'000.–: Wohnung 3.03 – Grosszügige Gartenwohnung, 115 m² Wohnung 3.11 – Familienwohnung im 1. Stock, 106 m² Wohnung 3.13 – Grosse Familienwohnung, 115 m² Entdecken Sie diese attraktiven 4.5-Zimmer-Wohnungen im neuen Wohngebäude in Bleienbach. Mit grosszügigen Wohnflächen ab 106 m² bieten diese modernen Eigentumswohnungen alles, was Sie sich für ein komfortables und zeitgemässes Wohnen wünschen. Die Wohnungen überzeugen durch: Durchdachte Raumaufteilung: 4.5 Zimmer mit viel Platz für Familien oder Wohngemeinschaften Modernen Wohnkomfort: Neubau-Standard mit Lift, Geschirrspüler und hochwertigen Materialien Privaten Balkon oder Sitzplatz: Ideal für erholsame Stunden im Freien Bequeme Parkmöglichkeiten: Garage und Aussenparkplätze direkt beim Gebäude Familienfreundliches Wohnen: Perfekt geeignet für Familien mit Kindern Lage und Umgebung Die Wohnungen liegen in einer ruhigen Wohngegend und profitieren von einer sonnigen, familienfreundlichen Lage. Die Bushaltestelle "Bleienbach Post" ist in nur 9 Gehminuten erreichbar, und das Schulhaus Bleienbach befindet sich lediglich 8 Minuten entfernt – ideal für Familien mit Kindern. Die angenehme, ruhige Umgebung sorgt sowohl tagsüber als auch nachts für eine entspannte und sichere Wohnatmosphäre. Diese modernen Neubauwohnungen verbinden zeitgemässen Wohnkomfort mit einer attraktiven Lage und bieten dank der durchdachten Ausstattung und dem freundlichen Umfeld die idealen Voraussetzungen für ein angenehmes Zuhause in Bleienbach.

Kosten

Kaufpreis:
CHF 615'000

Angaben

Objektkategorie
Eigentum
Objektreferenz
45cc8a4a-9360-4bd5-aac3-c005db293eba
Adresse
Langenthalstrasse
PLZ/Ort
3368 Bleienbach
Region
Oberaargau
Wohnfläche
106 m²
Anzahl Zimmer
4.5
Etage
1

Merkmale und Ausstattung

Balkon
Lift
Garage
Kinderfreundlich

Kontakt

  • SUTTER Bau- und Immobilien AG
  • Technikumstrasse 45, 3400, Burgdorf
  • Nummer Anzeigen

Auch inseriert auf:

homegate.ch