Wohnobjekt

Einfamilienhaus, Neubau Blankenburg

keine Preisangabe

Stützli-Weg, 3771 Blankenburg

Einfamilienhaus, Neubau Blankenburg - Karte
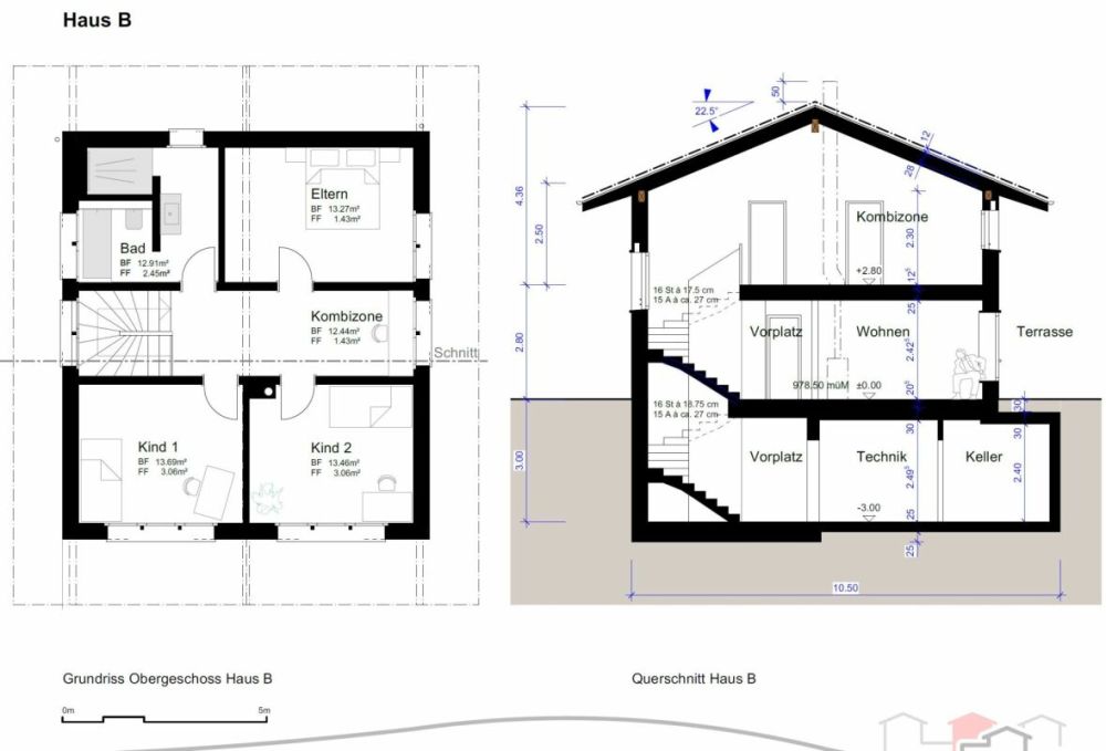
Das Objekt
Entdecken Sie die einzigartige Möglichkeit, in einem hochwertigen Neubau mitten im Herzen von
Blankenburg, Ihr Zuhause zu finden. Unsere exklusiven Chalets vereinen herausragendes Design,
moderne Annehmlichkeiten und eine ruhige Umgebung, um Ihnen ein unvergleichliches
Wohnvergnügen zu bieten. Die beeindruckende Gestaltung unserer Chalets begeistert mit einem
grosszügigen und hellen Raumkonzept.
Die weitflächigen Fensterfronten lassen reichlich Tageslicht herein und schaffen eine harmonische
Verbindung zwischen Innen- und Aussenbereich. Die elegante Holzfassade verleiht jedem Chalet
einen warmen und einladenden Charakter. Höchsten Wert legen wir auf Qualität. Daher verwenden
wir für den Bau unserer Chalets ausschliesslich hochwertiger Materialien. Sichtbare Balken im Inneren
schaffen nicht nur eine rustikale Atmosphäre, sondern betonen auch die Langlebigkeit und
Authentizität unserer Bauweise.
Die Chalets sind mit modernen Geräten ausgestattet, um Ihnen ultimativen Wohnkomfort zu bieten.
Der Neubau verfügt über Fussbodenheizung und ist an die neue Fernwärme in Blankenburg
angeschlossen. Die ruhige und gemütliche Lage bietet eine kinderfreundliche Umgebung.

Kosten

Kaufpreis:
keine Preisangabe

Angaben

Objektkategorie
Eigentum
Objektreferenz
4863bede-a9a7-42b1-8d28-ae7c886f49cc
Adresse
Stützli-Weg
PLZ/Ort
3771 Blankenburg
Region
Obersimmental-Saanen

Merkmale und Ausstattung

Garage
Kinderfreundlich

Kontakt

  • HUH Immobilien- und Generalunternehmung AG
  • Kronenplatz 7, 3775, Lenk im Simmental
  • Nummer Anzeigen

Auch inseriert auf:

icasa.ch
Anbieter kontaktieren
Anbieter kontaktieren