Wohnobjekt

Wohntraum (130.5m2) mit privatem Garten (112m2) - Einzug Sommer 2026!

CHF 1'112'000

 | 

130 m²

 | 

4.5 Zimmer

Bahnhofstrasse 13, 3426 Aefligen

Wohntraum (130.5m2) mit privatem Garten (112m2) - Einzug Sommer 2026! - Karte
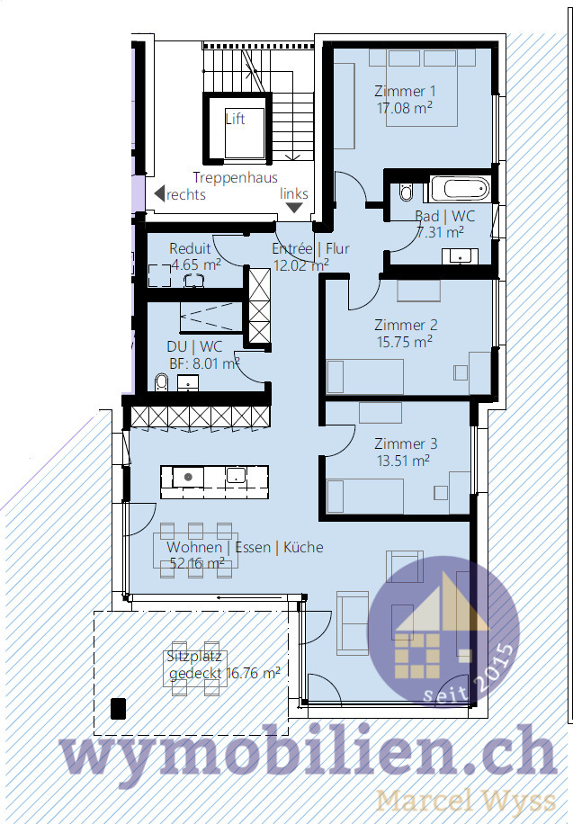
Modern wohnen mit Charakter - Mehrfamilienhaus Effilo an der Bahnhofstrasse in AefligenDas Mehrfamilienhaus Effilo steht für zeitgemässes Wohnen mit Qualität und Identität. Klare Architektur, hochwertige Materialien und durchdachte Grundrisse schaffen ein Zuhause, das heute überzeugt und auch morgen begeistert.Die Bahnhofstrasse befindet sich im Aufbruch und entwickelt sich zu einer zunehmend attraktiven Wohnlage mit spürbarer Lebensqualität - gut erschlossen und dennoch angenehm ruhig.Jetzt Chance nutzen: Erleben Sie Effilo bereits im Rohbau und vereinbaren Sie Ihre persönliche Besichtigung.Architektur mit Geschichte und ModerneStrassenseitig erinnert ein moderner, hölzerner Staketenzaun an den früheren Bauerngarten und schlägt die Brücke zwischen Vergangenheit und Gegenwart.Die filigrane Lamellenkonstruktion der Fassade gliedert das Gebäude und bringt viel Tageslicht ins Treppenhaus - für eine helle, freundliche Atmosphäre.Die zwei Hauptbaukörper (West & Ost) mit je drei Wohnungen unterscheiden sich bewusst in Konstruktion und Fassadengestaltung. So entsteht ein spannender Materialmix, der die Geschichte der Bahnhofstrasse aufnimmt und gleichzeitig zeitgemässe Architektur mit Charakter zelebriert.Ganz passend zum Namen Effilo - der laut Dorfchronik sogar Namensgeber für Aefligen war.Aussen fix - innen erst rechtBei Effilo gilt: Was aussen überzeugt, begeistert auch innen.Die sechs Eigentumswohnungen stehen für moderne Architektur mit Substanz, hoher Alltagstauglichkeit und einem spürbaren Wohlfühlfaktor. Modern - ja. Kühl oder seelenlos - ganz klar nein.Alle Wohnungen bieten:Gedeckte TerrasseOffene KücheZwei NasszonenReduit mit integrierter Waschmaschine + TumblerPrivater Kellerraum im UntergeschossFixfertiger Ausbau - bezugsbereit ab August 2026! Hochwertige Ausstattung (im Kaufpreis inklusive)Smart-Home-SystemDimmbare LED-BeleuchtungEnthärtungsanlageElektrische StorenHochwertige BodenbelägeExklusive Küche mit Steamer, Backofen, Induktionskochfeld + GeschirrspülerJeder Wohnung ist ein Veloabstellplatz für zwei Velos mit Steckdose in der Einstellhalle zugeteilt - ideal zum Laden von E-Bikes (inklusive).Einstellhallenplätze für Autos sind optional erwerbbar. Lift, Photovoltaikanlage und Fernwärme runden das nachhaltige und komfortable Wohnkonzept ab.Beschrieb 4.5-Zimmerwohnung 1. OG (Wohnung 522-4)Grosszügiges Wohnen mit einem Hauch von Exklusivität - inklusive gedeckter Terrasse und Suite mit Bad.Highlights:Edle, dunkle Küche (PerfectSense matt schwarz)Parkett Eiche Arnisee im Wohn- und SchlafbereichNasszonen + Reduit mit NovaBellPro Keramikplatten 60 × 60 cm, Farbe NeroFlächen:Zimmer 1, 17.08.m2Zimmer 2, 15.75m2Zimmer 3, 13.51m2Wohnen/Essen 52.16m2Bad mit Badewanne, 7.31m2Bad mit Walk-In Dusche, 8.01m2Reduit mit WM/Tumbler 4.65m2Terrasse gedeckt 16.76m2Privater Gartenbereich 112m2Total Nutzfläche 162.3m2Interessiert? Gerne senden wir Ihnen die Verkaufsdokumentation oder vereinbaren eine persönliche Besichtigung.Verkauf: Wymobilien, Marcel Wyss, Kirchberg/Langnau Bauherrschaft: A+G Beteiligungen AG, Etzelkofen Architektur und Bauleitung: BW Architekten AG, Kirchberg

Verfügbarkeit

Bezugstermin:
1. August 2026

Kosten

Kaufpreis:
CHF 1'112'000

Angaben

Objektkategorie
Eigentum
Objektreferenz
b4c15a4f-6fb3-455f-9068-910edd24f5b9
Adresse
Bahnhofstrasse 13
PLZ/Ort
3426 Aefligen
Region
Emmental
Wohnfläche
130 m²
Anzahl Zimmer
4.5
Etage
EG
Baujahr
2025

Merkmale und Ausstattung

Balkon
Lift
Garage
Kinderfreundlich
Rollstuhlgängig

Kontakt

  • Wymobilien, Marcel Wyss
  • Hauptstrasse 13, 3422, Kirchberg / Langnau
  • Nummer Anzeigen

Auch inseriert auf:

homegate.ch