Wohnobjekt

Projektvorankündigung - exklusive Attikawohnung mit unverbaubarer Aussicht. Neue Preise - B6

keine Preisangabe

 | 

101 m²

 | 

3.5 Zimmer

Fichtenrain 82, 4106 Therwil

Projektvorankündigung - exklusive Attikawohnung mit unverbaubarer Aussicht. Neue Preise - B6 - Karte
LAGE
An ruhiger Lage mit herrlicher Aussicht über das Leimental in Therwil entstehen zwei exklusive Mehrfamilienhäuser mit insgesamt 12 Eigentumswohnungen und einer gemeinsamen Einstellhalle. Die Gebäude sind nach Süden ausgerichtet und von schönen Grünflächen und einem bestehenden schönen Baumbestand umgeben. Die Anordnung der Baukörper ermöglicht traumhafte Ausblicke in verschiedene Landschaftsräume.
ARCHITEKTUR
Das neue Ensemble bildet durch seine Form und Fassade eine harmonische Einheit. Die Aussenhaut der Gebäude erhält eine vollflächige Klinker-Verblendung, die Einschnitte werden mit naturbelassenem Holz verkleidet. Die Holzfassaden sind so konzipiert, dass sie durch ein Vordach oder einen überdachten Aussenraum vor Witterungseinflüssen geschützt sind. Die spielerische Anordnung der Fenster ermöglicht eine flexible Raumaufteilung, so dass die Grundrisse nach den Wünschen der zukünftigen Käufer geplant werden können.
INNEN
Die tragende Primärstruktur besteht aus der Fassade und dem zentralen Erschliessungskern mit Treppenhaus und Aufzug. Die Wohnungstrennwände bilden zusammen mit dem Treppenkern die sekundäre Tragstruktur.
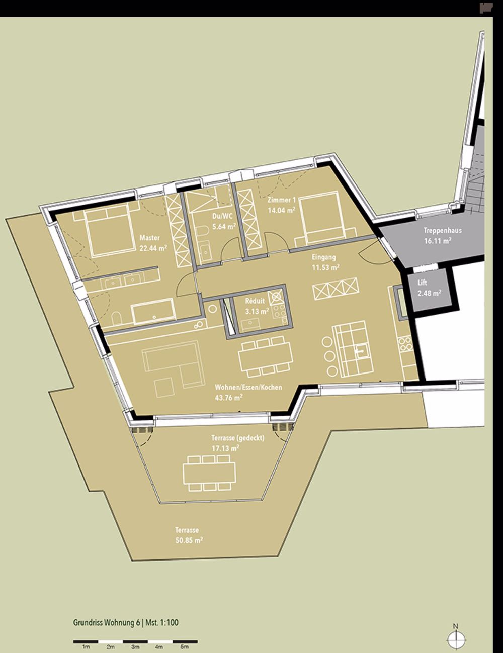
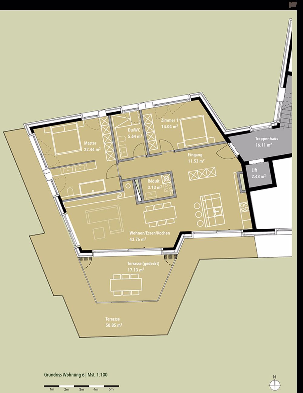
Die internen Wände aller zwölf Wohnungen sind flexibel und frei gestaltbar. Die Anlage einschliesslich des Umfeldes ist schwellenlos und somit barrierefrei. Alle Wohnungen verfügen über einen überdachten Aussenraum mit Windschutzverglasung. Die lichte Raumhöhe beträgt 2,60 m.
GESCHOSSE
Die Erdgeschosswohnungen verfügen über einen eigenen Garten. Die Wohnungen sind zwischen 92 m² und 143 m² gross. Die nach Süden ausgerichteten Fenster sind bodentief und lassen viel Licht in die Räume. Diese sind zum Garten hin orientiert. Die Fenster in den Privaträumen sind brüstungshoch und haben einen eigenen kleinen Rückzugsbereich zum Grünraum. Im Obergeschoss sind alle Fenster bodentief und bieten einen großzügigen Südbalkon mit Aussicht. Die Attikageschosswohnungen verfügen über einen eigenen Kaminanschluss. Auf Wunsch des Käufers kann eine Cheminée-Anlage ausgebaut werden. Auch die Dachterrasse wird entsprechend der umliegenden Bebauung gestaltet. Im Untergeschoss befinden sich grosszügige Kellerräume zwischen 13 und 19 m2. Pro Wohnung stehen zwei Autoabstellplätze und ein Veloabstellplatz für drei bis fünf Velos sowie eine Velo-Box zum Aufladen der Akkus zur Verfügung.
HAUSTECHNIK
Die Neubauten sind nach dem Minergie-Standard zertifiziert, die Warmwasseraufbereitung und die Fußbodenheizung erfolgen über Erdsonden, so dass die Nebenkosten auf einem sehr niedrigen Niveau gehalten werden können.

Kosten

Kaufpreis:
keine Preisangabe

Angaben

Objektkategorie
Eigentum
Objektreferenz
26ad7f89-7c9f-4bbd-a486-23999967f047
Adresse
Fichtenrain 82
PLZ/Ort
4106 Therwil
Region
Arlesheim
Wohnfläche
101 m²
Anzahl Zimmer
3.5
Etage
2
Baujahr
2026

Merkmale und Ausstattung

Schöne Aussicht

Kontakt

  • Ferrara Consulting GmbH
  • Waldeckweg 35, 4102, Binningen

Auch inseriert auf:

immoscout24.ch