Wohnobjekt

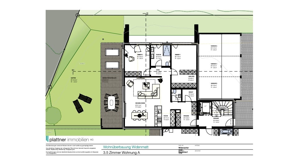
3.5 Zimmer EG-Wohnung mit 112m2 Landanteil/ 35m2 deckter Sitzplatz

CHF 1'160'000

 | 

107 m²

 | 

3.5 Zimmer

Hauptstrasse 20, 4148 Pfeffingen

3.5 Zimmer EG-Wohnung mit 112m2 Landanteil/ 35m2 deckter Sitzplatz - Karte
Exklusive Neubauwohnung in Pfeffingen – Wohnen mit Licht, Raum und Lebensqualität:
Inmitten der idyllischen Gemeinde Pfeffingen erwartet Sie diese attraktive Neubauwohnung, die modernes Wohnen mit hoher Lebensqualität verbindet. Die zentrale Lage ermöglicht kurze Wege im Alltag.
Schon beim Betreten der Wohnung wird deutlich: Hier wurde Wert auf Grosszügigkeit, Licht und Wohnkomfort gelegt. Die hellen Räume sind durchdacht konzipiert und profitieren von grosszügigen Fensterflächen, die den Wohnbereich mit Tageslicht durchfluten. Die offene Raumgestaltung schafft ein angenehmes Wohngefühl und bietet viel Platz für individuelle Einrichtungsideen.
Der hochwertige Ausbaustandard sorgt für ein modernes und stilvolles Wohnambiente. Hochwertige Materialien, sorgfältig ausgewählte Oberflächen und eine zeitgemässe Architektur verbinden Funktionalität mit Ästhetik. Die grosszügigen Räume bieten sowohl Familien als auch Paaren oder Einzelpersonen ein komfortables Zuhause mit viel Freiraum.
Ein besonderes Highlight: Der Innenausbau kann weitgehend nach Ihren persönlichen Vorstellungen gestaltet werden. Materialien, Oberflächen und Details lassen sich individuell auf Ihre Wünsche abstimmen, sodass Ihr neues Zuhause genau Ihren Vorstellungen entspricht. Sollten Sie zudem kleinere Anpassungen am Grundriss wünschen, wird geprüft, ob diese im Rahmen der Planung umgesetzt werden können – so entsteht eine Wohnung, die optimal zu Ihrem Lebensstil passt.
Zusätzlich besteht die Möglichkeit, weitere Hobbyräume zu erwerben. Diese bieten wertvollen zusätzlichen Platz und eröffnen zahlreiche Nutzungsmöglichkeiten – sei es als Atelier, Fitnessraum, Werkstatt, Lagerraum oder persönlicher Rückzugsort. So lässt sich der verfügbare Raum ganz nach Ihren individuellen Bedürfnissen erweitern.
Auch in Bezug auf Parkmöglichkeiten wird vorausschauend geplant: Die Erstellung weiterer Parkplätze befindet sich aktuell in Abklärung mit der Gemeinde und könnte zukünftig zusätzlichen Komfort für Eigentümer und Besucher schaffen.
Dank der zentralen Lage in Pfeffingen profitieren Sie von einer ausgezeichneten Anbindung an die umliegenden Gemeinden sowie an die Stadt Basel. Einkaufsmöglichkeiten, Schulen, öffentliche Verkehrsmittel und Naherholungsgebiete befinden sich in angenehmer Nähe und machen diesen Standort besonders attraktiv.
Gerne würden wir Ihnen dieses spannende Projekt persönlich näherbringen und Ihnen alle Details ausführlich aufzeigen. In einem persönlichen Gespräch präsentieren wir Ihnen die Planung, die Möglichkeiten des Innenausbaus sowie die verschiedenen Optionen rund um die Wohnung.
Diese Neubauwohnung vereint grosszügiges Wohnen, moderne Architektur und eine begehrte Lage – eine seltene Gelegenheit für alle, die Wert auf Qualität, Licht und Lebensraum legen.
Wir freuen uns, Ihnen das Projekt persönlich vorzustellen und stehen Ihnen für weitere Informationen oder eine Besichtigung jederzeit gerne zur Verfügung.

Kosten

Kaufpreis:
CHF 1'160'000

Angaben

Objektkategorie
Eigentum
Objektreferenz
cd870454-8f85-42a7-8ffa-85f865e600b7
Adresse
Hauptstrasse 20
PLZ/Ort
4148 Pfeffingen
Region
Arlesheim
Wohnfläche
107 m²
Anzahl Zimmer
3.5
Etage
EG
Baujahr
2027

Merkmale und Ausstattung

Balkon
Lift
Garage
Kinderfreundlich
Rollstuhlgängig

Kontakt

Reto Plattner
  • Reto Plattner
  • plattner immobilien AG
  • gibt Ihnen gerne Auskunft.
  • Nummer Anzeigen

Auch inseriert auf:

homegate.ch