Kaufen
Mieten
Premium-Abo
FAQ
Inserieren
Anbieter
Immobilien Ratgeber
Testimonials & Referenzen
Marketing
Newsletter anmelden
Jetzt Anmelden!
Kontakt
Über uns
AGB
Kaufen
Mieten
Premium-Abo
FAQ
Inserieren
Mehr..
Anbieter
Immobilien Ratgeber
Testimonials & Referenzen
Marketing
Newsletter anmelden
Merkliste
Anmelden
Anmelden
Passwort vergessen?
Benutzername oder E-Mail-Adresse
Passwort
Angemeldet bleiben
Anmelden
Noch nicht registriert?
Kostenlos registrieren und Suchprofil erstellen
Als Immobilien-Anbieter registrieren
Mein Konto
Meine Suchprofile
Einstellungen
Premium Abonnement
Hilfebereich
Logout
Exklusiv Recherchiert
Publiziert am 6.11.2025.
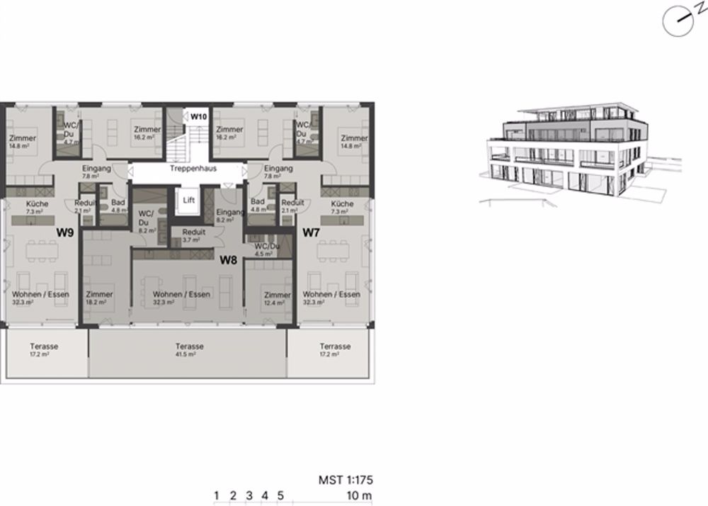
Wohnobjekt
Top 3.5-Zi.Whg. mit aussergewöhnlicher 42 m² Terrasse an Premiumlage
CHF
1'140'000
|
3.5
Zimmer
Kontakt
Auch inseriert auf:
urbanhome.ch
Hafenrainstrasse 6, 4104 Oberwil BL
Karte anzeigen
Karte vergrössern
Ihr neues Zuhause: Exklusive 3.5-Zimmer-Wohnung in der Hafenrainstrasse 6, Oberwil – Bezugsbereit ab 2027!
Mehr Text sehen
Verfügbarkeit
Verfügbar ab:
1. Februar 2027
Kosten
Kaufpreis:
CHF 1'140'000
Angaben
Objektkategorie
Eigentum
Objektreferenz
006e0ba7-1eea-4a2c-9dbf-e28094051ad8
Adresse
Hafenrainstrasse 6
PLZ/Ort
4104
Oberwil BL
Region
Arlesheim
Grundstücksfläche
1525 m²
Anzahl Zimmer
3.5
Etage
5
Baujahr
2027
Merkmale und Ausstattung
Garage
Kontakt
Auch inseriert auf:
urbanhome.ch
Ihre letzten Ansichten