Wohnobjekt

ARCHITEKTUR UND DESIGN VEREINT - ERSTBEZUG IM NEUBAU

CHF 1'580'000

 | 

124 m²

 | 

4.5 Zimmer

Rebgartenweg 1, 4104 Oberwil BL

ARCHITEKTUR UND DESIGN VEREINT - ERSTBEZUG IM NEUBAU - Karte
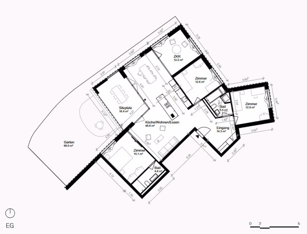
Projekthomepage: www.im-rebgarten.comIn der Basler Vorortgemeinde Oberwil entsteht an bester Lage das neuste Projekt aus dem Hause making spaces in Kooperation mit den Basler Architekten FELIPPI WYSSEN. Das familienfreundliche Quartier am Rebgartenweg bietet viel Ruhe ohne Durchgangsverkehr. Im Rebgarten lässt sich in jeder Hinsicht eine privilegierte Wohnlage geniessen. Wenige Gehminuten entfernt liegen Einkaufsmöglichkeiten, Anschluss an den öffentlichen Verkehr und Sportanlagen. Oberwil kann zudem auf eine reichhaltige Geschichte zurückblicken. Bereits im Hochmittelalter lag direkt hinter dem Gebiet Ihres neuen Zuhauses einer der grössten Weingärten, der «Rebgarten», der Region Basel.Die moderne Architektur der Basler Architekten FELIPPI WYSSEN besticht mit klarer Linienführung, stilvoller Innenausstattung sowie einem grosszügigen Raumkonzept. Das umweltfreundliche und effiziente Energiekonzept sieht eine sparsame und ressourcenschonende Erzeugung der Heizenergie und Bereitung des Warmwassers mit Wärmepumpe und Erdwärmesonden vor. Alle Wohnungen verfügen über einen hochwertigen Innenausbau mit entsprechendem Komfort. Für Ihre Fahrzeuge stehen zwei Abstellplätze (Wohnung B02 mit 1 PP) in der Tiefgarage zur Verfügung, welche bei Bedarf mit einer Ladestation ausgerüstet werden können. Selbstverständlich ist die Tiefgarage direkt mit dem Gebäude verbunden und Sie erreichen jede Etage bequem mit dem Lift (barrierefrei).VERFÜGBARE WOHNUNGEN:B02: 3.5 Zimmer-Gartenwohnung, ca. 118m2, ca. 138m2 Garten, 1.44 Mio. B05: 4.5 Zimmer-Gartenwohnung, ca. 124m2, ca. 84m2 Garten, 1.58 Mio.B08: 5.5 Zimmer-Etagenwohnung, ca. 141m2, ca. 17m2 Balkon, 1.635 Mio. DAS WICHTIGESTE IN KÜRZE:per sofort oder nach Vereinbarungbegehrte Lage mit optimaler Infrastrukturprivater Gartenanteile oder Balkonemit Lift (barrierefrei)Erdsonden-Wärmepumpe und PV-Anlageraffinierte Architektur mit Sichtbeton-Elementenmit FreecoolingGarderobenschrank im Entréezwei Badezimmer mit Badewanne oder Duscheseparates Gäste-WCWaschturm in der Wohnunggeräumiges Kellerabteilezzgl. zwei Parkplätze in der Tiefgarage à je CHF 45`000Wir freuen uns auf Ihre Kontaktaufnahme!

Kosten

Kaufpreis:
CHF 1'580'000

Angaben

Objektkategorie
Eigentum
Objektreferenz
6cfb467f-ac1f-4be7-ba51-d13552693fbb
Adresse
Rebgartenweg 1
PLZ/Ort
4104 Oberwil BL
Region
Arlesheim
Wohnfläche
124 m²
Anzahl Zimmer
4.5
Etage
EG
Baujahr
2024

Kontakt

  • Making Spaces AG
  • Dornacherstrasse 279, 4053, Basel
  • Nummer Anzeigen

Auch inseriert auf:

immoscout24.ch