Wohnobjekt

5.5 Zimmer Doppeleinfamilienhaus Haus G1 Niederdorf

CHF 990'000

 | 

150 m²

 | 

5.5 Zimmer

Widenacher Niederdorf, 4435 Niederdorf

5.5 Zimmer Doppeleinfamilienhaus Haus G1 Niederdorf - Karte
Viel Tageslicht und ein schöner Blick ins Grüne. Sitzplätze und grosse Fenster die das Wohnen ins Freie erweitern. Hochwertige Materialien und durchdachte Details, sowie eine Einrichtung, die Geborgenheit ausstrahlt.
Eine ausgewogene Mischung aus attraktiver und ruhiger Lage die dennoch gut angebunden ist und einer angenehmen Wohnatmosphäre.
Es erwartet Sie ein grosser Eingangsbereich in dem Sie Ihre Gäste gerne
empfangen. Das Haus hat einen schönen und gehobenen Ausbaustandard. Durch grossflächige Fensterfronten sind die Räume
lichtdurchflutet und erscheinen sehr hell. Die Herzstücke der Häuser sind die offenen Wohnzimmer in welchen das Sonnenlicht in vollen Zügen genossen werden kann. Die Raumaufteilung ist in jedem Haus gut konzipiert und es bietet sich eine angenehme und wohnliche Atmosphäre. Die mit hochwertigen Geräten ausgestattete Küche bietet grosszügige Arbeitsflächen und zahlreiche Staumöglichkeiten. Die Badezimmer dienen als Ruhezone für die Erholung um den Alltagsstress zu vergessen. Durch die gut durchdachten Grundrisse haben auch die Zimmer eine angenehme Grösse und können gut möbliert werden. Wir bieten Ihnen Spielraum für Individualität und werden
Sanitärapparate, Küche, Wand- und Bodenbeläge mit Ihnen in den jeweiligen Fachgeschäften bemustern. Unser Angebot runden wir ab mit der visionären Haustechnik und einer Entkalkungsanlage. Die umweltfreundliche Wärmepumpe sorgt für wohlige Wärme an kalten Tagen.
Unsere Häuser wurden mit Fokus auf Langlebigkeit, hochwertigen Materialien und durchdachte Bauweise geplant.

Kosten

Kaufpreis:
CHF 990'000

Angaben

Objektkategorie
Kauf
Objektreferenz
8c8d8160-cf6a-494e-8860-17dc5d3a9fe3
Adresse
Widenacher Niederdorf
PLZ/Ort
4435 Niederdorf
Region
Waldenburg
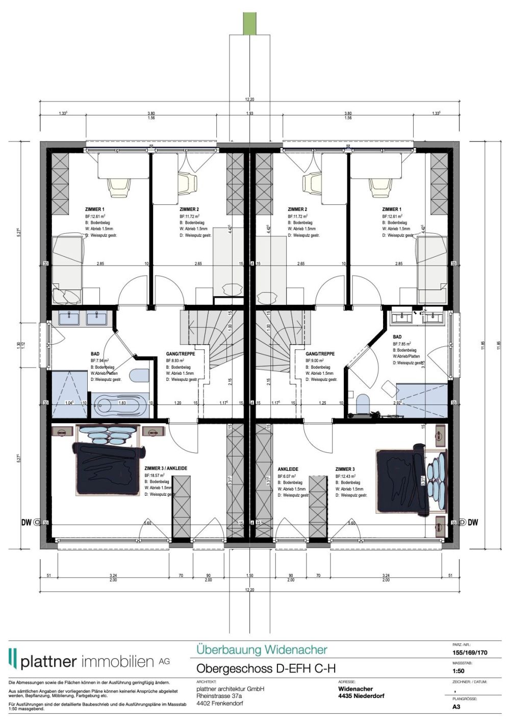
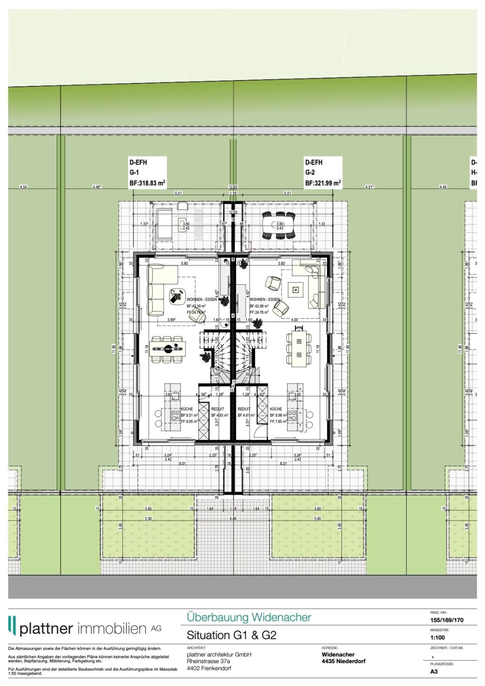
Wohnfläche
150 m²
Grundstücksfläche
318 m²
Anzahl Zimmer
5.5
Baujahr
2027

Merkmale und Ausstattung

Kabelfernsehen
Parkplatz
Kinderfreundlich

Kontakt

Viviane Götte
  • Viviane Götte
  • plattner immobilien AG
  • gibt Ihnen gerne Auskunft.
  • Nummer Anzeigen

Auch inseriert auf:

homegate.ch