Wohnobjekt

Wohnen mit Qualität in familienfreundlicher Umgebung

CHF 1'138'000

 | 

120 m²

 | 

4.5 Zimmer

Brislacherstrasse 59, 4242 Laufen

Wohnen mit Qualität in familienfreundlicher Umgebung - Karte
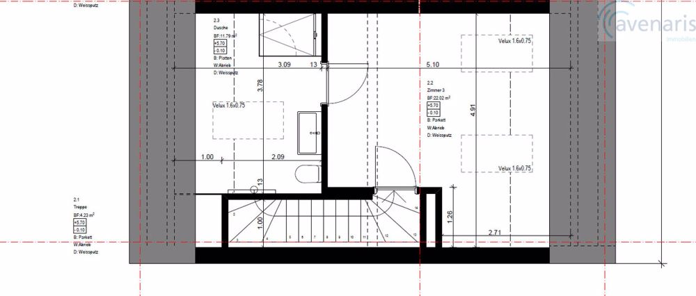
In einem familienfreundlichen und gut erschlossenen Wohnquartier entsteht eine moderne Überbauung mitsechs Reiheneinfamilienhäusern, die durch nachhaltige Bauweise, zeitgemässen Wohnkomfort, durchdachten Grundrissen und hochwertiger Ausstattung überzeugen.Die Häuser werden im energieeffizienten Minergie-P-Standard erstellt. Das Untergeschoss wird in solider Massivbauweise (Beton) ausgeführt, während ab dem Erdgeschoss eine nachhaltige und ökologische Holzelementbauweise zum Einsatz kommt. Für die Energieversorgung sorgt eine moderne Luft-Wasser-Wärmepumpe, die sowohl umweltfreundlich als auch effizient ist.Die durchdachte Architektur bietet viel Platz für individuelles Wohnen mit modernem Ausbaustandard. Frühzeitige Käufer haben zudem die Möglichkeit, persönliche Ausstattungswünsche einzubringen und so ihr neues Zuhause aktiv mitzugestalten.Im Innenbereich schaffen Echtholzparkett in Wohn- und Schlafräumen sowie grossformatige Keramikplatten in den Nasszellen eine stilvolle Wohnatmosphäre. Die offen gestaltete Küche ist mit Geräten namhafter Hersteller ausgestattet und wird zum kommunikativen Zentrum des Hauses.Zwei moderne Badezimmer - eines mit Badewanne und Dusche, das andere mit separater Dusche - bieten hohen Komfort im Alltag. Ein zusätzliches Gäste-WC, ein beheizter Hobbyraum mit ca. 22 m² sowie ein praktisches Reduit mit eigenem Waschturm runden das Raumangebot ab.Im Aussenbereich lädt der private Garten mit Sitzplatz zum Verweilen und Geniessen ein - ideal für Familien, Gartenliebhaber oder gemütliche Stunden im Freien. Direkt beim Haus befindet sich ein eigener Aussenparkplatz. Für Besucher stehen zusätzliche Parkmöglichkeiten zur Verfügung.Dieses attraktive Neubauprojekt verbindet nachhaltiges Bauen mit hoher Lebensqualität - ein ideales Zuhause für Familien, Paare oder alle die, die Wert auf Qualität, Komfort und eine ruhige, naturnahe Umgebung legen.Die Umgebung überzeugt durch eine hervorragende Infrastruktur. Einkaufsmöglichkeiten, Kindergärten, Schulen und der öffentliche Verkehr befinden sich in unmittelbarer Nähe. Die direkte Nähe zur Natur eröffnet vielfältige Freizeit- und Erholungsmöglichkeiten - ideal für aktive Familien und Naturbegeisterte.Verkaufspreise:Haus A CHF 1'183'000.-Haus B CHF 1'165'000.-Haus C CHF 1'155'000.-Haus D CHF 1'145'000.-Haus E CHF 1'138'000.-Haus F CHF 1'145'000.-Haben wir Ihr Interesse geweckt?Dann freuen wir uns auf Ihre Kontaktaufnahme und stellen Ihnen dieses schöne Neubauprojekt gerne persönlich vor.Ihr avenaris Immobilien TeamDie Angaben in diesem Exposé beruhen auf Informationen Dritter. Für deren Richtigkeit, Vollständigkeit und Aktualität übernehmen wir keine Gewähr. Dieses Dokument ist ausschliesslich für Sie bestimmt. Eine Weitergabe an Dritte bedarf unserer Zustimmung.In a family-friendly and well-developed residential area, a modern development is being built withsix terraced single-family homes that will impress with their sustainable construction, contemporary living comfort, well thought-out floor plans and high-quality fittings.The houses will be built to the energy-efficient Minergie-P standard. The basement will be built in solid solid construction (concrete), while sustainable and ecological wood element construction will be used from the first floor upwards. The energy supply is provided by a modern air-to-water heat pump, which is both environmentally friendly and efficient.The well thought-out...

Kosten

Kaufpreis:
CHF 1'138'000

Angaben

Objektkategorie
Eigentum
Objektreferenz
22b4e7c3-f970-4c0f-a311-5c7b48918611
Adresse
Brislacherstrasse 59
PLZ/Ort
4242 Laufen
Region
Laufen
Wohnfläche
120 m²
Anzahl Zimmer
4.5
Baujahr
2025

Merkmale und Ausstattung

Balkon

Kontakt

  • avenaris Immobilien AG
  • Kannenfeldstrasse 56, 4056, Basel
  • Nummer Anzeigen

Auch inseriert auf:

homegate.ch