Wohnobjekt

Stilvoll wohnen: ländliche Ruhe, hohe Wohnqualität und gute Erreichbarkeit

CHF 1'130'000

 | 

131 m²

 | 

4.5 Zimmer

Bündten 11, 4447 Känerkinden

Stilvoll wohnen: ländliche Ruhe, hohe Wohnqualität und gute Erreichbarkeit - Karte
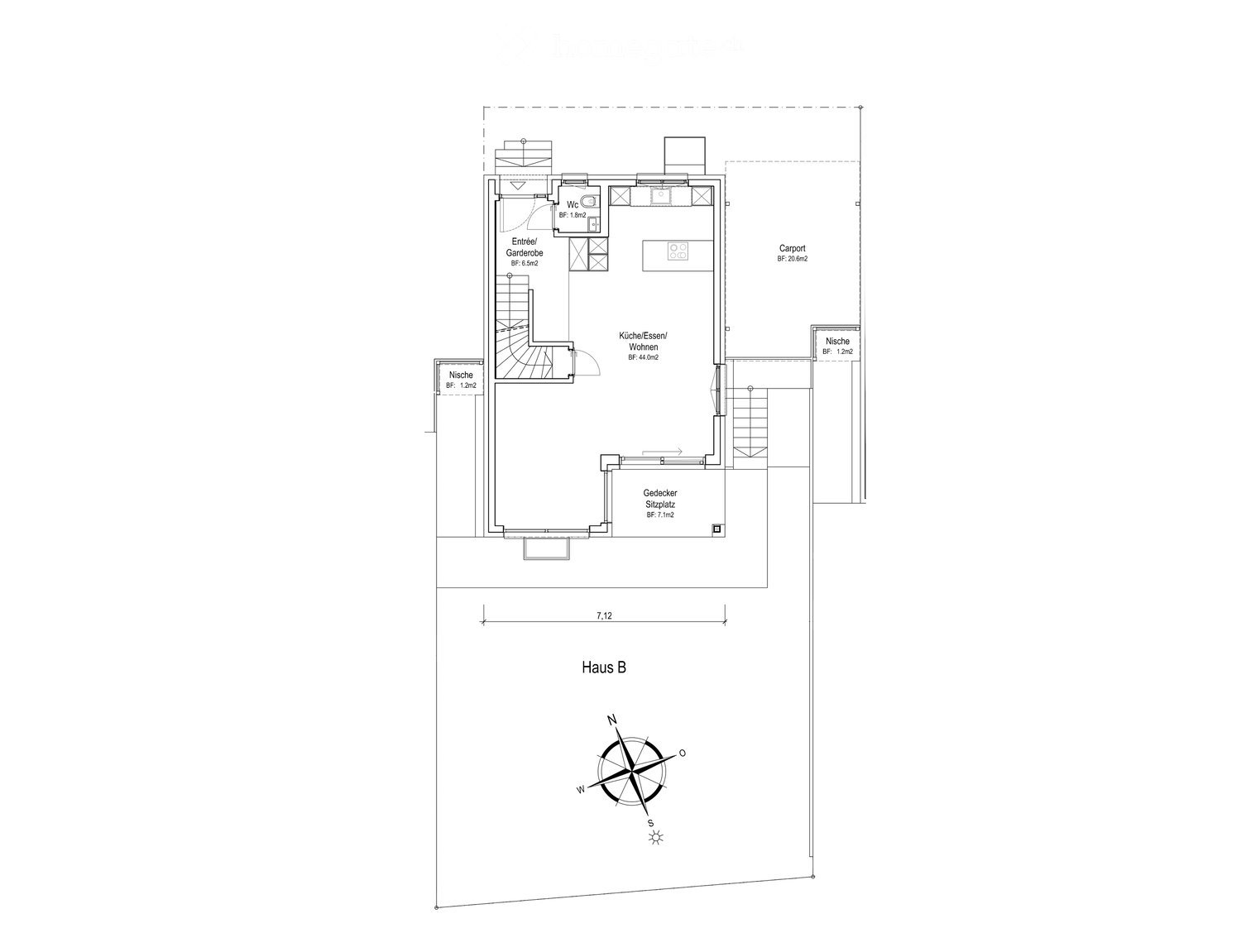
Die drei identisch projektierten Einfamilienhäuser entstehen in ruhiger Wohnlage und bieten ein modernes Zuhause mit klaren, alltagstauglichen Grundrissen auf drei Geschossen mit 131 m² Wohnfläche und 46 m² Nutzfläche.
Parzellengrösse: Haus A - 384 m2, Haus B - 280 m2, Haus C - 292 m2
Untergeschoss: Technik, Hobbyraum und viel Abstellfläche ergänzen das Raumangebot funktional. (beheizt, nicht ausgebaut)
Erdgeschoss: Einladender Eingangsbereich mit Garderobe sowie ein offener Wohn- und Essbereich mit Küche. Grosszügige Fenster sorgen für viel Tageslicht und ermöglichen den direkten Zugang zum Aussenbereich.
Dachgeschoss: Drei Zimmer, eines davon mit Ankleide, sowie zwei Badezimmer bilden den privaten Rückzugsbereich. Die Raumaufteilung bietet Komfort und Flexibilität für Familien, Paare oder Homeoffice.
Die Häuser überzeugen durch eine klare Architektur, einen zeitgemässen Ausbaustandard und helle, freundliche Räume. Individuelle Ausstattungs- und Änderungswünsche können je nach Baufortschritt berücksichtigt werden.
Ein Zuhause für Menschen, die Wert auf Qualität, Ruhe und zeitgemässes Wohnen legen!
Känerkinden ist eine charmante, ländlich geprägte Gemeinde im Bezirk Sissach im Kanton Basel-Landschaft, eingebettet in die sanfte Hügellandschaft des Baselbiets. Die ruhige Ortschaft überzeugt durch ihre naturnahe Lage, viel Privatsphäre und eine hohe Wohn- und Lebensqualität, ideal für Familien, Paare und Ruhesuchende.
Die Gemeinde zeichnet sich durch einen familiären Charakter, eine gepflegte Dorfgemeinschaft und ein angenehmes, überschaubares Umfeld aus. Hier kennt man sich, schätzt die Nachbarschaft und geniesst ein entspanntes Leben abseits von Hektik und Durchgangsverkehr.
Dank der guten Anbindung an die umliegenden Gemeinden sowie die Nähe zu Sissach sind Einkaufsmöglichkeiten, Bahnhöfe und weitere Infrastrukturen rasch erreichbar. Die Region ist sowohl für Berufspendler als auch für Menschen attraktiv, die naturnah wohnen und dennoch nicht auf eine gute Erreichbarkeit verzichten möchten.
Familien profitieren von kurzen Wegen: Kindergarten und Primarschule befinden sich in der Umgebung, weiterführende Schulen sind in den Nachbargemeinden bequem erreichbar. Die umliegende Natur bietet zahlreiche Freizeit- und Erholungsmöglichkeiten. Spazier- und Wanderwege, Velorouten durch Felder und Wälder sowie idyllische Plätze zum Verweilen laden zum Abschalten ein.

Verfügbarkeit

Bezugstermin:
1. Dezember 2026

Kosten

Kaufpreis:
CHF 1'130'000

Angaben

Objektkategorie
Eigentum
Objektreferenz
3abdfd12-d512-427d-81ac-db89e315b7aa
Adresse
Bündten 11
PLZ/Ort
4447 Känerkinden
Region
Sissach
Wohnfläche
131 m²
Grundstücksfläche
280 m²
Anzahl Zimmer
4.5
Baujahr
2026

Merkmale und Ausstattung

Balkon
Parkplatz

Kontakt

Top-Haus AG / Roland Richy
  • Top-Haus AG / Roland Richy
  • gibt Ihnen gerne Auskunft.
  • Nummer Anzeigen

Auch inseriert auf:

homegate.ch