Wohnobjekt

Neubau EG-Maisonette-Wohnung an schöner Lage (C-1.0)

CHF 2'045'000

 | 

165 m²

 | 

4.5 Zimmer

4103 Bottmingen

Neubau EG-Maisonette-Wohnung an schöner Lage (C-1.0) - Karte
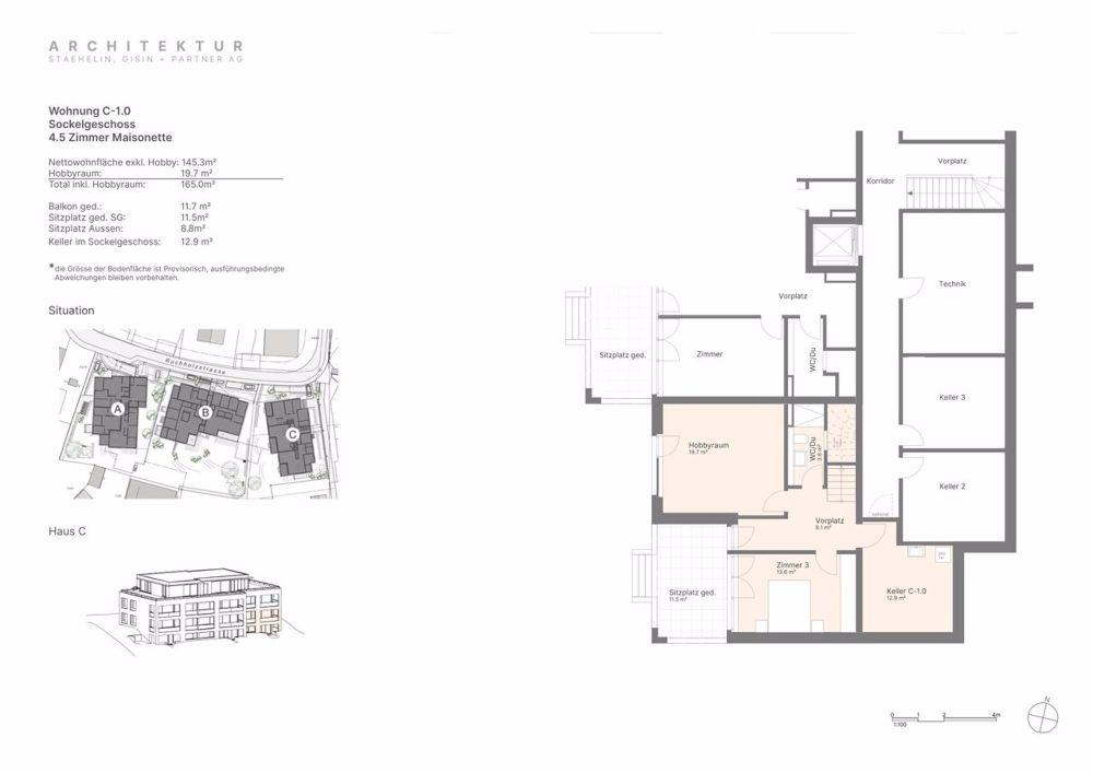
Deutsch Willkommen in Ihrer neuen Traumwohnung an der Ruchholzstrasse! Diese stilvolle 4.5-Zimmer-Wohnung bietet Ihnen 165 m² puren Wohnkomfort auf der Erd- und Sockelgeschossebene. Perfekt für Familien, die ein modernes und ruhiges Zuhause suchen. Die Wohnung bietet im Sockelgeschoss: einen ausgebauten und beheizten Hobbyraum mit Tageslicht und Fenstern und FenstertürSchlafzimmer oder Büro mit Ausgang zum gedeckten SitzplatzBadzimmer mit Dusche und WCKeller in der Wohnung Im Erdgeschoss befinden sich: der Eingang mit Garderobezwei Schlafzimmerein Badezimmer mit Badewanne und WCseparates WCWohn-Esszimmer mit offener Küche und RéduitAusgang von der Küche zum Gartensitzplatz gegen SüdenBalkon gegen Südwesten Die Umgebung ist ideal für Familien, mit einer Vielzahl von Schulen und Spielplätzen in der Nähe. Die Wohnung liegt in einem charmanten Dorf, doch sind Geschäfte, Restaurants und eine Apotheke nur einen Katzensprung entfernt. Perfekte Anbindungen an Bus und Tram sowie die Nähe zur Autobahn machen Ihre täglichen Wege zum Vergnügen. Geniessen Sie das Leben im Grünen mit dem Komfort urbaner Annehmlichkeiten direkt vor der Tür. Diese Wohnung ist ein echtes Juwel für alle, die ein gut angebundenes und familienfreundliches Umfeld schätzen. Lassen Sie sich die Gelegenheit nicht entgehen, Ihr neues Kapitel an diesem wunderbaren Ort zu beginnen! Die weiteren Angebote umfassen: 3.5-Zimmer-Maisonttewohnung im SG und EG mit hellem, ausgebautem Hobbyraum mit total 151 m2, gedeckten und Aussensitzplatz (je ca. 13.5 m2)5.5-Zimmer-Maisonttewohnung im SG und EG mit hellem, ausgebautem Hobbyraum mit 175.8 m2, gedeckten und Aussensitzplatz (ca. 12.2 und 11.9 m2)4.5-Zimmer-Etagenwohnung im 1. OG (110.4) mit gedeckten Balkon (11.7 m2)4.5-Zimmer-Etagenwohnung im 1. OG (120.9 m2) mit gedeckten Balkon (12.2 m2)3.5-Zimmer-Etagenwohnung im 1. OG (88.1 m2) mit gedecktem Balkon 12 m2) Wollen Sie mehr über das Projekt erfahren? Herr Beurret (079 645 88 36) freut sich über Ihre Mailanfrage.

Verfügbarkeit

Ab Sofort

Kosten

Kaufpreis:
CHF 2'045'000

Angaben

Objektkategorie
Eigentum
Objektreferenz
d1806188-e3cc-4f40-8a5c-9f10da777d02
PLZ/Ort
4103 Bottmingen
Region
Arlesheim
Wohnfläche
165 m²
Anzahl Zimmer
4.5
Etage
EG
Baujahr
2026

Merkmale und Ausstattung

Balkon
Lift
Garage
Schöne Aussicht
Kinderfreundlich
Rollstuhlgängig

Kontakt

  • Beurret & Partner Immobilien GmbH
  • St. Jakobs-Strasse 96, 4052, Basel
  • Nummer Anzeigen

Auch inseriert auf:

homegate.ch