Wohnobjekt

Moderne 4.5-Zimmer-Wohnung mit Balkon an ruhiger Lage in Birsfelden

CHF 1'670'000

 | 

143 m²

 | 

4.5 Zimmer

Bürklinstrasse 6A, 4127 Birsfelden

Moderne 4.5-Zimmer-Wohnung mit Balkon an ruhiger Lage in Birsfelden - Karte
Entdecken Sie diese exklusive Wohnung in Birsfelden. An einer ruhigen Seitenstrasse gelegen entstehen 3 neue luxuriöse Eigentumswohnungen. Der Baustart erfolgt im Sommer 2025. Der Bezug der Wohnungen ist auf das 2. Quartal 2026 vorgesehen.
Mit einer grosszügigen Wohnfläche von 143 m² bietet diese Wohnung im ersten Stock modernen Wohnkomfort für anspruchsvolle Bewohner.
Highlights der Wohnung:
Grosszügiger Wohnbereich: Ein offener, lichtdurchfluteter Wohn- und Essbereich mit grossen Fenstern.
Gedeckter Balkon: Perfekt für entspannte Momente im Freien.
Moderne Küche: Integriert in den offenen Wohnbereich für geselliges Beisammensein.
Zwei Schlafzimmer: Ruhige Rückzugsorte für erholsamen Schlaf.
Zwei Badezimmer: Komfort und Privatsphäre für alle Bewohner.
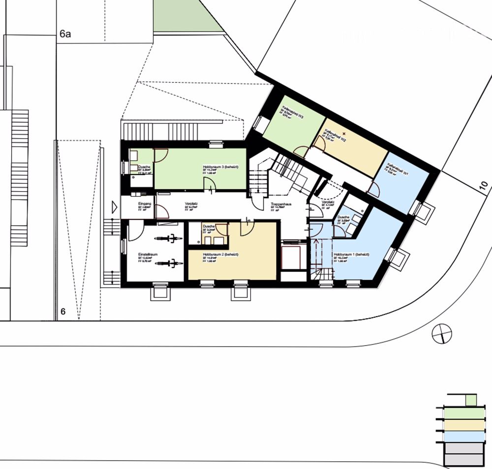
Wohnungseigener Wasch- und Trockenraum (16m2): von der Wohnung getrennt waschen und trocknen oder als zusätzlichen Stauraum nutzen.
Separates beheiztes Studio/Hobbyraum: Ihr persönlicher Rückzugsort für Sport, Erholung, Büro oder für Ihren Besuch.
Aufzug: Bequemer Zugang zu allen Etagen.
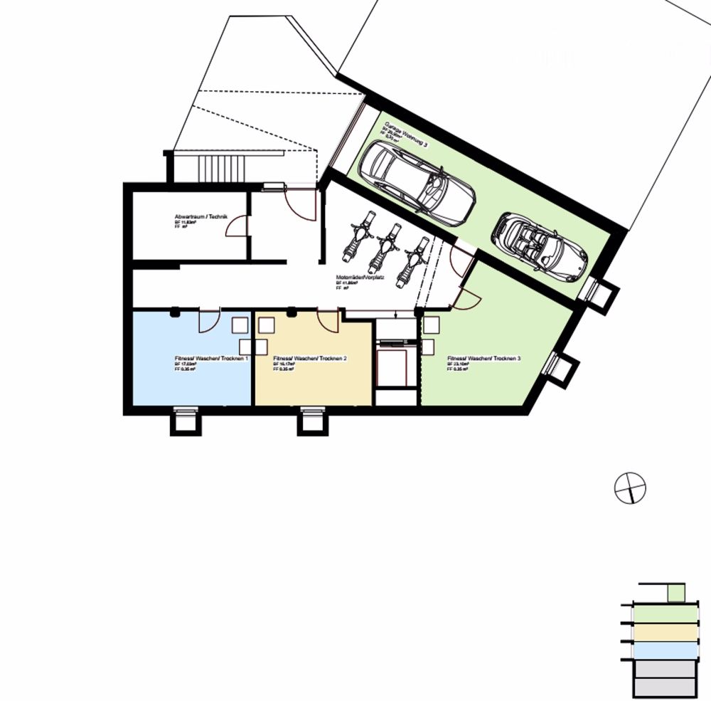
Garage: Sicherer Stellplatz für Ihr Fahrzeug. (zzgl. CHF 30'000) Dieser kann auf Wunsch mit einer Elektroladestation ausgestattet werden.
Lage und Umgebung:
Ruhige Wohnlage mit geringer Lärm- und Verkehrsbelastung
Sonnige Lage, besonders im Sommer
Kinderfreundliche Umgebung
Nahe gelegener Rhein und Birs für Spaziergänge und Freizeitaktivitäten
Ausgezeichnete Infrastruktur mit Migros (6 Gehminuten), Drogerie (5 Gehminuten) und Schule (6 Gehminuten) in unmittelbarer Nähe
Hervorragende Anbindung an den öffentlichen Nahverkehr mit Bus- und Tramhaltestelle "Bären" in nur 4 Gehminuten Entfernung
Diese Neubau-Wohnung, die 2026 fertiggestellt wird, vereint modernes Design mit praktischer Funktionalität. Die ruhige Lage und die kinderfreundliche Umgebung machen diese Wohnung ideal für Familien oder Paare, die Wert auf Lebensqualität und Komfort legen.
Eine Dokumentation mit weiteren Angaben finden Sie diesem Inserat angehängt.
Haben wir Ihr Interesse geweckt? Wir freuen uns auf Ihre Kontaktaufnahme.

Kosten

Kaufpreis:
CHF 1'670'000

Angaben

Objektkategorie
Eigentum
Objektreferenz
13d0f07c-de28-4c77-b9b1-ee1c3bc4dde3
Adresse
Bürklinstrasse 6A
PLZ/Ort
4127 Birsfelden
Region
Arlesheim
Wohnfläche
143 m²
Anzahl Zimmer
4.5
Etage
1
Baujahr
2025

Merkmale und Ausstattung

Schöne Aussicht

Kontakt

  • Nummer Anzeigen

Auch inseriert auf:

immoscout24.ch