Wohnobjekt

Maisonette-Penthouse mit grosser Terrasse - 3.5-Zi. Attikawohnung

CHF 1'490'000

 | 

98 m²

 | 

3.5 Zimmer

Lettenweg 45, 4123 Allschwil

Maisonette-Penthouse mit grosser Terrasse - 3.5-Zi. Attikawohnung - Karte
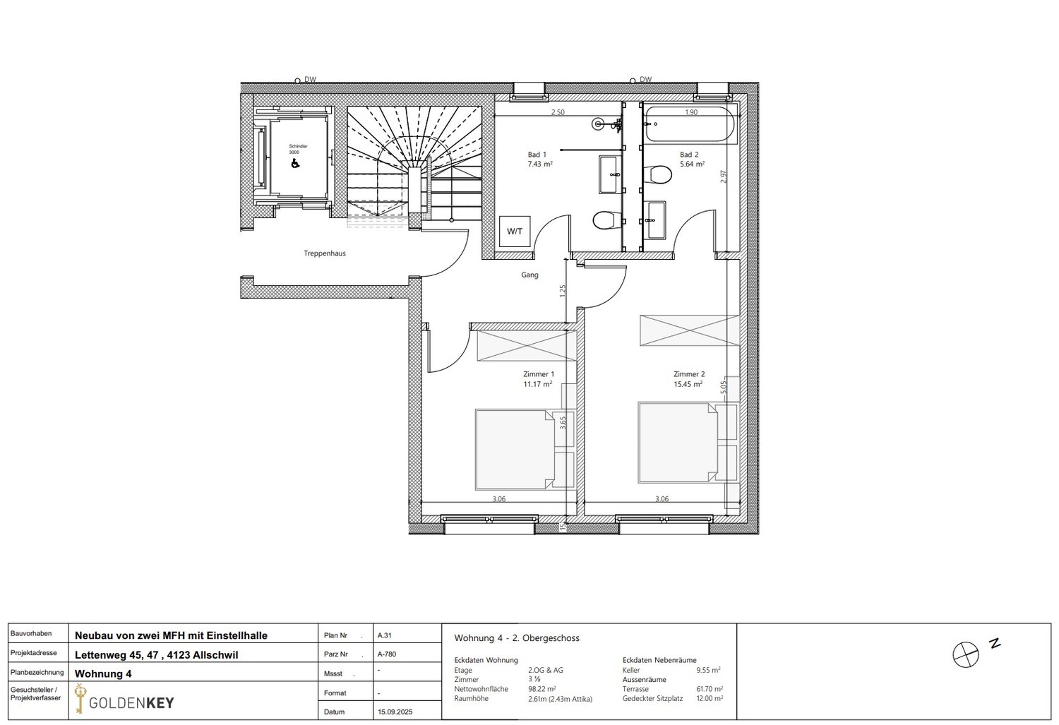
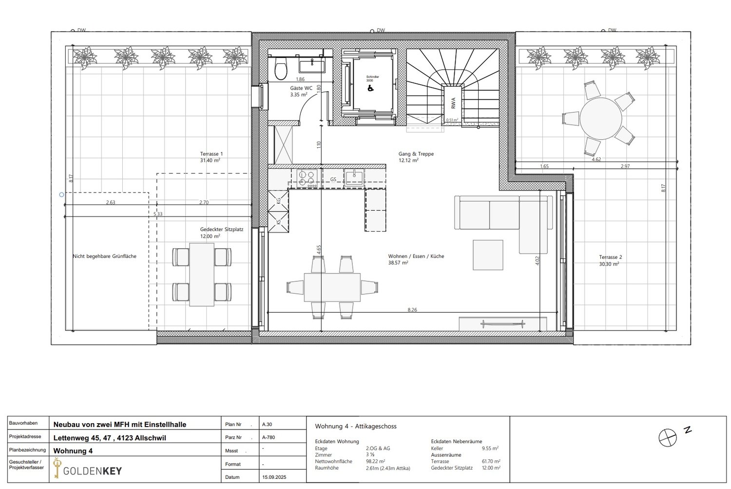
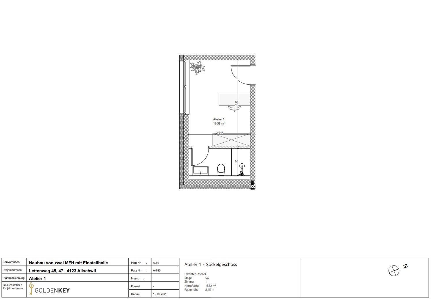
Für die Besichtigung: Bitte füllen Sie das Kontaktformular aus - Sie erhalten direkt per E-Mail das hochwertige Exposé sowie alle Informationen zur Besichtigung der Pläne und zum weiteren Ablauf.Beschreibung des Objekts: Die 3.5-Zimmer Maisonette-Attikawohnung W4 im Neubauprojekt «The Letten» verbindet modernes Wohnen mit einem besonderen Gefühl von Weite und Privatsphäre. Auf zwei Ebenen und rund 98 m² Wohnfläche entsteht ein durchdachtes Raumkonzept mit viel Licht, Offenheit und hochwertiger Architektur.Die rund 60 m² grosse Terrasse erweitert den Wohnraum fliessend nach draussen und schafft einen privaten Rückzugsort über den Dächern von Allschwil. Die Maisonette-Struktur sorgt für eine klare Trennung von Wohnen und Rückzug und vermittelt ein Wohngefühl mit eigenständigem Hauscharakter. Ein zusätzliches Atelier mit eigener Dusche eröffnet flexible Nutzungsmöglichkeiten - ideal als Homeoffice, Gästebereich oder persönlicher Rückzugsraum.Highlights-3.5-Zimmer Maisonette-Attikawohnung-ca. 98 m² Wohnfläche auf zwei Ebenen-Grosszügige Terrasse mit ca. 60 m²-2 Schlafzimmer-2 Badezimmer-Separates Gäste-WC-Atelier mit eigener Dusche-Wärmepumpe & Photovoltaikanlage-Direkter Liftzugang-Eigenes Kellerabteil-Einstellhallenplatz (für CHF 45000 separat erhältlich)Da sich das Projekt aktuell in der Realisierung befindet, haben Käuferinnen und Käufer die Möglichkeit, den Innenausbau individuell mitzugestalten. Von der Auswahl hochwertiger Materialien bis zur Konfiguration der Küche können Details nach persönlichen Vorstellungen abgestimmt werden.Allschwil zählt zu den gefragtesten Wohnlagen im Raum Basel. Das Bachgraben-Areal sowie die Basler Innenstadt sind in wenigen Minuten erreichbar. Gleichzeitig bietet die Umgebung Ruhe, hohe Wohnqualität und eine ausgezeichnete Infrastruktur mit Schulen, Einkaufsmöglichkeiten und Naherholungsgebieten in unmittelbarer Nähe.Verkaufsstand: Bereits mehrere Einheiten verkauft.Angaben zum Objekt:Waschen: In der Wohnung.Waschmaschine, Tumbler, WaschtrocknerEsszimmer: Kühlschrank, Kochherd, Backofen, Dampfabzug, Geschirrspüler, KochfeldBad: Dusche, Badewanne, Spiegelschrank, Ventilator, 3 BadezimmerTelekommunikation: Glasfaser Internet, Netzwerk-SteckdosenBesonderheiten: Eigener Kellerabteil, TerrasseLage auf dem Stockwerk: LinksBeschreibung Gebäude: The Letten umfasst zwei moderne Wohngebäude mit klarer Architektur und hochwertiger Bauweise. Eine ruhige Lage, grüne Umgebung und kompakte Struktur schaffen ein angenehmes, familienfreundliches Wohnumfeld.Angaben zum Gebäude: Art der Heizung: WärmepumpeMaterial des Fußbodens: Hochwertiger ParkettBesonderheiten: Aufzug, Garage, Kinderfreundlich, Spielplatz, Ruhiges ViertelUmgebung: Öffentliche Verkehrsmittel 400mGrundschule 110mEinkaufen 350mKindergarten 350m

Verfügbarkeit

Bezugstermin:
1. April 2027

Kosten

Kaufpreis:
CHF 1'490'000

Angaben

Objektkategorie
Eigentum
Objektreferenz
de35db15-43e1-490b-8110-b44a3831067e
Adresse
Lettenweg 45
PLZ/Ort
4123 Allschwil
Region
Arlesheim
Wohnfläche
98 m²
Anzahl Zimmer
3.5
Etage
2
Baujahr
2027

Merkmale und Ausstattung

Balkon
Lift
Garage
Kinderfreundlich

Kontakt

  • G. & P. Spaini KLG
  • St. Jakobstrasse 10, 4133, Pratteln
  • Nummer Anzeigen

Auch inseriert auf:

homegate.ch